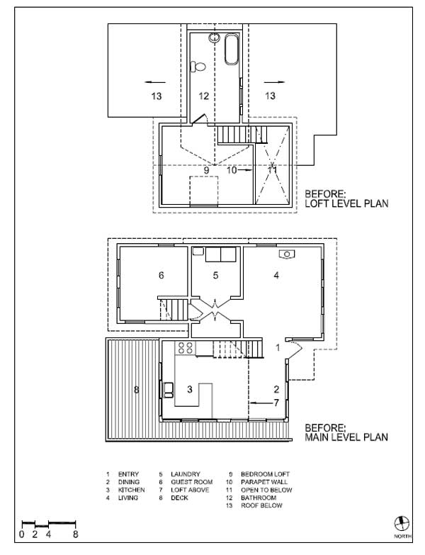
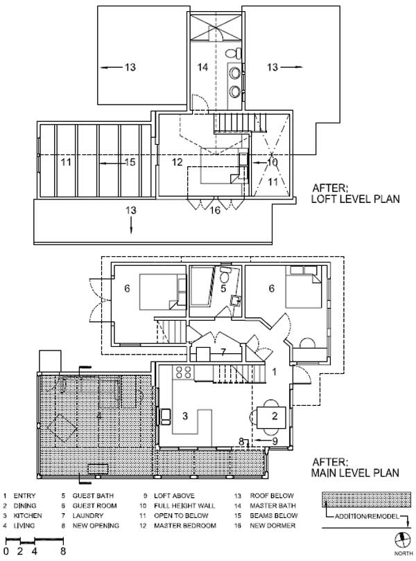
ในตอนนี้เราขอพาชาว NaiBann.com เข้าป่าสักนิด ไปชมตัวอย่างแบบบ้านกระท่อมไม้สองชั้น ซึ่งดูสวยแบบเรียบๆ แต่แฝงด้วยความทันสมัยเข้ากับยุคใหม่ และดูอบอุ่นเหมาะแก่การพักผ่อนมากเลยล่ะครับ
ตัวบ้านสองชั้นจะแบ่งเป็นชั้นซึ่งมีโถงห้องนั่งเล่นขนาดใหญ่ พร้อมกับหน้าต่างกระจกที่มีขนาดสูงจากพื้นถึงเพดาน ติดไว้ที่ผนังสำหรับนั่งพักผ่อนรับชมบรรยากาศลำธารที่อยู่ด้านข้าง
ส่วนอื่นๆในบ้านแบ่งเป็นสัดเป็นส่วน มีการตกแต่งภายในใหม่ให้ดูทันสมัย โมเดิร์นขึ้นกว่าแบบเดิม ทำให้เราเห็นเครื่องเรือนแบบโบราณผสมผสานกับของใหม่กันได้อย่างค่อนข้างลงตัว และดูไม่ขัดหูขัดตานัก
ขึ้นบันไดไปยังชั้นบน เป็นส่วนของห้องนอนใหญ่ ซึ่งสามารถเดินออกไปสูดอากาศและชมวิวที่ระเบียง ตอนกลางคืนมานั่งเล่นอยู่ตรงระเบียงท่ามกลางอากาศเย็นๆจากธรรมชาติ ก็คงผ่อนคลายและทำให้นอนหลับฝันดี
ถึงแม้แบบบ้านหลังนี้จะไม่ได้ดูหรูหรา หรือทำให้คนที่มาเยือนรู้สึกทึ่งและตกตะลึง แต่ก็แฝงไว้ด้วยความอบอุ่น สำหรับผู้อยู่อาศัยและแขกทุกเพศทุกวัย ลองชมมุมสวยๆของบ้านกันด้านล่างได้เลยครับ…
ที่มา: alperarchitect













