กลับมาพบกันอีกครั้งสำหรับไอเดียใหม่ๆ ในการสร้างบ้านในฝัน วันนี้ ในบ้าน มีผลงานบ้านโมเดิร์นชั้นเดียวขนาดกะทัดรัด ที่มีการแบ่งสัดส่วนอย่างมีประสิทธิภาพในพื้นที่ใช้สอย 66 ตร.ม. เหมาะสำหรับครอบครัวขนาดเล็กไปจนถึงขนาดกลาง รายละเอียดจะเป็นอย่างไรนั้น ไปติดตามกันเลยค่ะ
บ้านหลังนี้ออกแบบในรูปทรงทันสมัย หลังคาเป็นทรงเพิงหมาแหงน ผนังภายนอกทางด้วยสีขาว แซมด้วยสีเทาและสีชมพู ให้ภาพลักษณ์ที่ดูโมเดิร์น ดึงดูดสายตา บริเวณด้านหน้าบ้านมีลานกระเบื้อง สำหรับเดินเล่น ออกกำลังกาย อีกด้านเป็นบ่อน้ำและสวนหย่อมให้ความร่มรื่น สวยงาม ตามหลักฮวงจุ้ย

ก่อนถึงประตูทางเข้าหลักของบ้านมีระเบียงเล็กๆ ยื่นออกมาเป็นบริเวณที่แสงแดดส่องถึงเหมาะสำหรับพักผ่อน สูดอากาศ ชมวิวธรรมชาติยามเช้า

เมื่อเดินเข้าสู่ด้านในบ้านจะพบกับห้องโซนนั่งเล่น รับประทานอาหารและห้องครัว ออกแบบโดยไร้ผนังกั้น Open Plan ให้ความรู้สึกถึงความเชื่อมต่อกัน เคลื่อนไหวได้โดยไม่รู้สึกติดขัด
ผนังห้องทาด้วยสีขาว พื้นปูด้วยไม้ให้ความอบอุ่นสวยงาม มีหน้าต่างเปิดรับแสงธรรมชาติจากภายนอกให้ความปลอดโปร่ง โล่งสบาย

ในส่วนของห้องครัวตกแต่งด้วบเคาน์เตอร์บาร์รูปตัวยู (U-shaped) สำหรับเตรียมอาหาร ส่วนอีกด้านเป็นชั้นวางของติดผนังที่มีฟังก์ชันหลากหลาย ด้านล่างสามารถวางเครื่องซักผ้าได้ ทำให้มีสเปซเพิ่มขึ้น

ภายในห้องใหญ่ ตกแต่งเรียบง่าย ผนังตกในโทนสีขาว พร้อมเฟอร์นิเจอร์ติดผนัง ด้วยประหยัดพื้นที่ภายในห้อง

ห้องน้ำตกแต่งด้วยกระเบื้องโมเสก และสุขภัณฑ์สีขาว พร้อมแบ่งสัดส่วนพื้นที่แห้งและเปียกเป็นสัดส่วนชัดเจน ทำให้สะดวกสบายต่อการใช้งาน

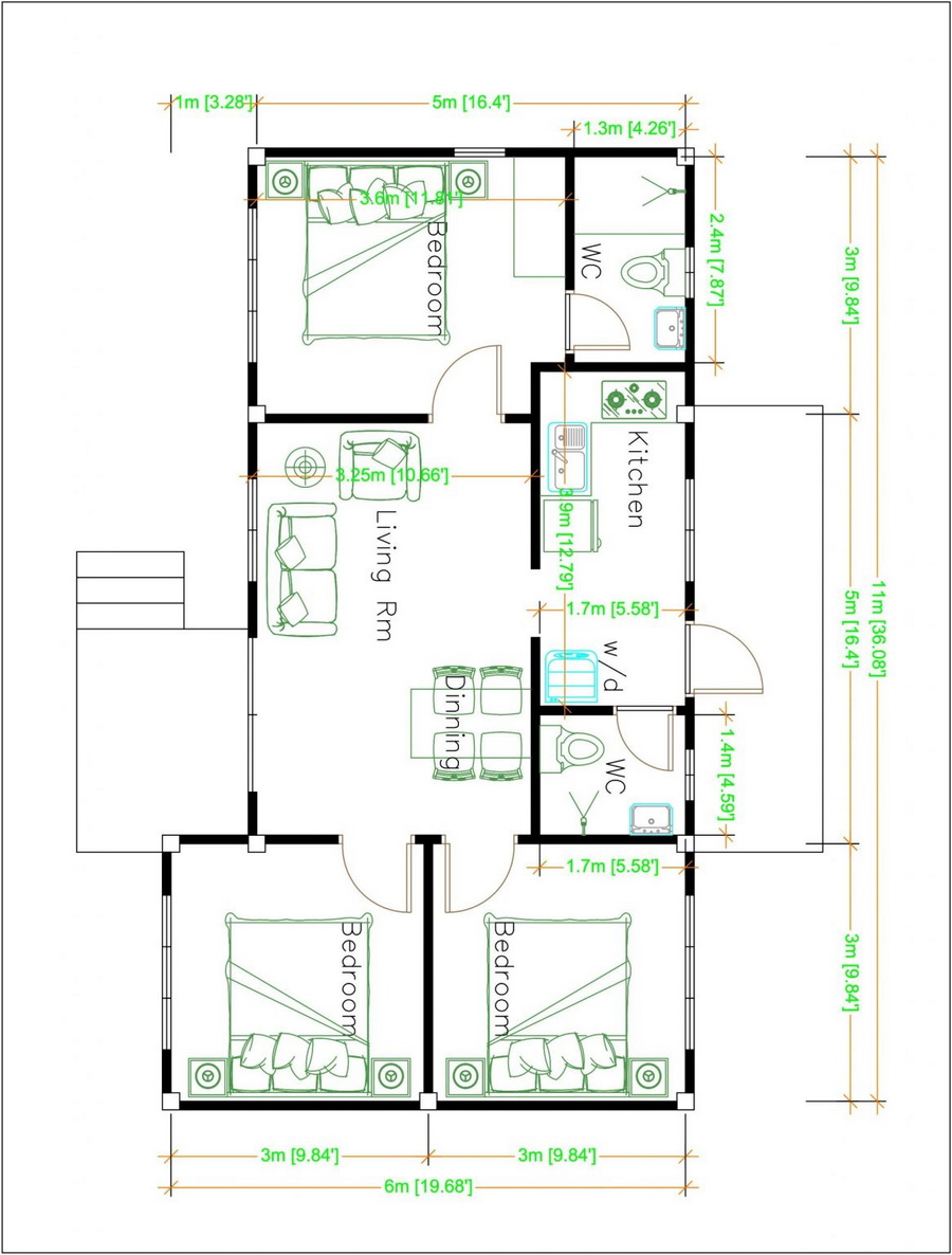
แบบแปลนบ้านหลังนี้

โดยรวมแล้ว บ้านหลังนี้ประกอบไปด้วย 3 ห้องนอน 2 ห้องน้ำ พร้อมโซนนั่งเล่น ห้องครัว พร้อมโซนซักล้างทางด้านหลัง พื้นที่ใช้สอย 66 ตร.ม. ฟังก์ชันครบครัน เพื่อนๆ คนในที่กำลังมองหาแบบบ้านสำหรับครอบครัวขนาดเล็กไปจนถึงขนาดกลาง ก็สามารถเก็บไว้เป็นไอเดียกันได้เลยค่ะ
ที่มา : samhouseplans

.