กำลังอ่าน:

House in Hoshioka บ้านไม้พร้อมวิวภูเขาและแม่น้ำ เรียบง่ายและกลมกลืนไปกับธรรมชาติ

House in Hoshioka บ้านไม้พร้อมวิวภูเขาและแม่น้ำ เรียบง่ายและกลมกลืนไปกับธรรมชาติ

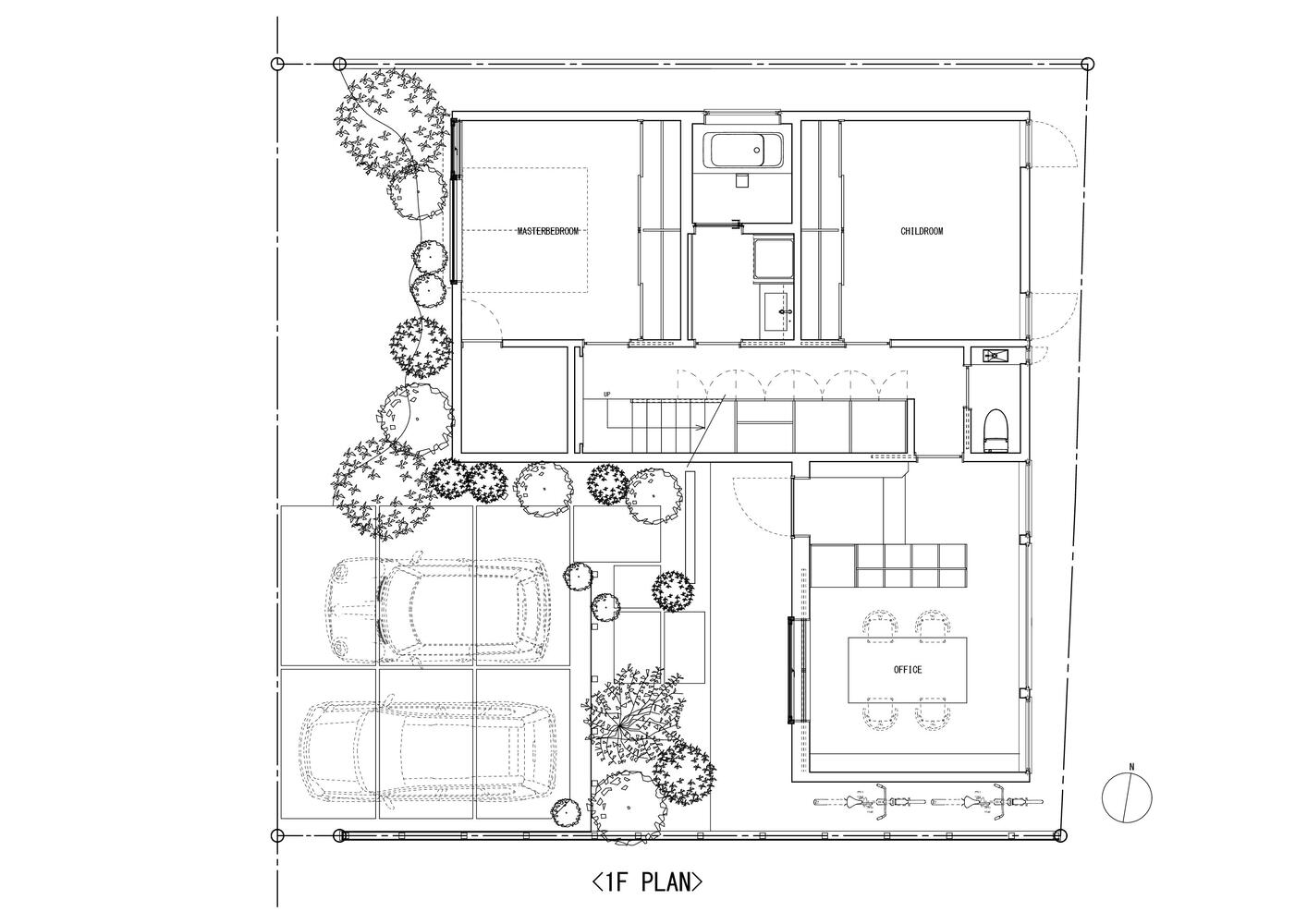
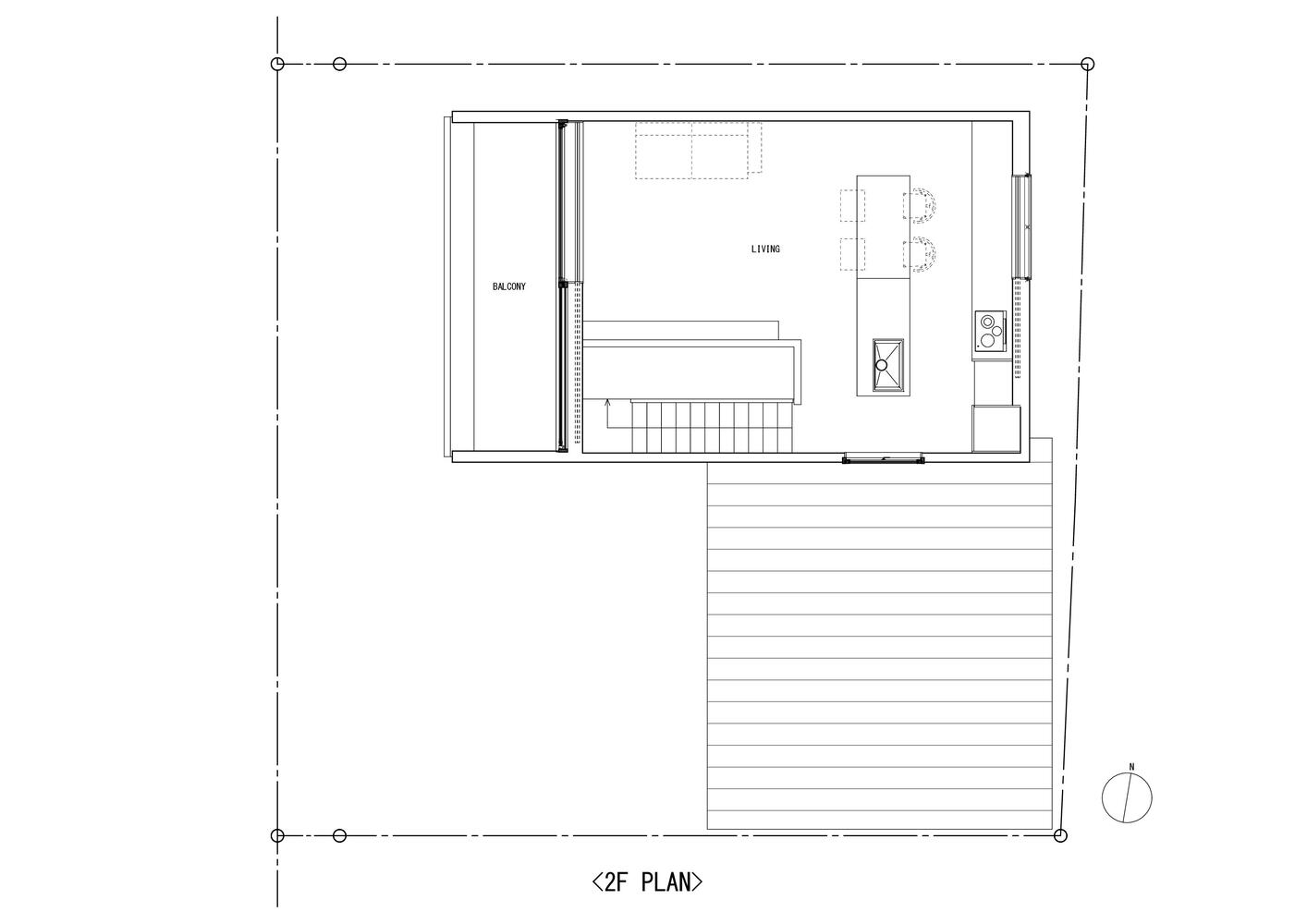
House in Hoshioka เป็นผลงานการออกแบบโดยสถาปนิกจาก Taichi Nishishita Architect & Associates...

28 October 2021 6 Mins Read
1K Views

รู้จัก "ในบ้าน"

รวมไอเดียตกแต่งบ้าน รีวิวบ้าน คาเฟ่ ที่พัก ไปจนถึงทุกเรื่องของการใช้ชีวิต ขอบคุณทุกคนที่ติดตามกันมาตั้งแต่ปี 2012 

ติดต่อในบ้าน

ติดต่อคอนเทนต์:  Inbox NaiBann
ติดต่อโฆษณา: [email protected]

© 2023 All Rights Reserved.