ไอเดียบ้านสวยที่ ในบ้าน จะพาเพื่อน ๆ ไปเก็บไอเดียกันวันนี้ เป็นบ้านจากเมืองฮอยอัน ประเทศเวียดนาม ซึ่งเป็นบ้านที่ให้บรรยากาศที่เขียวขจี มีต้นไม้และบ่อน้ำในพื้นที่ ทำให้มีบรรยากาศแบบรีสอร์ทเลยล่ะ
บ้านหลังนี้สร้างบนที่ดินราว ๆ 230 ตารางเมตร เป็นบ้านที่มีดีไซน์การตกแต่งแบบบ้านเวียดนามดั้งเดิม โดยเฉพาะงานหลังคาที่ให้รูปลักษณ์ที่สะท้อนศิลปะการสร้างบ้านตามแบบฉบับของคนเวียดนาม

การออกแบบบ้านหลังนี้ จะเน้นความเรียบง่ายและเป็นะรรมชาติ วัสดุจึงมีองค์ประกอบของหิน กระเบื้อง และผนังปูนเรียบ ๆ เพื่อให้เข้ากับการจัดสวนทั่วบริเวณบ้าน

ที่ตรงกึ่งกลางของบ้าน สถาปนิกได้ออกแบบบ่อน้ำเล็ก ๆ ที่ตรงกลางมีต้นไม้ปลูกเอาไว้ พร้อมกับมีหลังคาที่เปิดโล่ง ซึ่งนอกจากจะให้ความเย็นงามแล้ว ยังช่วยให้บ้านเย็นสบายในหน้าร้อนอีกด้วย

ข้าง ๆ บ่อน้ำจะเป็นโถงเล็ก ๆ ที่สามารถใช้เป็นที่นั่งเล่นเพื่อสัมผัสกับบรรยากาศที่สดชื่นของต้นไม้และบ่อน้ำได้อย่างใกล้ชิด

ภายในพื้นที่ห้องนั่งเล่น ถูกออกแบบให้ผู้พักอาศัยได้ใกล้ชิดกับธรรมชาติให้มากที่สุด โดยได้เลือกใช้หน้าต่างบานใหญ่ที่สามารถรับลมเย็น ๆ เข้าบ้าน ทั้งยังสามารถมานั่งจิบชา กาแฟที่มุมนี้ได้อย่างเพลิดเพลินเลยล่ะ

โถงบริเวณนี้ จะนำเราไปสู่พื้นที่สวนหลังบ้าน ซึ่งภายในโถงจะมีชั้นสำหรับจัดเก็บข้าวของต่าง ๆ ในขณะที่สวนก็จะมีบรรยากาศที่ร่มรื่น เหมาะกับการนั่งเล่นได้ตลอดทั้งวัน

ห้องครัวจะเป็นพื้นที่กว้าง ๆ ที่ใช้งานได้อย่างแเนกประสงค์ ทั้งทำอาหาร โต๊ะรับประทานอาหารก็สามารถใช้งานได้หลากหลายอีกด้วย

.

ห้องนอนจะตั้งอยู่ที่ด้านหนึ่งของบ่อน้ำ นั่นจึงทำให้ภายในห้องจะมองเห็นวิวที่สวยงามของบ่อน้ำและต้นไม้ ทั้งยังสามารถรับลมและแสงธรรมชาติผ่านทางผนังด้านนี้ได้อีกด้วย

.

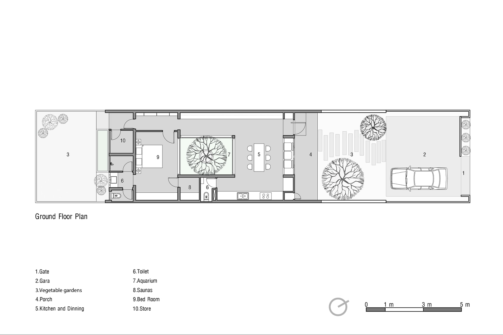
แบบแปลนภายในบ้าน

.

ที่มา: VnExpress Life