หนึ่งในปัญหาของการใช้ชีวิตในเมืองใหญ่ มักจะเป็นปัญหาบ้าน หรือที่ดินราคาแพง ทำให้ในปัจจุบัน ผู้คนมักมองหาบ้านหลังเล็ก ๆ ในเมือง เพื่อให้เหมาะกับงบประมาณ และเพื่อความสะดวกในการใช้ชีวิตในเมือง
สถาปนิก Canoa Arquitetura จากบราซิล จึงได้ออกแบบ Quatá House ขึ้นมา เป็นทาวน์เฮ้าส์หลังเล็ก ๆ ที่ตอบโจทย์กับชีวิตเมืองใหญ่
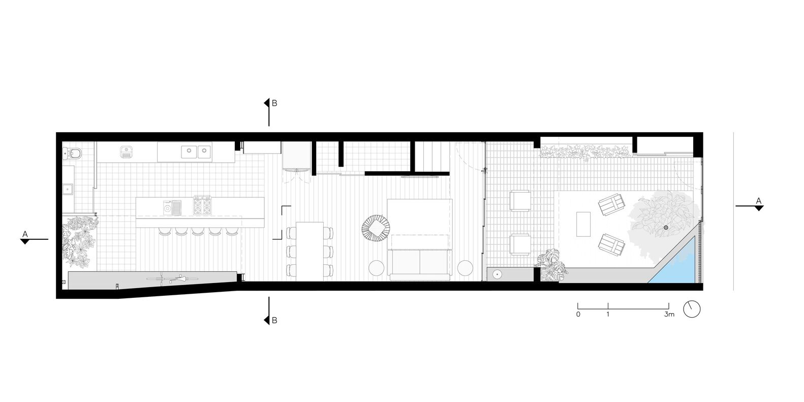
ตัวบ้านจะมีขนาด 2 ชั้น มีผนังทั้งสองด้านติดกับบ้านหลังใกล้เคียง ที่หน้าบ้าน สถาปนิกจะออกแบบประตูบ้านแบบเป็นบานเลื่อน เพื่อให้เหมาะและประหยัดพื้นที่นั่นเอง

บริเวณหน้าบ้านจะมีสวนหย่อมเล็ก ๆ ถูกจัดเอาไว้ เพื่อให้เป็นมุมสำหรับการพักผ่อน และต้นไม้บริเวณนี้ก็เป็นแนวบดบังสายตาจากภายนอกได้ดี

ต่อมาก็จะเป็นลานอเนกประสงค์นอกบ้าน ซึ่งจะอยู่ในร่ม จึงสามารถใช้งานได้หลากหลาย ทั้งมุมพักผ่อน ทำกิจกรรม หรือปาร์ตี้มื้อค่ำ

ภายในบ้านก็จะเป็นห้องโถงนั่งเล่น เนื่องจากมีเนื้อที่ไม่มาก เฟอร์นิเจอร์อย่างทีวีจึงได้ถูกยกขึ้นติดบนผนัง จึงทำให้มีที่ว่างภายในโถงเพิ่มมากขึ้น

ด้านในสุดจะเป็นโถงที่รวมเอาห้องครัวแบบเคาน์เตอร์บาร์ พื้นที่ซักล้าง และพื้นที่ว่างอเนกประสงค์เข้าไว้ด้วยกัน เป็นการใช้พื้นที่ให้เกิดประโยชน์สูงสุด

วันไหนอากาศเย็นสบาย เราก็สามารถนำเปลญวนมาติดเพื่อนอนเล่นได้เพลิน ๆ นอกจากนี้ เพื่อลดความอึดอัด หลังคาด้านบนจึงเป็นแบบกระจกใส จึงให้ความปลอดโปร่ง และรับแสงธรรมชาติได้อย่างเต็มที่

แบบแปลนภายในบ้าน

.

ที่มา: ArchDaily
ออกแบบ: Canoa Arquitetura
ถ่ายภาพ: Manuel Sá

.

.

.

.

.
