บ้านสไตล์คอนเทมโพรารี ผลงานการออกแบบโดย Buildingplus Construction บ้านที่มีดีไซน์เรียบง่าย เน้นการออกแบบที่ทำให้สามารถใช้สอยพื้นที่ได้อย่างคุ้มค่าทุกส่วน พร้อมกับมีมุมพักผ่อนอยู่บนชั้นสอง บ้านพิมพ์นิยมที่เหมาะกับเมืองไทย
โดยแบบบ้านหลังนี้เป็นบ้านขนาดสองชั้น มีดีไซน์แบบทรงกล่องสี่เหลี่ยม จึงให้ความสวยงามสบายตา ส่วนหลังคาออกแบบด้วยดีไซน์แบบทรงปั้นหยา จึงไม่ทำให้บ้านดูจืดชืดจนเกินไป ด้านการตกแต่งนั้น ผนังชั้นล่างเป็นปูนเปลือย ในขณะที่ชั้นบนเลือกใช้โทนสีน้ำตาล

อีกจุดเด่นของบ้านหลังนี้ คือ พื้นที่เฉลียงรูปตัวแอลในบริเวณชั้นสอง ซึ่งเป็นพื้นที่มุมเล็ก ๆ ให้สามารถใช้พักผ่อน หรืออาจะใช้ปลูกต้นไม้เล็ก ๆ ได้

เพื่อให้บ้านโปร่งสบายและถ่ายเทอากาศได้ดี จึงถูกติดตั้งหน้าต่างไว้โดยรอบ ซึ่งเหมาะกับสภาพอากาศของเมืองไทยที่มีอากาศร้อนแทบทั้งปี

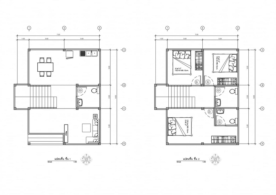
แบบแปลนภายในบ้าน

.

แบบบ้านสองชั้นสไตล์คอนเทมโพรารีหลังนี้ประกอบไปด้วย 3 ห้องนอน 3 ห้องน้ำ 1 ห้องโถงนั่งเล่น 1 ห้องครัว พร้อมระเบียงชั้นสอง พื้นที่ใช้สอยทั้งหมดประมาณ 100 ตารางเมตร
ปล. งบประมาณในการสร้างบ้านแต่ละหลังที่แตกต่างกันนั้น ขึ้นอยู่กับหลายปัจจัย ไม่ว่าจะเป็นพื้นที่ก่อสร้าง คุณภาพหรือเกรดของวัสดุ การว่าจ้างช่างฝีมือหรือผู้รับเหมา ฯลฯ ดังนั้น ข้อมูลของบ้านหลังนี้จึงมีไว้เพื่อเป็นตัวอย่างให้ศึกษาเท่านั้น ไม่สามารถนำไปเป็นมาตรฐานในการสร้างบ้านอื่นๆ ที่มีสภาพปัจจัยที่แตกต่างกันได้
ที่มา : Nus Buildingplus
บริษัท Buildingplus Construction
LINE ID : nus8991
เบอร์โทรศัพท์ : 097-9878991 .