แบบบ้านสไตล์คอนเทมโพรารี ผลงานการออกแบบโดยสถาปนิกจาก Thai drawing บ้านขนาดพอเหมาะที่มีพื้นที่ใช้สอยทั้งภายในและภายนอกที่ครอบคลุมทุกการใช้งาน มาพร้อมกับรายละเอียดการตกแต่งและดีไซน์ที่ให้ความสวยงามและทันสมัย
แบบบ้านหลังนี้เป้นบ้านชั้นเดียวออกแบบยกพื้นขึ้นสูง ตัวบ้านมีดีไซน์โครงสร้างที่ทันสมัยตามแบบฉบับของบ้านคอนเทมโพรารี โดยรายละเอียดที่ทำให้บ้านดูโดดเด่น คือ การออกแบบหลังคาทรงหน้าจั่วที่มุงด้วยกระเบื้องสีอ่อน ในขณะที่ผนังภายนอกเลือกใช้สีขาวครีม

บริเวณหน้าบ้านยังออกแบบให้มีพื้นที่เฉลียงขนาดพอเหมาะ พร้อมกับม้านั่งแบบมีพนักพิง รวมถึงพื้นที่ใกล้ ๆ ยังมีพื้นที่สำหรับการจอดรถอีกด้วย

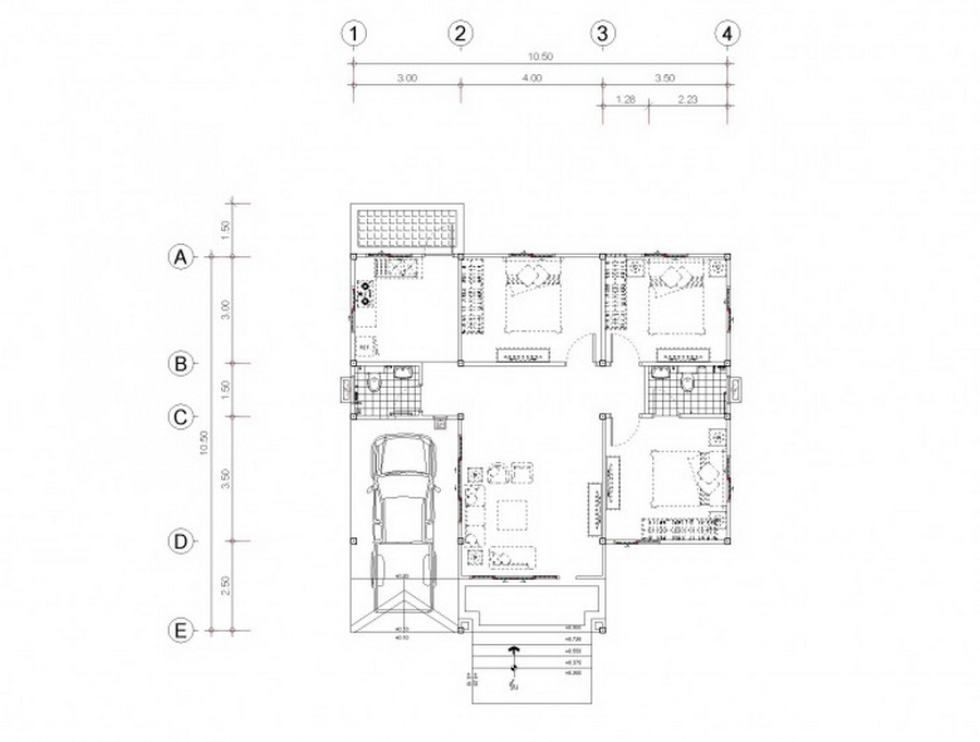
แบบแปลนภายในบ้าน

แบบบ้านสไตล์คอนเทมโพรารีหลังนี้ประกอบไปด้วย 3 ห้องนอน 2 ห้องน้ำ 1 ห้องโถงนั่งเล่น 1 ที่จอดรถ พื้นที่ใช้สอยรวมทั้งหมดประมาณ 100 ตารางเมตร งบก่อสร้างเริ่มต้นที่ประมาณ 800,000 บาท
ปล. งบประมาณในการสร้างบ้านแต่ละหลังที่แตกต่างกันนั้น ขึ้นอยู่กับหลายปัจจัย ไม่ว่าจะเป็นพื้นที่ก่อสร้าง คุณภาพหรือเกรดของวัสดุ การว่าจ้างช่างฝีมือหรือผู้รับเหมา ฯลฯ ดังนั้น ข้อมูลของบ้านหลังนี้จึงมีไว้เพื่อเป็นตัวอย่างให้ศึกษาเท่านั้น ไม่สามารถนำไปเป็นมาตรฐานในการสร้างบ้านอื่น ๆ ที่มีสภาพปัจจัยที่แตกต่างกันได้
ที่มา : thaidrawing
Hotline : 086-834-4021 คุณชลอ
Line ID : Openhomeplan
E-mail : [email protected]

.

.
.