บ้านสไตล์คอนเทมโพรารี หรือบ้านรูปทรงร่วมสมัย เป็นบ้านที่มีดีไซน์ที่สวยงามทันสมัย ก่อสร้างง่าย ดูแลรักษาได้ง่าย จึงเป็นที่นิยมอย่างมากในเมืองไทย วันนี้ ในบ้าน ก็มีไอเดีย ของ บ้านทรงร่วมสมัย มาฝากเพื่อนๆ อีกหลัง เป็นผลงานจาก บ้านช่าง เชียงราย ตามมาเก็บข้อมูลเลยจ้า
ลักษณะบ้านชั้นเดียว ฐานของบ้านถูกยกขึ้นสูง ตัวบ้านมีรูปทรงสี่เหลี่ยมที่เรียบง่าย หลังคาบ้านเป็นหลังคาทรงปั้นหยาที่ถูกมุงด้วยกระเบื้องลอนเล็ก ผนังภายนอกตกแต่งด้วยโทนสีเทาที่เล่นเฉดสีแบบเข้มและอ่อน ตกแต่งขอบด้วยโทนสีขาว

.

รอบตัวบ้านถูกติดตั้งด้วยหน้าต่างทรงสูง ช่วยให้ภายในบ้านโปร่งสบาย และสว่างได้ตลอดวัน นอกจากนี้ ภายนอกบ้านยังออกแบบให้มีเฉลียงพักผ่อนพร้อมม้านั่งอย่างครบครันอีกด้วย

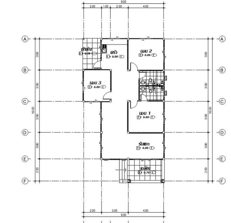
แบบแปลนภายใน

แบบบ้านชั้นเดียวทรงร่วมสมัยหลังนี้ประกอบไปด้วย 3 ห้องนอน 2 ห้องน้ำ 1 ห้องครัว 1 ห้องรับแขก พื้นที่ใช้สอย 118 ตารางเมตร งบก่อสร้าง 1.29 ล้านบาท
ปล. งบประมาณในการสร้างบ้านแต่ละหลังที่แตกต่างกันนั้น ขึ้นอยู่กับหลายปัจจัย ไม่ว่าจะเป็นพื้นที่ก่อสร้าง คุณภาพหรือเกรดของวัสดุ การว่าจ้างช่างฝีมือหรือผู้รับเหมา ฯลฯ ดังนั้น ข้อมูลของบ้านหลังนี้จึงมีไว้เพื่อเป็นตัวอย่างให้ศึกษาเท่านั้น ไม่สามารถนำไปเป็นมาตรฐานในการสร้างบ้านอื่นๆ ที่มีสภาพปัจจัยที่แตกต่างกันได้
ที่มา : บ้านช่าง เชียงราย .