แบบบ้านสไตล์คอนเทมโพรารี ผลงานการออกแบบโดย นิติพันธ์ เปือยยะ รับเหมาสร้างบ้าน อุดรธานี เป็นบ้านที่มีดีไซน์สวยงามทันสมัย การออกแบบเหมาะกับสภาพอากาศของเมืองไทย หากใครกำลังมองหาไอเดียบ้านกันอยู่ต้องห้ามพลาดกันเลยจ้า
แบบบ้านหลังนี้เป็นบ้านชั้นเดียวที่ถูกออกแบบด้วยสไตล์แบบคอนเทมโพรารี ฐานของบ้านถูกยกขึ้นสูงเพื่อช่วยป้องกันปัญหาน้ำท่วมขังช่วงหน้าฝน ตัวบ้านมีลักษณะหน้ากว้าง ผนังภายนอกตกแต่งด้วยโทนสีอ่อน ผสานดทนสีเข้มอย่างสีน้ำตาล

การออกแบบงานหลังคานั้น เป็นหลังคาทรงปั้นหยาที่มีด้วยกระเบื้องลอนสีเข้ม โดยตัวหลังคาจะคลอบคลุมทุกส่วนของบ้าน ส่วนชายคาช่วยป้องกันแดดและฝนได้อย่างลงตัว

รอบตัวบ้านถูกออกแบบติดตั้งหน้าต่างกระจกใสทรงสูงไว้โดยรอบ จึงให้ความโปร่งสบาย พร้อมกับมีเฉลียงเล็ก ๆ หน้าบ้านเพื่อใช้ในการตกแต่งและรบแขกผู้มาเยือนด้วยม้านั่งยาวสองฝั่ง

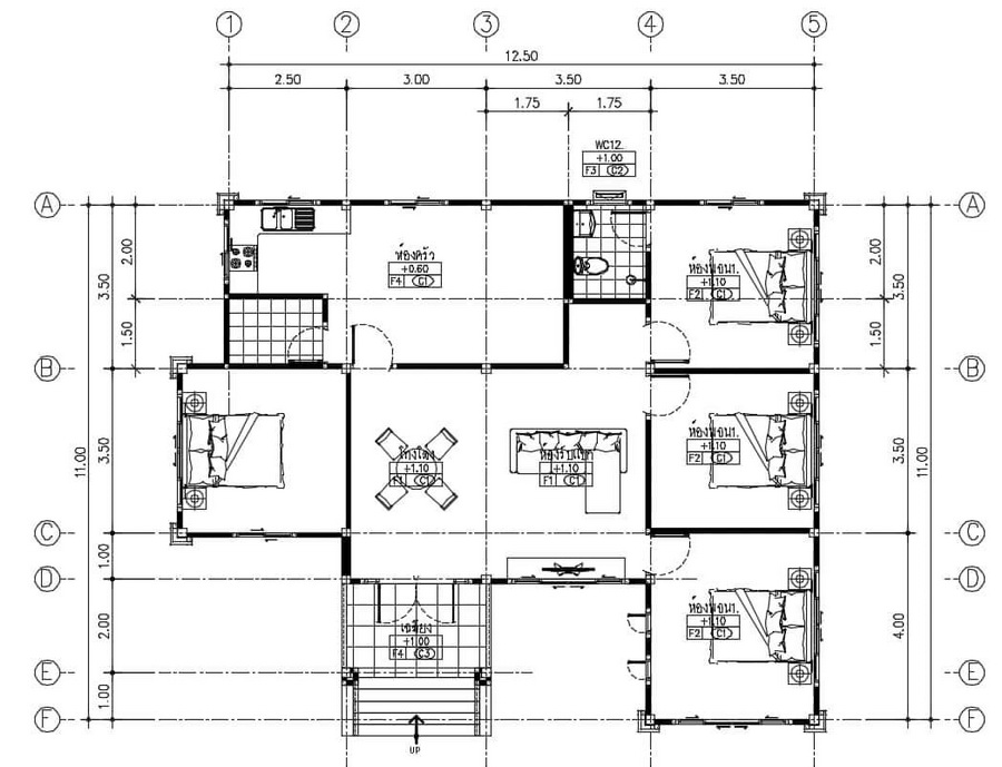
แบบแปลนภายในบ้าน

แบบบ้านชั้นเดียวสไตล์คอนเทมโพรารีหลังนี้ประกอบไปด้วย 3 ห้องนอน 2 ห้องน้ำ 1 ห้องโถงนั่งเล่น 1 ห้องครัว พื้นที่ใช้สอยทั้งหมดประมาณ 118 ตารางเมตร งบก่อสร้างอยู่ที่ประมาณ 1.4 ล้านบาท
ปล. งบประมาณในการสร้างบ้านแต่ละหลังที่แตกต่างกันนั้น ขึ้นอยู่กับหลายปัจจัย ไม่ว่าจะเป็นพื้นที่ก่อสร้าง คุณภาพหรือเกรดของวัสดุ การว่าจ้างช่างฝีมือหรือผู้รับเหมา ฯลฯ ดังนั้น ข้อมูลของบ้านหลังนี้จึงมีไว้เพื่อเป็นตัวอย่างให้ศึกษาเท่านั้น ไม่สามารถนำไปเป็นมาตรฐานในการสร้างบ้านอื่นๆ ที่มีสภาพปัจจัยที่แตกต่างกันได้
ที่มา : นิติพันธ์ เปือยยะ รับเหมาสร้างบ้าน อุดรธานี

.

.
.