แบบบ้านสไตล์คอนเทมโพรารี ผลงานการออกแบบโดย AP House 2019 เป็นแบบบ้านพักอาศัยขนาดกลาง ตัวบ้านมีดีไซน์และการตกแต่งที่เรียบง่าย แต่ก็ให้ความสวยงามได้เป็นอย่างดี อีกทั้งโทนสีของบ้านก็ให้บรรยากาศที่ผ่อนคลายสบายตา
แบบบ้านหลังนี้เป้นบ้านชั้นเดียว ฐานของบ้านถูกยกขึ้นสูง ตัวบ้านมีดีไซน์ที่เรียบง่ายในแบบคอนเทมโพรารี ตกแต่งด้วยหลังคาทรงปั้นหยาที่มุงด้วยกระเบื้องลอนเล็ก ด้านการตกแต่งนั้น ผนังภายนอกเลือกใช้โทนสีขาวครีม จึงทำให้บ้านดูสว่างสวยงาม

รอบตัวบ้านถูกติดตั้งด้วยประตูและหน้าต่างกระจกใสบานใหญ่ จึงสามารถรับแสงและถ่ายเทอากาศได้เป็นอย่างดี นอกจากนี้ยังมีระเบียงเล็ก ๆ หน้าบ้านไว้ให้ใช้งานอีกด้วย

บริเวณพื้นที่หลังบ้านมีเฉลียงกว้างแบบเปิดโล่งไว้ให้ใช้งาน ซึ่งสามารถตกแต่งเป็นลานพักผ่อน หรือจะใช้เป้นลานซักล้างก็ได้

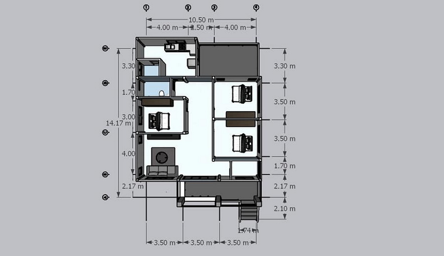
แบบแปลนภายในบ้าน

แบบบ้านสไตล์คอนเทมโพรารีหลังนี้ประกอบไปด้วย 3 ห้องนอน 2 ห้องน้ำ 1 ห้องโถงนั่งเล่น 1 ห้องครัว พื้นที่ใช้สอยทั้งหมดประมาณ 138 ตารางเมตร สามารถสอบถามข้อมูลอื่น ๆ เพิ่มเติมได้จากช่องทางติดต่อด้านล่างนี้ได้เลยครับ
ที่มา : พร็อพเพอร์ตี้ บาย โฮม
เบอรืโทรศัพท์ : 0854655344

.
.