กลับมาพบกันอีกเช่นเคย พร้อมกับไอเดียบ้านสวย ๆ ที่เรานำมาให้เพื่อน ๆ ได้รับชมกับทุกวัน โดยวันนี้ ในบ้าน จะพาเพื่อน ๆ ไปชมไอเดีย แบบบ้านสไตล์โมเดิร์น ซึ่งเป็นผลงานการออกแบบโดย pro home decorz หากใครที่กำลังมองหาไอเดียบ้านสวย ๆ กันอยู่ ต้องมาชมกันเลยนะครับ
แบบบ้านหลังนี้เป็นบ้านหน้ากว้างยกพื้นสูงในสไตล์แบบโมเดิร์น หลังคาดีไซน์ผสมผสานทรงเพิงหมาแหงนและแบบเรียบ ด้านการตกแต่งนั้น ผนังภายนอกเลือกใช้โทนสีขาวยืนพื้น เพิ่มดีเทลด้วยสีเทาและสีน้ำตาล ทำให้บ้านมีรายละเอียดที่สวยงาม

.

จากมุมด้านหลังของตัวบ้าน เราจะเห็นได้ว่าตัวบ้านถูกติดตั้งด้วยประตูและหน้าต่างจำนวนหลายบาน ทำให้บ้านโปร่งสบาย นอกจากนี้ยังมีทางเข้าออกบ้านอีกแห่งด้วย

เมื่อเข้ามาภายในบ้าน เราจะพบกับห้องโถงนั่งเล่นขนาดใหญ่ ซึ่งภายนอกแบ่งพื้นที่ใช้สอยเป็นห้องนั่งเล่นและพื้นที่ห้องรับประทานอาหารอย่างเป็นสัดส่วน

ภายในห้องนอนมีพื้นที่ใช้สอยที่เพียงพอต่อการพักผ่อนและใช้สอยทำกิจกรรมเล็ก ๆ น้อย ๆ ภายในห้องมีเฟอร์นิเจอร์ที่ครบทุกการใช้งาน

ทางด้านห้องน้ำ เป็นห้องที่มีขนาดพอเหมาะ ภายในตกแต่งด้วยแผ่นกระเบื้องที่หลากหลาย พร้อมกับติดตั้งสิ่งอำนวยความสะดวกที่เพียงพอต่อการใช้งาน

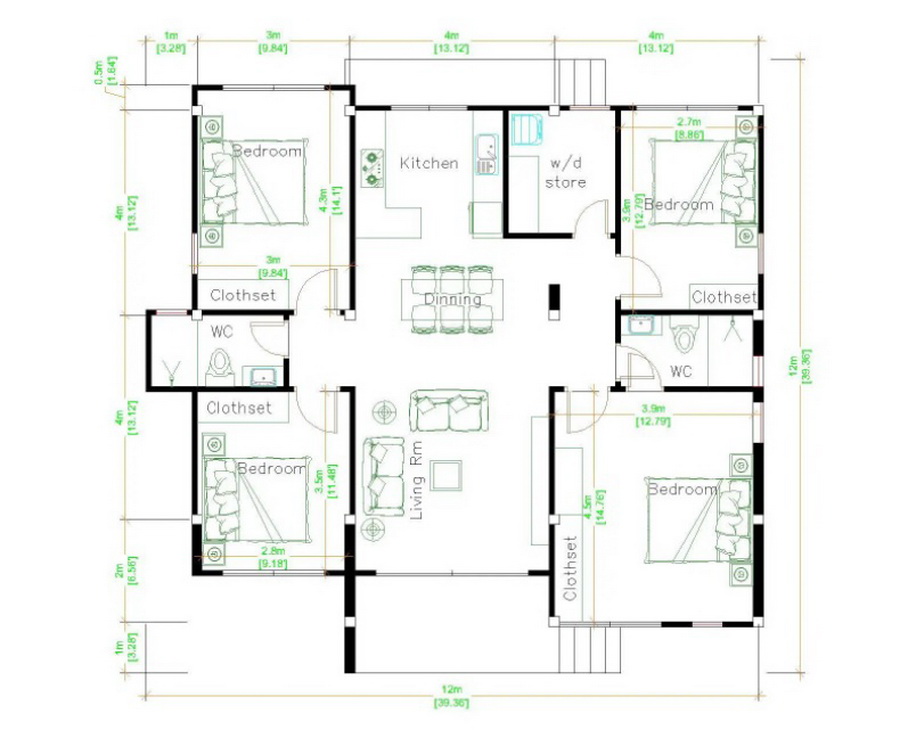
แบบแปลนภายในบ้าน

แบบบ้านสไตล์โมเดิร์นหลังนี้ประกอบไปด้วย 4 ห้องนอน 2 ห้องน้ำ 1 ห้องโถงนั่งเล่น 1 ห้องครัว 1 ห้องซักล้าง พื้นที่ใช้สอยทั้งหมดประมาณ 144 ตารางเมตร
ที่มา : prohomedecorz
https://www.youtube.com/watch?time_continue=259&v=dC5TenU-u24&feature=emb_title .