หากว่าเพื่อนๆ มีที่ดินหน้ากว้าง การออกแบบบ้านให้เข้ากับลักษณะของที่ดินก็น่าสนใจไม่น้อย และแน่นอนว่า วันนี้ ในบ้าน ก็มีไอเดียบ้านแนวนี้มาฝาก โดยเป็น แบบบ้านคอนเทมโพรารี ผลงานการออกแบบโดย ช่างสถาพร ไปติดตามไอเดียและข้อมูลกันเลยครับ
สำหรับบ้านหลังนี้เป็นบ้านขนาดชั้นเดียว ตัวบ้านมีลักษณะหน้ากว้าง ที่สำคัญเมื่อมองจากด้านบน เราจะเห็นถึงการดีไซน์แบบทรงตัวแอล (L Shape house) ด้านการตกแต่งนั้น หลังคาบ้านเป็นแบบทรงหน้าจั่ว ผนังภายนอกตกแต่งด้วยโทนสีขาวสบายตา

ซึ่งการออกแบบบ้านในรูปตัวแอลทำให้บริเวณส่วนกลางด้านนอกของบ้านมีพื้นที่กว้าง สามารถเทพื้นเป็นลานเอนกประสงค์ หรือจะปล่อยไว้เป็นสนามหญ้าก็ได้

.

มุมนี้ของบ้านภายในเป็นห้องนั่งเล่น ผนังจึงถูกตกแต่งด้วยหน้าต่างกระจกใสทรงสูงจำนวนหลายบาน พร้อมกับมีประตูทางเข้าออกอีกแห่งหนึ่ง

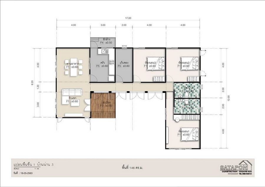
แบบแปลนภายใน

แบบบ้านคอนเทมโพรารีหน้ากว้างทรงตัวแอล (L Shape house) หลังนี้ประกอบไปด้วย 3 ห้องนอน 2 ห้องน้ำ 1 ห้องโถงนั่งเล่น 1 ห้องครัว 1 ห้องเก็บของ พร้อมระเบียง พื้นที่ใช้สอย 146 ตารางเมตร งบก่อสร้างอยู่ที่ประมาณ 1.9 ล้านบาท
ปล. งบประมาณในการสร้างบ้านแต่ละหลังที่แตกต่างกันนั้น ขึ้นอยู่กับหลายปัจจัย ไม่ว่าจะเป็นพื้นที่ก่อสร้าง คุณภาพหรือเกรดของวัสดุ การว่าจ้างช่างฝีมือหรือผู้รับเหมา ฯลฯ ดังนั้น ข้อมูลของบ้านหลังนี้จึงมีไว้เพื่อเป็นตัวอย่างให้ศึกษาเท่านั้น ไม่สามารถนำไปเป็นมาตรฐานในการสร้างบ้านอื่นๆ ที่มีสภาพปัจจัยที่แตกต่างกันได้
ที่มา : ช่างสถาพร รับเหมาสร้างบ้าน รับเหมาก่อสร้างเชียงใหม่ รับปรับปรุงต่อเติมบ้าน
เบอร์โทรศัพท์ : 088-4163114
LINE ID : sataponcon .