แบบบ้านสองชั้นสไตล์คอนเทมโพรารี ผลงานการออกแบบจากทีมงาน ช่างสถาพร โดดเด่นด้วยการออกแบบพื้นที่ใช้สอยให้มีลักษณะเปิดโล่ง รับลมและแสงธรรมชาติได้อย่างทั่วถึง พร้อมด้วยการตกแต่งด้วยไม้และโทนสีขาวที่สวยงามและลงตัวมาก ๆ
ลักษณะตัวบ้านสองชั้น หลังคาทรงจั่วซึ่งมีถึงสองจั่ว มุงด้วยกระเบื้องลอนโทนสีน้ำเงิน ผนังภายนอกเลือกใช้โทนสีขาวยืนพื้น แทรกไปด้วยผนังไม้ตรงฟาซาดที่ช่วยเพิ่มความสวยงามแบบธรรมชาติ ผสานเข้ากับสีขาวได้อย่างลงตัว นอกจากนี้ บริเวณชั้นล่างยังมีผนังบางส่วนที่ใช้อิฐหินทรายสีขาวเข้ามาเสริมด้วย

นอกจากนี้ ยังมีการใช้ผนังช่องลมที่นอกจากจะช่วยให้ดูโปร่งโล่งและอากาศหมุนเวียนได้อย่างทั่วถึงแล้ว ยังเป็นส่วนที่ช่วยเพิ่มความสวยงามและเอกลักษณ์ให้กับบ้านหลังนี้ได้เป็นอย่างดี

บ้านหลังนี้เลือกใช้หน้าต่างแบบกระจกโปร่งใส่วงกบสีดำ ให้กลิ่นอายแบบโมเดิร์นผสมผสานอยู่ในตัว

บริบทรอบบ้านถูกออกแบบให้เป็นสนามหญ้าและต้นไม้สีเขียว กลมกลืนไปกับท้องฟ้าสดใสสีคราม

พื้นที่ชั้นล่างของบ้านมีใต้ถุนโปร่งซึ่งสามารถจัดเป็นพื้นที่กิจกรรม มุมรับแขก จัดงานสังสรรค์ หรือรับประทานอาหารนอกบ้านบริเวณนี้ก็ยังได้

แปลนพื้นชั้นล่าง

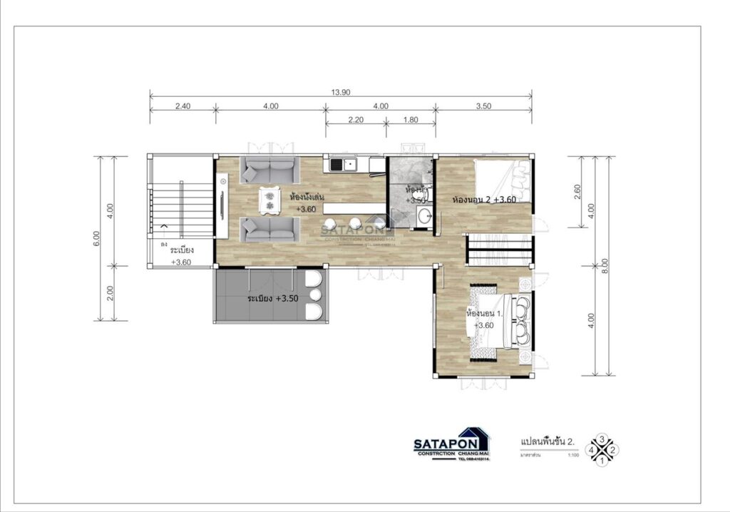
แปลนพื้นชั้นบน

แบบบ้านหลังนี้ประกอบไปด้วย 2 ห้องนอน 2 ห้องน้ำ 1 ห้องโถง รับแขกชั้น 1 1 ครัว 1 ห้องซักล้าง ส่วนนั่งเล่น+แพนทีน ชั้น 2 เฉลียงทางเข้าบ้านกว้าง บันไดโชว์ขึ้นภายนอกบ้าน บนพื้นที่ใช้สอย 168 ตารางเมตร งบประมาณ 2.3 – 2.4 ล้านบาท หากเพื่อน ๆ ชาวเว็บต้องการสอบถามข้อมูลเพิ่มเติม สามารถติดต่อผู้ออกแบบผ่านช่องทางด้านล่างนี้ได้เลยนะครับ
ปล. งบประมาณในการสร้างบ้านแต่ละหลังที่แตกต่างกันนั้น ขึ้นอยู่กับหลายปัจจัย ไม่ว่าจะเป็นพื้นที่ก่อสร้าง คุณภาพหรือเกรดของวัสดุ การว่าจ้างช่างฝีมือหรือผู้รับเหมา ฯลฯ ดังนั้น ข้อมูลของบ้านหลังนี้จึงมีไว้เพื่อเป็นตัวอย่างให้ศึกษาเท่านั้น ไม่สามารถนำไปเป็นมาตรฐานในการสร้างบ้านอื่นๆ ที่มีสภาพปัจจัยที่แตกต่างกันได้
ที่มา : ช่างสถาพร รับเหมาสร้างบ้าน รับเหมาก่อสร้างเชียงใหม่ รับปรับปรุงต่อเติมบ้าน
SATAPON CONSTRUCTION
สนใจติดต่อ หรือสอบถามข้อมูลเพิ่มเติมได้ที่
Facebook Page : facebook.com/mysataporncon/
โทรศัพท์ : 088-4163114
ID LINE : sataponcon .