แบบบ้านสไตล์โมเดิร์น ผลงานการออกแบบโดยทีมงานสถาปนิกจาก AP house loei แบบบ้านพักอาศัยขนาดกำลังดีสำหรับครอบครัวเริ่มต้น ตัวบ้านมีดีไซน์ที่สวยงามทันสมัย ถ้าหากเพื่อน ๆ สนใจไอเดียบ้านแนวนี้ ก็อย่าพลาดที่จะชมรายละเอียดกันล่ะ
สำหรับแบบบ้านหลังนี้ เป็นบ้านชั้นเดียวที่มีการออกแบบอย่างเรียบง่ายตามแบบฉบับบ้านแนวโมเดิร์น โดยเป็นบ้านลักษณะหน้ากว้าง ความโดดเด่นของการออกแบบจะอยู่ที่งานหลังคาทรงเพิงหมาแหงนที่เป็นแบบเล่นระดับ จึงให้ความสวยงาม

บริเวณหน้าบ้านยังออกแบบให้มีพื้นที่สำหรับจอดรถอีกด้วย โดยมีลักษณะเปิดโล่ง ใกล้ ๆ กันจะเป็นเฉลียงหน้าบ้านที่สามารถใช้สอยได้อย่างสะดวกสบาย

บริเวณหลังบ้านถูกออกแบบให้มีลานซักล้างแบบยาว ซึ่งสามารถใช้สอยได้สะดวก โดยให้พื้นที่ ๆ มีความเป็นสัดส่วน จึงดูแลทำความสะอาดได้ง่ายอีกด้วย

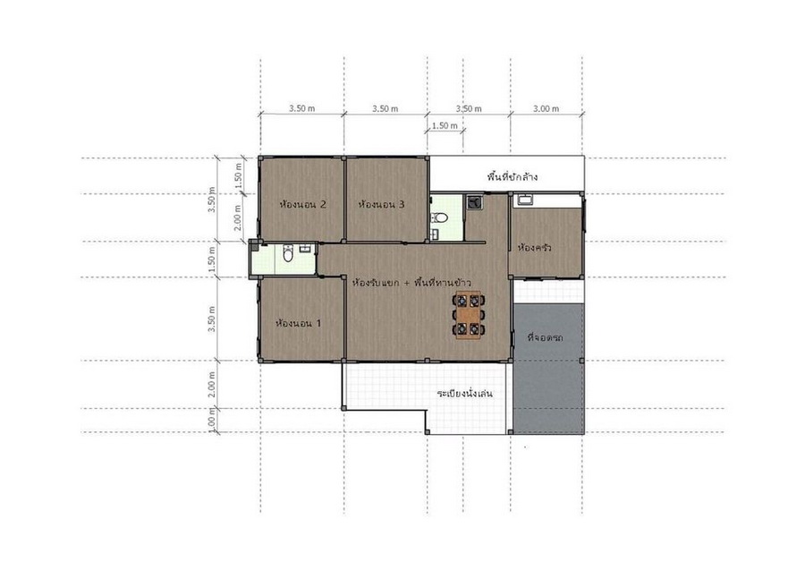
แบบแปลนภายในบ้าน

แบบบ้านสไตล์โมเดิร์นหลังนี้ประกอบไปด้วย 3 ห้องนอน 2 ห้องน้ำ 1 ห้องโถงนั่งเล่นพร้อมห้องรับประทานอาหาร 1 ห้องครัว มีพื้นที่ซักล้างและที่จอดรถกว้างขวาง พื้นที่ใช้สอยทั้งหมดประมาณ 180 ตารางเมตร ราคาแบบอยู่ที่ 3,900 บาท เพื่อน ๆ สามารถสอบถามข้อมูลได้จากช่องทางติดต่อด้านล่างกันได้เลยจ้า
ปล. งบประมาณในการสร้างบ้านแต่ละหลังที่แตกต่างกันนั้น ขึ้นอยู่กับหลายปัจจัย ไม่ว่าจะเป็นพื้นที่ก่อสร้าง คุณภาพหรือเกรดของวัสดุ การว่าจ้างช่างฝีมือหรือผู้รับเหมา ฯลฯ ดังนั้น ข้อมูลของบ้านหลังนี้จึงมีไว้เพื่อเป็นตัวอย่างให้ศึกษาเท่านั้น ไม่สามารถนำไปเป็นมาตรฐานในการสร้างบ้านอื่น ๆ ที่มีสภาพปัจจัยที่แตกต่างกันได้
ที่มา : AP house loei
เบอร์โทรศัพท์ : 0918846135
LINE ID : 0918846135

.

.
.