บ้านทรงไทยประยุกต์ ผลงานการออกแบบโดย แบบบ้านไทยประยุกต์-แบบบ้านป่าตาล บ้านพักอาศัยที่มีพื้นที่ใช้สอยกว้างขวาง จึงเหมาะกับครอบครัวใหญ่ มาพร้อมกับดีไซน์และการออกแบบที่ให้กลิ่นอายบ้านทรงไทยเดิมที่สวยงามสะดุดตาสุด ๆ
บ้านหลังนี้เป็นบ้านขนาดชั้นครึ่ง ตัวบ้านผสมผสานการออกแบบในสไตล์โมเดิร์นและบ้านทรงไทยเข้าไว้ด้วยกัน จนได้บ้านที่มีทั้งความแข็งแรงทันสมัย รวมถึงมีรายละเอียดการตกแต่งที่สวยงาม โดยเฉพาะรายละเอียดของหลังคาทรงมะนิลาที่ให้ความโดดเด่นที่สุด

บริเวณหน้าบ้านตรงส่วนที่ยกใต้ถุนสูง ถูกใช้เป็นที่จอดรถ ในขณะที่บริเวณเฉลียงทางเข้าก็มีม้านั่งยาวให้ใช้เป็นพื้นที่พักผ่อนโดยเฉพาะ

รอบตัวบ้านถูกติดตั้งหน้าต่างทรงสูงไว้จำนวนหลายบาน จึงทำให้บ้านโปร่งสบายทั้งวัน นอกจากนี้ บริเวณด้านหลังยังมีลานเปิดโล่งเพื่อใช้เป็นลานซักล้างอีกด้วย

เมื่อเข้ามาภายในบ้าน เราก็จะพบกับห้องโถงหลักของบ้าน ซึ่งถูกตกแต่งในโทนสีขาว จึงทำให้ภายในดูสว่างและมีมิติมากยิ่งขึ้น

เช่นเดียวกับห้องนอน แม้จะมีพื้นที่ไม่มาก แต่การตกแต่งด้วยโทนสีขาว จึงช่วยให้ห้องดูสว่างและดูกว้างกว่าเดิม นอกจากนี้ ภายในห้องยังมีสิ่งอำนวยความสพดวกที่เพียงพอต่อการใช้งานอีกด้วย

ห้องครัวมีพื้นที่ใช้สอยที่กว้างเป้นพิเศษ บริเวณครัวเป็นเคาน์เตอร์แบบติดผนัง โดยมีฟังก์ชันการใช้งานที่ครบถ้วน สามารถทำอาหารได้อย่างเพลิดเพลิน

ในส่วนของห้องน้ำ เป็นอีกห้องที่มีพื้นที่ไม่มาก แต่ก็เพียงพอต่อการใช้งาน โดยภายในมีชุดสุขภัณฑ์ที่ครบถ้วน สามารถใช้งานได้อย่างมีประสิทธิภาพ

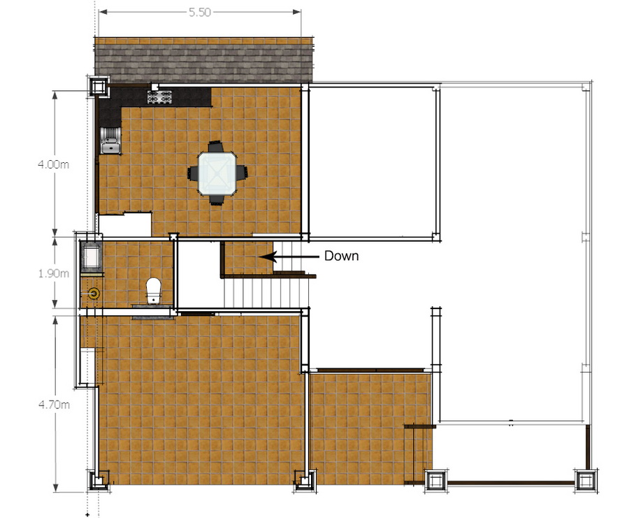
แบบแปลนภายในบ้าน (ชั้นล่าง)

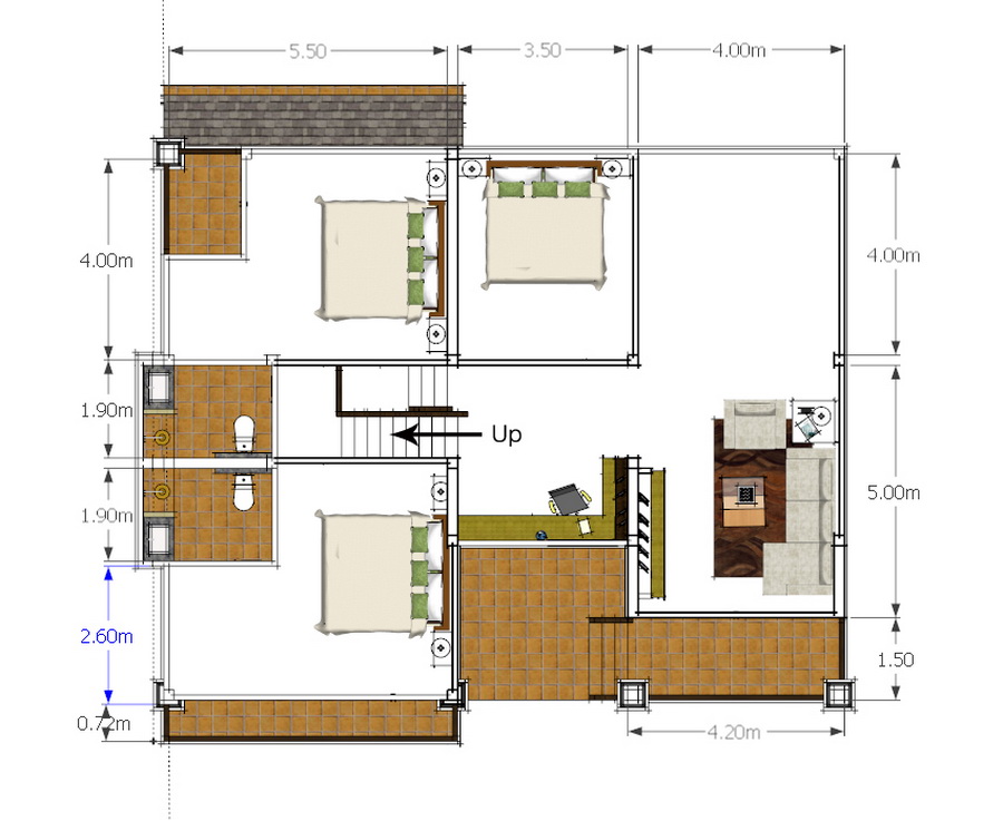
แบบแปลนภายในบ้าน (ชั้นบน)

บ้านชั้นครึ่งยกพื้นสูง ทรงไทยประยุกต์หลังนี้ประกอบไปด้วย 3 ห้องนอน 3 ห้องน้ำ 1 ห้องโถงนั่งเล่น 1 ห้องครัว ที่จอดรถ 2 คัน พื้นที่ใช้สอยทั้งหมดประมาณ 215 ตารางเมตร งบก่อสร้างเริ่มต้นประมาณ 1.9 ล้านบาท
ปล. งบประมาณในการสร้างบ้านแต่ละหลังที่แตกต่างกันนั้น ขึ้นอยู่กับหลายปัจจัย ไม่ว่าจะเป็นพื้นที่ก่อสร้าง คุณภาพหรือเกรดของวัสดุ การว่าจ้างช่างฝีมือหรือผู้รับเหมา ฯลฯ ดังนั้น ข้อมูลของบ้านหลังนี้จึงมีไว้เพื่อเป็นตัวอย่างให้ศึกษาเท่านั้น ไม่สามารถนำไปเป็นมาตรฐานในการสร้างบ้านอื่น ๆ ที่มีสภาพปัจจัยที่แตกต่างกันได้
ที่มา : แบบบ้านไทยประยุกต์-แบบบ้านป่าตาล
เบอร์โทรศัพท์ : 089-9533169 คุณไปรยา
LINE ID : @banpatan
E-mail : [email protected]

.

.

.

.
.