สวัสดีครับเพื่อนๆ ชาวเว็บ ในบ้าน ทุกท่าน วันนี้เราขอพาไปชมแบบบ้านชั้นเดียวสไตล์โมเดิร์น ผลงานจาก Sam House Plan มีการออกแบบที่โดดเด่นทันสมัย พร้อมพื้นที่ใช้สอยชั้นดาดฟ้า ตามมาชมรายละเอียดอื่นๆ กันเลยครับ
ลักษณะตัวบ้านชั้นเดียว ดีไซน์แบบโมเดิร์นที่เน้นเส้นสายสี่เหลี่ยม ตกแต่งด้วยโทนสีขาว น้ำตาล เทา และดำ ให้ภาพลักษณ์ที่สุขุมนุ่มลึก

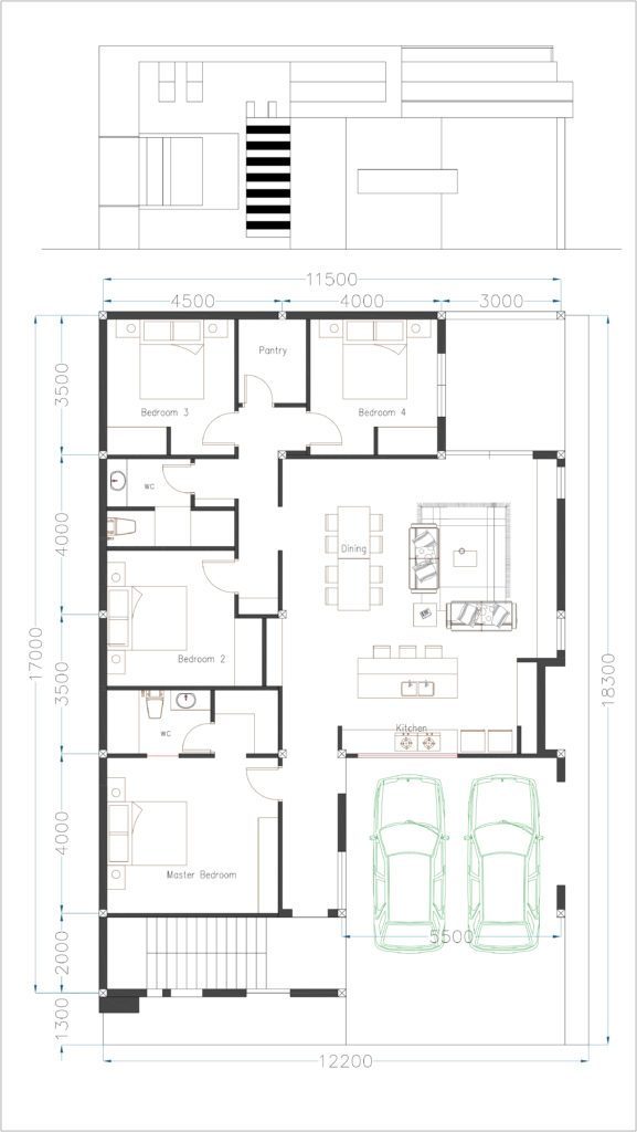
ตัวบ้านมีรูปทรงหน้าแคบหลังลึก เหมาะสำหรับที่ดินแคบๆ ซึ่งบ้านหลังนี้ก็มีการจัดสรรฟังก์ชันการใช้งานที่ครบครันทันสมัย เพียงพอสำหรับไลฟ์สไตล์คนยุคใหม่

ด้านหน้ามีที่จอดรถใต้ชายคา

ส่วนชั้นดาดฟ้าเป็นพื้นที่เอนกประสงค์ เอาไว้จัดสวนหรือเป็นมุมสังสรรค์ก็อาจเป็นได้

แปลนพื้นที่

บ้านสไตล์โมเดิร์นหลังนี้ประกอบไปด้วย 4 ห้องนอน 2 ห้องน้ำ พื้นที่ใช้สอย 223 ตร.ม. เหมาะสำหรับคนที่ชอบดีไซน์ทันสมัยและบ้านโทนสีเข้มขรึมครับ
ที่มา : Sam House Plan

.
.