แบบบ้านโมเดิร์นเล่นระดับทรงกล่อง ผลงานการออกแบบจากสทีมสถาปนิกของ CONCEPTHOME แบบบ้านรูปทรงกล่องสี่เหลี่ยมโทนสีขาว พร้อมดีไซน์ตัวอาคารเล่นระดับที่ทำให้บ้านเรียบ ๆ หลังนี้ ดูมีเอกลักษณ์ไม่น้อยเลยครับ
บ้านขนาดชั้นครึ่ง หลังคาทรงสแลป ตกแต่งผนังภายนอกด้วยโทนสีขาวทั้งหมด แทรกไปด้วยรายละเอียดของกระจกและวงกบไม้ ซึ่งช่วยให้ภาพรวมของบ้านดูอบอุ่นขึ้นด้วยครับ

ตัวอาคารมีลักษณะเหมือนกล่องสองกล่องติดชิดกัน โดยกล่องทางขวามือจะอยู่ในระดับที่สูงกว่ากล่องชั้นล่าง มีลักษณะเป็นห้องกระจกซึ่งเป็นพื้นที่ห้องโถงนั่นเอง ในขณะที่กล่องทางซ้ายมือนั้นจะเป็นอู่ซ่อมรถในชั้นล่างและเป็นพื้นที่ห้องนอนและห้องครัว

ส่วนหน้าของอาคารนั้นจะเป็นบันไดนำไปสู่ประตูทางเข้าและระเบียงหน้าบ้าน จากมุมนี้จะเห็นได้ว่าพื้นที่จอดรถใต้อาคารนั้นเชื่อมไปถึงด้านหลังตัวบ้าน เชื่อมต่อไปยังระเบียงด้านหลังอีกแห่งหนึ่งด้วย

.

หลังบ้าน

การตกแต่งภายใน
สำหรับงานอินทีเรียของบ้านหลังนี้ ผู้ออกแบบได้เลือกใช้สไตล์โมเดิร์นมินิมอลที่ดูเรียบง่าย เน้นผนังโทนสีขาว เทา แทรกไปด้วยรายละเอียดของงานไม้จากพื้นและผนัง มีการจัดวางองค์ประกอบต่าง ๆ โดยเน้นให้ดูโล่ง ๆ น้อย ๆ เพื่อสร้างความรู้สึกการใช้ชีวิตที่เรียบง่ายและทันสมัยที่สุด

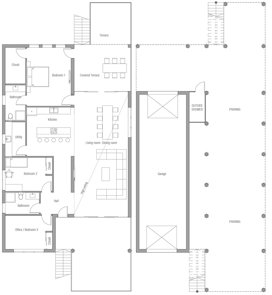
แปลนพื้นที่

แบบบ้านสไตล์โมเดิร์นหลังนี้ประกอบไปด้วย 3 ห้องนอน 2 ห้องน้ำ พื้นที่ใช้สอย 246 ตารางเมตร หากเพื่อน ๆ ชาวเว็บชื่นชอบไอเดียของบ้านหลังนี้ อย่าลืมเอาไปแชร์ต่อกันนะครับ ^_^
ที่มา : concepthome

.

.

.
.