แบบบ้านสไตล์คอนเทมโพรารี ผลงานการออกแบบโดยทีมงานสถาปนิกจาก บ้านรักษ์ เป็นบ้านพักอาศัยหลังใหญ่ที่ออกแบบให้มีพื้นที่ห้องทำงาน ซึ่งเหมาะกับไลฟ์สไตล์ของคนยุคนี้ที่นิยมการทำงานที่บ้าน เราลองมาชมรายละเอียดของบ้านหลังนี้ไปพร้อมกันเลยครับ
บ้านหลังนี้เป็นบ้านขนาดสองชั้น ตัวบ้านถูกออกแบบด้วยดีไซน์ที่เรียบง่ายในแบบเรขาคณิตตามแบบฉบับบ้านสไตล์คอนเทมโพรารี ด้านการตกแต่งนั้นจะเลือกใช้สีโทนอ่อนอย่างสีเทาอ่อน ผสานไปกับสีดำและสีน้ำตาล จึงให้บรรยากาศที่สบายตา

รอบตัวบ้าน ถูกติดตั้งด้วยหน้าต่างกระจกใสทรงสุงไว้โดยรอบ จึงทำให้บ้านมีความโปร่งสบาย สามารถรับแสงจากธรรมชาติในช่วงกลางวันได้อย่างพอเหมาะ

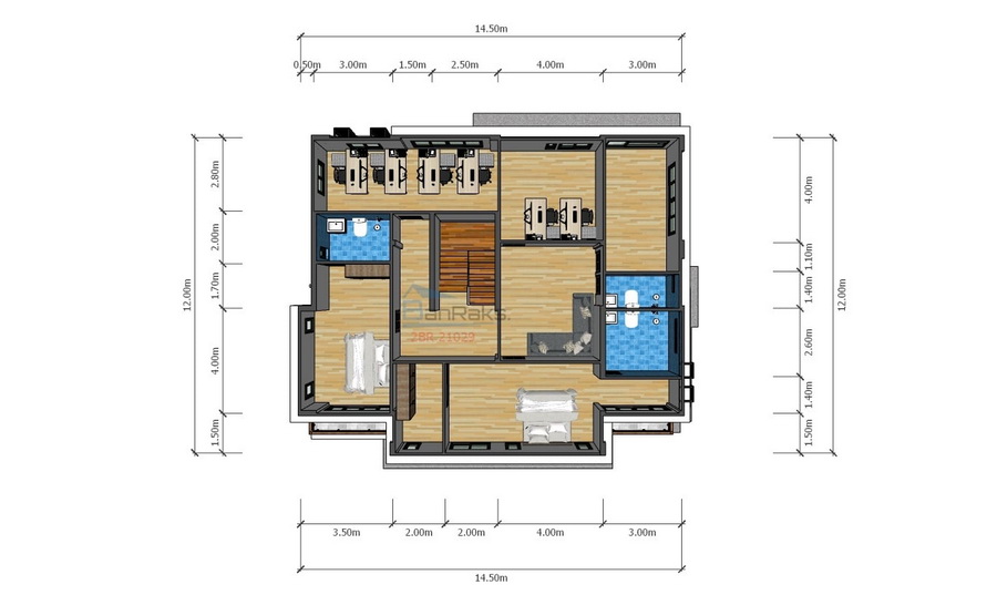
แบบแปลนภายในบ้าน (ชั้นล่าง)

แบบแปลนภายในบ้าน (ชั้นบน)

แบบบ้านพักอาศัย 2 ชั้น สไตล์คอนเทมโพรารีหลังนี้ประกอบไปด้วย 6 ห้องนอน 5 ห้องน้ำ ห้องทำงาน ห้องฟิตเนส โถงรับแขก โถงพักผ่อน ห้องครัว ห้องอาหาร ระเบียงพักผ่อน พื้นที่ใช้สอยทั้งหมดประมาณ 338 ตารางเมตร ราคางบประมาณที่ 5.29 ล้านบาท
ปล. งบประมาณในการสร้างบ้านแต่ละหลังที่แตกต่างกันนั้น ขึ้นอยู่กับหลายปัจจัย ไม่ว่าจะเป็นพื้นที่ก่อสร้าง คุณภาพหรือเกรดของวัสดุ การว่าจ้างช่างฝีมือหรือผู้รับเหมา ฯลฯ ดังนั้น ข้อมูลของบ้านหลังนี้จึงมีไว้เพื่อเป็นตัวอย่างให้ศึกษาเท่านั้น ไม่สามารถนำไปเป็นมาตรฐานในการสร้างบ้านอื่น ๆ ที่มีสภาพปัจจัยที่แตกต่างกันได้
ที่มา : บ้านรักษ์
เว็บไซต์ : www.banraks.net
เบอร์โทรศัพท์ : 097 978 9822
อีเมลล์ : [email protected]

.

.

.

.

.
