ในปัจจุบันการพักอาศัยในอพาร์ทเมนต์หรือคอนโดมิเนียมเป็นที่นิยม เพราะมีราคาที่ถูกกว่าบ้าน สามารถดูแลและตกแต่งได้ง่าย โดยเฉพาะตามเมืองใหญ่ที่ผู้คนจะเลือกซื้อห้องชุดเหล่านี้แทนบ้าน
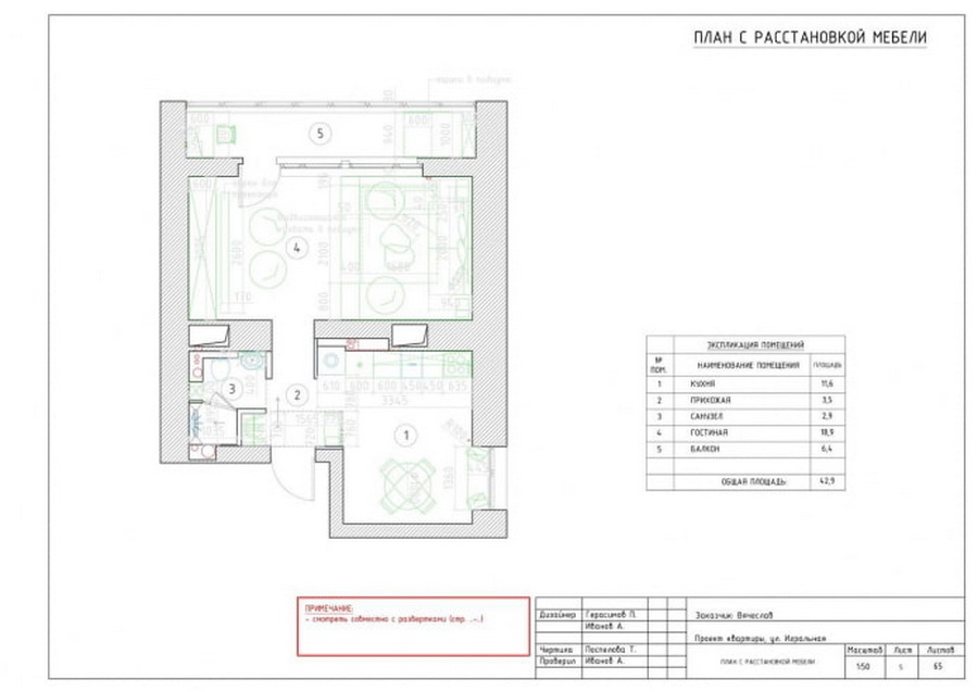
วันนี้ ในบ้าน จะมาแนะนำ 5 แนวทางตกแต่งสตูดิโออพาร์ทเมนต์ ขนาด 34 ตารางเมตร แนวทางการออกแบบตกแต่งห้องที่มีขนาดมาตรฐานของห้องชุดในปัจจุบัน เพื่อเป็นแนวทางและข้อมูลให้เพื่อน ๆ ได้ลองนำไปประยุกต์ใช้ในห้องของตัวเอง
1. ดีไซน์แบบสตูดิโอ
แนวทางการออกแบบแนวทางแรกจะเป็นการแบ่งพื้นที่ใช้งานส่วนต่าง ๆ ของบ้านโดยจะกั้นพื้นที่แต่ละส่วนด้วยผ้าม่าน เคาน์เตอร์ครัวจะแบ่งเป็นสองส่วนเพื่อใช้งานได้หลากหลายขึ้น

.

.

2. พื้นที่ใช้สอยล้อมห้องน้ำ
แนวทางการตกแต่งแนวนี้จะออกแบบพื้นที่ใช้สอยไว้ล้อมห้องน้ำ ซึ่งห้องนอนกับห้องนั่งเล่นคือส่วนเดียวกัน ซึ่งจะใช้เตียงแบบพับได้

.

.

.

3. อพาร์ทเมนต์แบบหนึ่งห้องนอน
สำหรับแนวทางการตกแต่งแนวนี้จะแบ่งพื้นที่เป็น 3 ส่วนหลัก คือ ห้องนอน ห้องนั่งเล่นและพื้นที่อื่น ๆ โดยจะกั้นแบ่งพื้นที่ด้วยประตูไม้สีขาว

.

.

.

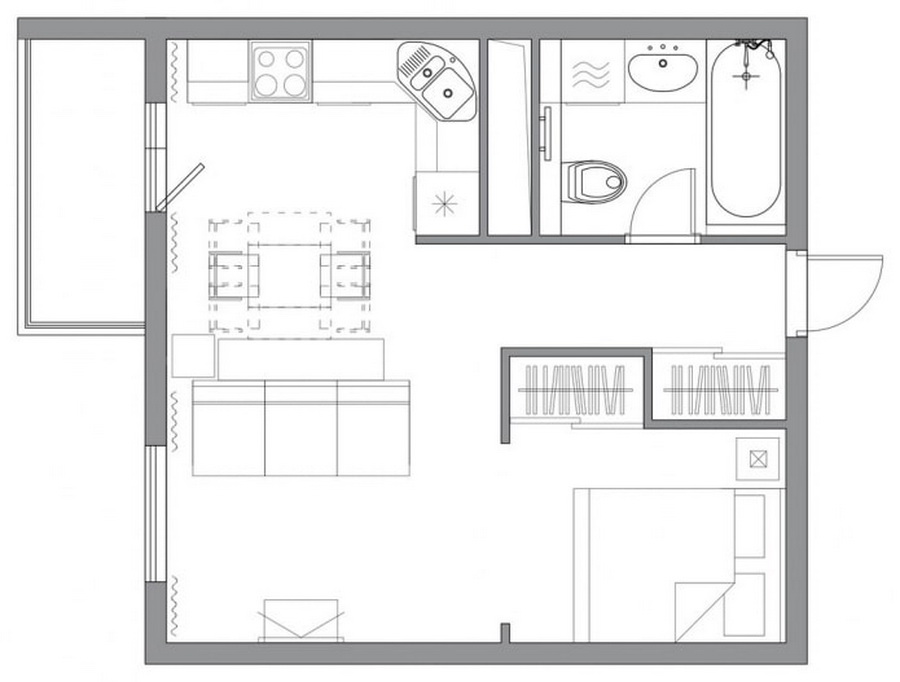
4. โถงทางเดินนำสู่ห้องนั่งเล่น
การออกแบบแนวนี้เมื่อเราเข้ามาในห้องจะเดินผ่านโถงทางเดินที่ด้านขวามเป็นห้องนอน ด้านซ้ายเป็นตู้เก็บของ ทำให้ทางเดินจะนำเราไปสู่ห้องนั่งเล่นและห้องครัว

.

.

.

5. พื้นที่พักผ่อนแบบเล่นระดับ
การตกแต่งห้องนอนนี้จะออกแบบพื้นที่พักผ่อนที่เป็นห้องนอนและห้องนั่งเล่นในลักษณะเป็นพื้นเล่นระดับ เพื่อิให้สามารถใช้พื้นที่ได้คุ้มค่าและหลากหลายที่สุด

.

.

.

.

ที่มา : design-homes .