กลับมาพบกันอีกครั้งสำหรับไอเดียใหม่ๆ ในการสร้างบ้านในฝัน วันนี้ ในบ้าน ขอเอาใจคนที่ชอบบ้านหลังเล็กกระทัดรัด ด้วยบ้านดีไซน์ทรงจั่ว ผลงานจาก samhouseplans ขนาด 1 ห้องนอน 1 ห้องน้ำ สำหรับสร้างเป็นบ้านพัก โฮมสเตย์ หรือที่อยู่อาศัยสำหรับคนโสดและคู่รัก รายละเอียดจะเป็นอย่างไรนั้น ไปติดตามกันเลยค่ะ
บ้านหลังนี้ ถูกออกแบบในสไตล์คอทเทจ หลังคาทรงจั่วสองชั้น ผนังกรุด้วยไม้เทียมสีขาว แทรกด้วยบัวสีส้มอมชมพูบริเวณประตู ทำให้บ้านหลังนี้ดูโดดเด่น สวยงามมากขึ้น

บริเวณหน้าบ้านปูด้วยบล็อกคอนกรีต วางสลับกันเป็นลวดลายที่สวยงาม ด้านข้างมีสวนหย่อม ทำให้บ้านร่มรื่น สวยงาม ก่อนถึงประตูทางเข้าหลังของบ้านมีระเบียงเล็กๆ สำหรับนั่งพักผ่อน สูดอากาศ รับประทานอาหารมื้อเล็กๆ นอกบ้าน

ด้านหลังบ้านมีประตูเปิดสู่ลานสักล้างทางด้านหลัง มีพื้นที่สำหรับปลูกสวนหย่อน หรือทำกิจกรรมอเนกประสงค์

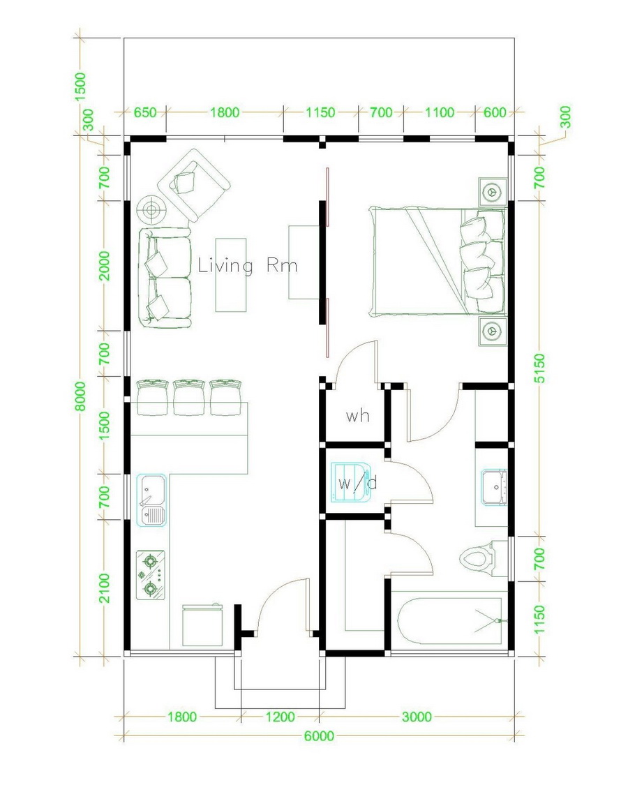
แบบแปลนด้านใน

พื้นที่ด้านในประกอบไปด้วยห้องนอน 1 ห้องนอน 1 ห้องน้ำ และห้องนั่งเล่น ห้องครัวทางด้านหลัง ครบครันทุกความต้องการพื้นฐานสำหรับคนโสด คู่รัก หรือพักอาศัยชั่วคราว หากเพื่อนๆ คนไหนกำลังมองหาบ้าขนาดเล็กกะทัดรัด บนพื้นที่จำกัดก็สามารถเก็บไว้เป็นไอเดียกันได้เลยค่ะ
ที่มา : samhouseplans
แบบแปลนหลังคา

รูปด้าน

.
.