สวัสดีครับเพื่อน ๆ ชาวเว็บทุกท่าน หากเพื่อน ๆ กำลังมองหาไอเดียแบบบ้านเพื่อครอบครัวใหญ่กันอยู่ล่ะก็ วันนี้ ในบ้าน จะพาไปชม แบบบ้านสไตล์โมเดิร์น เป็นผลงานการออกแบบโดย Thehillside-Design ลองไปชมกันได้เลยครับ
แบบบ้านหลังนี้เป็นบ้านขนาดสองชั้น ตัวบ้านเป็นบ้านทรงโมเดิร์นแบบหน้ากว้าง พร้อมกับเน้นพื้นที่ใช้สอยที่กว้างขวางภายในบ้าน ด้านการตกแต่งนั้น ผนังภายนอกเลือกใช้โทนสีฟ้าอมเทา ตัดกับสีขาว หลังคาบ้านผสมผสานทรงเพิงหมาแหงนและแบบเรียบที่เข้ากันอย่างลงตัว

รอบตัวบ้านถูกติดตั้งด้วยหน้าต่างกระจกใสไว้โดยรอบ จึงทำให้บ้านโปร่งสบายถ่ายเทอากาศได้ดี เหมาะกับบ้านในเมืองร้อน ทั้งยังสร้างบรรยากาศที่ผ่อนภายในกับภายในบ้านได้อีกด้วย
.

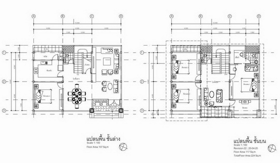
แบบแปลนภายในบ้าน

แบบบ้านสองชั้นสไตล์โมเดิร์นหลังนี้ประกอบไปด้วย 5 ห้องนอน 3 ห้องน้ำ 2 ห้องโถงนั่งเล่น 1 ห้องครัว พื้นที่ก่อสร้างทั้งหมด 224 ตารางเมตร งบก่อสร้างอยู่ที่ประมาณ 2.5 ล้านบาท
ปล. งบประมาณในการสร้างบ้านแต่ละหลังที่แตกต่างกันนั้น ขึ้นอยู่กับหลายปัจจัย ไม่ว่าจะเป็นพื้นที่ก่อสร้าง คุณภาพหรือเกรดของวัสดุ การว่าจ้างช่างฝีมือหรือผู้รับเหมา ฯลฯ ดังนั้น ข้อมูลของบ้านหลังนี้จึงมีไว้เพื่อเป็นตัวอย่างให้ศึกษาเท่านั้น ไม่สามารถนำไปเป็นมาตรฐานในการสร้างบ้านอื่นๆ ที่มีสภาพปัจจัยที่แตกต่างกันได้
ที่มา : thehillside-design .