แบบบ้านโมเดิร์นสองชั้นทรงหน้าแคบ ผลงานการออกแบบโดยทีมงาน Philippine House Plans รูปทรงบ้านมีพื้นฐานการออกแบบมาจากเรขาคณิต แต่มีการตกแต่งโดยเน้นความเป็นธรรมชาติด้วยสีเอิร์ธโทนเป็นหลัก ลองมาชมกันเลยครับ
ตัวบ้านสองชั้นรูปทรงกล่องสี่เหลี่ยม รูปทรงหน้าแคบหลังลึก หลังคาทรงเพิงแหงน ผนังภายนอกตกแต่งด้วยสีเอิร์ธโทนเป็นหลัก ชั้นล่างเลือกใช้ผนังสีดำ ในขณะที่ชั้นบนเป็นผนังโทนสีครึมที่มีการเพิ่มรายละเอียดของอิฐหินทรายตรงกลางด้วย

บ้านหลังนี้ถูกออกแบบสำหรับที่ดินแบบหน้าแคบหลังลึก แต่ก็ยังคงมีฟังก์ชันภายนอกที่ครบครัน รองรับไลฟ์สไตล์ของคนเมืองได้เป็นอย่างดี มีทั้งที่จอดรถหน้าบ้านพร้อมซุ้มระแนง และสนามหญ้าสีเขียวขนาดเล็ก อีกทั้งผู้ออกแบบยังจัดวางพืชแขวนแนวตั้งไว้ตรงผนังรั้วบ้านอีกด้วย

แปลนพื้นที่ชั้น 1

.

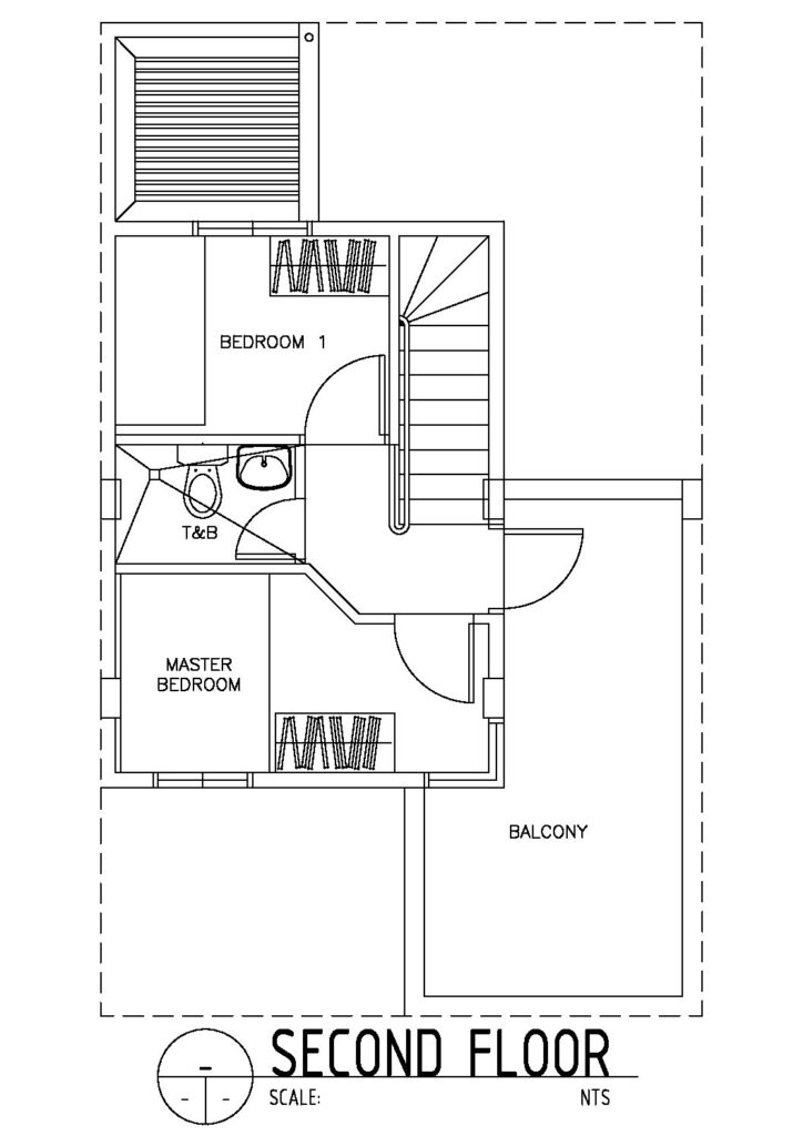
แปลนพื้นที่ชั้น 2

.

แบบบ้านหลังนี้ประกอบไปด้วย 2 ห้องนอน 2 ห้องน้ำ 1 ที่จอดรถ พื้นที่ใช้สอย 62 ตารางเมตร (ต้องการที่ดินอย่างน้อยกว้าง 6 เมตร ยาว 10 เมตร)
ปล. งบประมาณในการสร้างบ้านแต่ละหลังที่แตกต่างกันนั้น ขึ้นอยู่กับหลายปัจจัย ไม่ว่าจะเป็นพื้นที่ก่อสร้าง คุณภาพหรือเกรดของวัสดุ การว่าจ้างช่างฝีมือหรือผู้รับเหมา ฯลฯ ดังนั้น ข้อมูลของบ้านหลังนี้จึงมีไว้เพื่อเป็นตัวอย่างให้ศึกษาเท่านั้น ไม่สามารถนำไปเป็นมาตรฐานในการสร้างบ้านอื่นๆ ที่มีสภาพปัจจัยที่แตกต่างกันได้
ที่มา : philippinehouseplans .