แบบบ้านชั้นเดียวสไตล์คาเฟ่ลอฟท์ ผลงานการออกแบบโดยทีมงาน Is More ArchitecturalDsign เน้นการตกแต่งด้วยไม้ บนรูปทรงดีไซน์บ้านที่มีเอกลักษณ์ พร้อมบรรยากาศภายในโปร่งโล่ง สะดวกสบาย แม้จะมีพื้นที่เพียง 67 ตารางเมตรเท่านั้น
บ้านขนาดชั้นเดียว ออกแบบเป็นรูปทรงตัวที (T-Shaped House) เลือกใช้หลังคาทรงจั่ว ผนังภายนอกเป็นปูนเปลือยโทนสีเทาอ่อน เสริมด้วยไม้ระแนงตามพื้นผิวภายนอก ลงตัวไปกับหน้าต่างกระจกบานใหญ่ที่ติดตั้งไว้หลายบาน เผยให้เห็นความสวยงามของพื้นที่ภายในบ้าน

บริเวณด้านหน้าของอาคาร ยังมีแปลงปลูกพืชคอนกรีตชิดติดผนังอยู่ด้วย เป็นลูกเล่นเล็ก ๆ น้อย ๆ ที่ช่วยเพิ่มความสดชื่นเป็นธรรมชาติให้กับบ้านหลังนี้

เฉลียงไม้ด้านหน้าเป็นบ่อน้ำรูปทรงสี่เหลี่ยมผืนผ้า เป็นอีกหนึ่งองค์ประกอบที่ช่วยเพิ่มความสดชื่น และยังสามารถใช้เป็นบ่อเลี้ยงปลาได้ด้วย

.

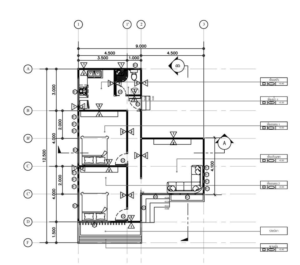
แปลนพื้นที่


แบบบ้านหลังนี้ประกอบไปด้วย 2 ห้องนอน 1 ห้องน้ำ 1 ห้องรับแขก 1 ห้องครัว 1 บ่อปลา พื้นที่ใช้สอย 67 ตารางเมตร หากเพื่อน ๆ ชาวเว็บต้องการข้อมูลเพิ่มเติมเกี่ยวกับแบบบ้านนี้ สามารถสอบถามข้อมูลเพิ่มเติมจากผู้ออกแบบโดยตรงผ่านช่องทางติดต่อด้านล่างนี้เลยนะครับ
ปล. งบประมาณในการสร้างบ้านแต่ละหลังที่แตกต่างกันนั้น ขึ้นอยู่กับหลายปัจจัย ไม่ว่าจะเป็นพื้นที่ก่อสร้าง คุณภาพหรือเกรดของวัสดุ การว่าจ้างช่างฝีมือหรือผู้รับเหมา ฯลฯ ดังนั้น ข้อมูลของบ้านหลังนี้จึงมีไว้เพื่อเป็นตัวอย่างให้ศึกษาเท่านั้น ไม่สามารถนำไปเป็นมาตรฐานในการสร้างบ้านอื่นๆ ที่มีสภาพปัจจัยที่แตกต่างกันได้
ที่มา : Is More ArchitecturalDsign
Tel : 099-3953889, 095-1404209
Line ID : PP.KC

.

.
.