กลับมาพบกันเป็นประจำกับแบบบ้านสวยๆ ที่ ในบ้าน นำเอามาฝากเพื่อน ๆ กันเป็นประจำ เพื่อเป็นข้อมูลและไอเดียไว้ให้ศึกษา ก่อนที่เพื่อน ๆ จะมีบ้านเป็นของตัวเอง วันนี้เรามี แบบบ้านสไตล์โมเดิร์น จาก philippine house plans มาฝากเพื่อน ๆ มาเก็บไอเดียกันเลยครับ
สำหรับแบบบ้านหลังนี้เป็นแบบบ้านชั้นเดียว ตัวบ้านมีลักษณะหน้าแต่แคบยาว จึงเหมาะกับที่ดินที่มีขนาดไม่กว้าง ตัวบ้านถูกออกแบบในสไตล์โมเดิร์น บริเวณหน้าบ้านถูดีไซน์ให้มีรายละเอียดที่สวยงามเป็นเอกลักษณ์ พร้อมกับมีพื้นที่ใช้สอยด้านหน้า นอกตัวบ้านในแบบพอประมาณ

ด้านรายละเอียดการตกแต่งนั้น ตัวบ้านเลือกใช้สีน้ำตาลมาเป็นธีมหลัก แซมด้วยสีดำและขาว เพื่อให้บ้านมีรายละเอียดที่สวยงามน่าดึงดูด

.

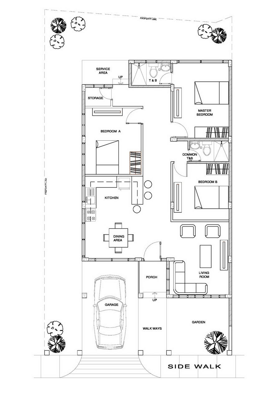
แบบแปลนภายในบ้าน

แบบบ้านหน้าแคบทรงโมเดิร์นหลังนี้ประกอบไปด้วย 3 ห้องนอน 2 ห้องน้ำ 1 ห้องนั่งเล่น 1 ห้องครัว 1 ห้องเก็บของ พร้อมที่จอดรถและสวนหน้าบ้าน พื้นที่ใช้สอยทั้งหมดประมาณ 73 ตารางเมตร
ที่มา : philippinehouseplans .