กำลังอ่าน:

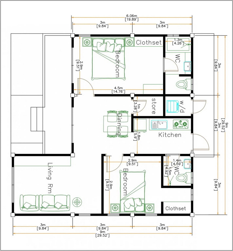
แบบบ้านหลังเล็กทรงโมเดิร์นรูปตัวแอล (L-Shaped House) 2 ห้องนอน 2 ห้องน้ำ พื้นที่ 81 ตารางเมตร

แบบบ้านหลังเล็กทรงโมเดิร์นรูปตัวแอล (L-Shaped House) 2 ห้องนอน 2 ห้องน้ำ พื้นที่ 81 ตารางเมตร

บ้านสไตล์โมเดิร์น...

19 May 2020 2 Mins Read
1.1K Views

รู้จัก "ในบ้าน"

รวมไอเดียตกแต่งบ้าน รีวิวบ้าน คาเฟ่ ที่พัก ไปจนถึงทุกเรื่องของการใช้ชีวิต ขอบคุณทุกคนที่ติดตามกันมาตั้งแต่ปี 2012 

ติดต่อในบ้าน

ติดต่อคอนเทนต์:  Inbox NaiBann
ติดต่อโฆษณา: [email protected]

© 2023 All Rights Reserved.