แบบบ้านชั้นเดียวแนวมินิมอล ผลงานการออกแบบจากทีมงาน SATAPON CONSTRUCTION แบบบ้านขนาดกะทัดรัด เน้นความอบอุ่น เรียบง่าย สำหรับครอบครัวเล็ก มาพร้อมกับผนังช่องลมหน้าบ้านซึ่งเป็นจุดเด่นเฉพาะตัวของบ้านหลังนี้ครับ
ลักษณะตัวบ้านชั้นเดียว โครงสร้างยกพื้น หลังคาทรงจั่ว ผนังภายนอกเน้นความเรียบง่ายโดยเลือกใช้โทนสีขาวและสีเทาในการตกแต่ง สะท้อนเอกลักษณ์บ้านสไตล์มินิมอลได้อย่างชัดเจน

หน้าต่างและประตูเลือกใช้แบบกระจกโปร่งใสจึงอาจทำให้ไม่มีความเป็นส่วนตัว โดยผู้ออกแบบได้วางผนังอิฐช่องลมไว้หน้าบ้านบังเฉลียงทางเข้า เป็นองค์ประกอบที่ช่วยบังสายตาจากหน้าต่างกระจกบานใหญ่ได้เป็นอย่างดี

ผู้ออกแบบได้จัดบริบทรอบบ้านให้เป็นสนามหญ้าสีเขียวและส่วนหย่อม สีเขียวจากธรรมชาติช่วยเพิ่มความร่มรื่นให้กับบ้านมินิมอลหลังนี้ได้อย่างลงตัว

ส่วนหน้าของอาคารมีเฉลียงเล็ก ๆ คอนต้อนรับอยู่ และด้านหลังยังมีทางเข้าออกอีกทางหนึ่งด้วย

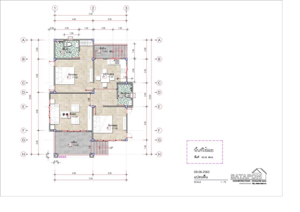
แปลนพื้นที่

แบบบ้านขนาดเล็กหลังนี้ประกอบไปด้วย 2 ห้องนอน 2 ห้องน้ำ ส่วนรับแขก ส่วนทานอาหารและครัว เฉลียงหน้าบ้าน บนพื้นที่ใช้สอย 94 ตารางเมตร งบประมาณก่อสร้างอยู่ที่ 1.3 ล้านบาทเป็นต้นไปครับ
ปล. งบประมาณในการสร้างบ้านแต่ละหลังที่แตกต่างกันนั้น ขึ้นอยู่กับหลายปัจจัย ไม่ว่าจะเป็นพื้นที่ก่อสร้าง คุณภาพหรือเกรดของวัสดุ การว่าจ้างช่างฝีมือหรือผู้รับเหมา ฯลฯ ดังนั้น ข้อมูลของบ้านหลังนี้จึงมีไว้เพื่อเป็นตัวอย่างให้ศึกษาเท่านั้น ไม่สามารถนำไปเป็นมาตรฐานในการสร้างบ้านอื่นๆ ที่มีสภาพปัจจัยที่แตกต่างกันได้
ที่มา : ช่างสถาพร รับเหมาสร้างบ้าน รับเหมาก่อสร้างเชียงใหม่ รับปรับปรุงต่อเติมบ้าน
SATAPON CONSTRUCTION
สนใจติดต่อ หรือสอบถามข้อมูลเพิ่มเติมได้ที่
Facebook Page : facebook.com/mysataporncon/
โทรศัพท์ : 088-4163114
ID LINE : sataponcon .