สำหรับบทความนี้ ในบ้าน ขอพาเพื่อนๆ ชาวเว็บไปชมแบบบ้านโมเดิร์นสองชั้นที่ตกแต่งด้วยโทนสีและวัสดุแบบธรรมชาติ ผลงานการออกแบบโดย Philippine House Plans เว็บไซต์ออกแบบบ้านจากประเทศฟิลิปินส์ครับ
แบบบ้าน Ashley ลักษณะตัวบ้านสองชั้น รูปทรงโมเดิร์น หลังคาทรงเพิงแหงนและทรงสแลป ภายนอกตกแต่งด้วยวัสดุที่ให้กลิ่นอายธรรมชาติในสีเอิร์ธโทน ตั้งแต่รั้วไม้หน้าบ้าน ผนังอิฐหินทรายสีเทาภายนอก ผนังไม้โทนสีน้ำตาล ไปจนถึงผนังรั้วโทนสีเบจ

ฟังก์ชันภายนอกประกอบไปด้วยที่จอดรถในชั้นแรก และระเบียงที่ชั้นสอง นอกจากนี้ ตัวบ้านยังเลือกใช้หน้าต่างกระจกบานใหญ่พิเศษ ช่วยให้บรรยากาศภายในบ้านดูโปร่งโล่งและดูกว้างขึ้น แถมยังรับแสงธรรมชาติได้อย่างเต็มที่อีกด้วย

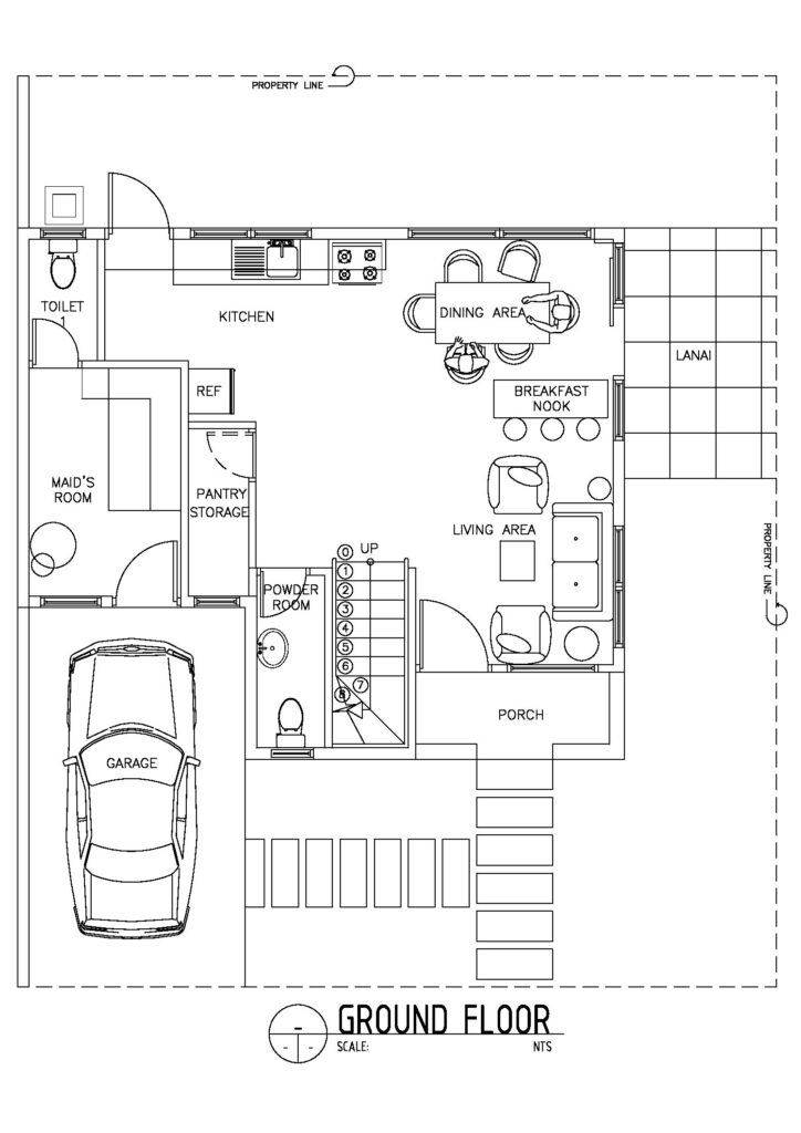
แปลนพื้นที่ชั้น 1
ชั้นหนึ่งคือพื้นที่ส่วนร่วมของทุกคน ประกอบไปด้วยโถง Open Plan ที่มีห้องนั่งเล่น ห้องทานอาหาร บาร์อาหารเช้า ห้องครัว ห้องเก็บของ ห้องน้ำ และห้องนอนเล็ก

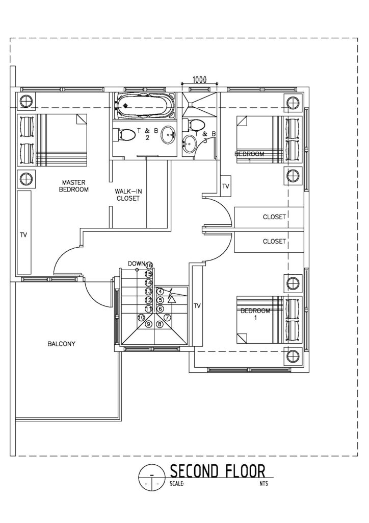
แปลนพื้นที่ชั้น 2
ชั้นสองเป็นพื้นที่ส่วนตัวสำหรับสมาชิกในครอบครัว ประกอบไปด้วยโถงทางเดิน ห้องน้ำ ห้องนอน และระเบียงขนาดค่อนข้างกว้าง

แบบบ้านหลังนี้ประกอบไปด้วย 4 ห้องนอน 2 ห้องน้ำ บนพื้นที่ใช้สอย 188.36 ตารางเมตร เหมาะสำหรับที่ดินหน้ากว้าง 10 เมตร หลังยาว 12 เมตร พร้อมด้วยผนังสูงกั้นพื้นที่อยู่ด้านหนึ่งครับ
ที่มา : philippinehouseplans
.