Assemble House เป็นผลงานการออกแบบโดยทีมงานสถาปนิกจาก PAR Arquitectos เป็นอาคารไม้ที่ออกแบบมาให้เป็นบ้านพักตากอากาศโดยเฉพาะ จะเน้นลักษณะการใช้งานที่มีความหลากหลาย มีความเปิดโล่งและใกล้ชิดกับธรรมชาตินอกบ้าน
บ้านไม้หลังนี้จะมีลักษณะของอาคารรูปกากบาท ซึ่งจะทำให้ผู้พักอาศัยสามารถเข้าถึงวิวทิวทัศน์ได้รอบทิศทาง อีกทั้งการออกแบบในลักษณะนี้ยังทำให้สามารถจัดสรรและตกแต่งพื้นที่แต่ละมุมได้อย่างเป็นสัดส่วนอีกด้วย

โครงสร้างของอาคารหลังนี้สร้างขึ้นด้วยงานไม้ทั้งหลัง จึงให้รูปลักษณ์และโทนสีที่กลมกลืนไปกับธรรมชาติ นอกจากนี้สถาปนิกยังใส่ใจในรายละเอียดของผู้เข้าพักด้วยการออกแบบทางลาดหน้าประตู เพื่อให้ผู้คนทุกช่วงวัยสามารถเดินได้อย่างสะดวกอีกด้วย

จากจุดประสงค์เพื่อเป็นบ้านพักตากอากาศ ทำให้ตัวบ้านจะเน้นการออกแบบที่มีลักษณะเปิดโล่งในเกือบจะทุกมุมของบ้าน ทั้งพื้นที่ส่วนกลาง พื้นที่พักผ่อน ต่างก็มีพื้นที่ขนาดใหญ่ให้สามารถใกล้ชิดกับธรรมชาติได้

พื้นที่ลานกว้างในร่มบริเวณนี้ ถูกออกแบบมาเพื่อกิจกรรมการรับประทานอาหารนอกบ้านโดยเฉพาะ ซึ่งจะมีเตาปิ้งย่างติดตั้งเอาไว้ด้วย และพื้นที่บริเวณนี้ก็จะมีลักษณะเป็นลานโล่ง ๆ จึงสามารถประยุกต์การใช้งานและตกแต่งได้อย่างหลากหลาย

แม้จะเป็นบ้านพักตากอากาศที่ไม่ใช่บ้านพักแบบถาวร แต่ภายในบ้านก็ยังคงมีองค์ประกอบและสิ่งอำนวยความสะดวกที่ครบทุกฟังก์ชันกันเลยทีเดียว

ภายในห้องนอนมีการตกแต่งที่เรียบง่ายในโทนสีที่สว่าง เคล้าไปกับบรรยากาศธรรมชาติภายนอกห้อง จึงทำให้เป็นมุมพักผ่อนที่ช่วยเติมเต็มประสบการณ์ของการพักผ่อนได้เป็นอย่างดี

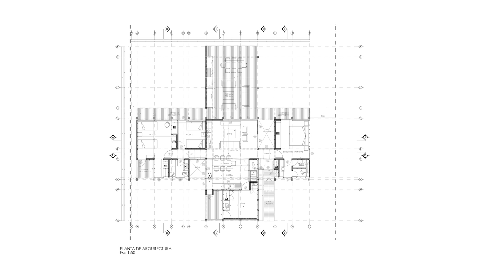
แบบแปลนภายในบ้าน

ที่มา: ArchDaily
ออกแบบ: PAR Arquitectos
ถ่ายภาพ: Diego Elgueta

.

.

.

.

.

.

.

.

.

.

.
