กำลังอ่าน:

Cloud House บ้านแนวโมเดิร์นโทนสีขาวสบายตา ด้านหลังออกแบบเชื่อมต่อกับสวนหลังบ้าน

Cloud House บ้านแนวโมเดิร์นโทนสีขาวสบายตา ด้านหลังออกแบบเชื่อมต่อกับสวนหลังบ้าน

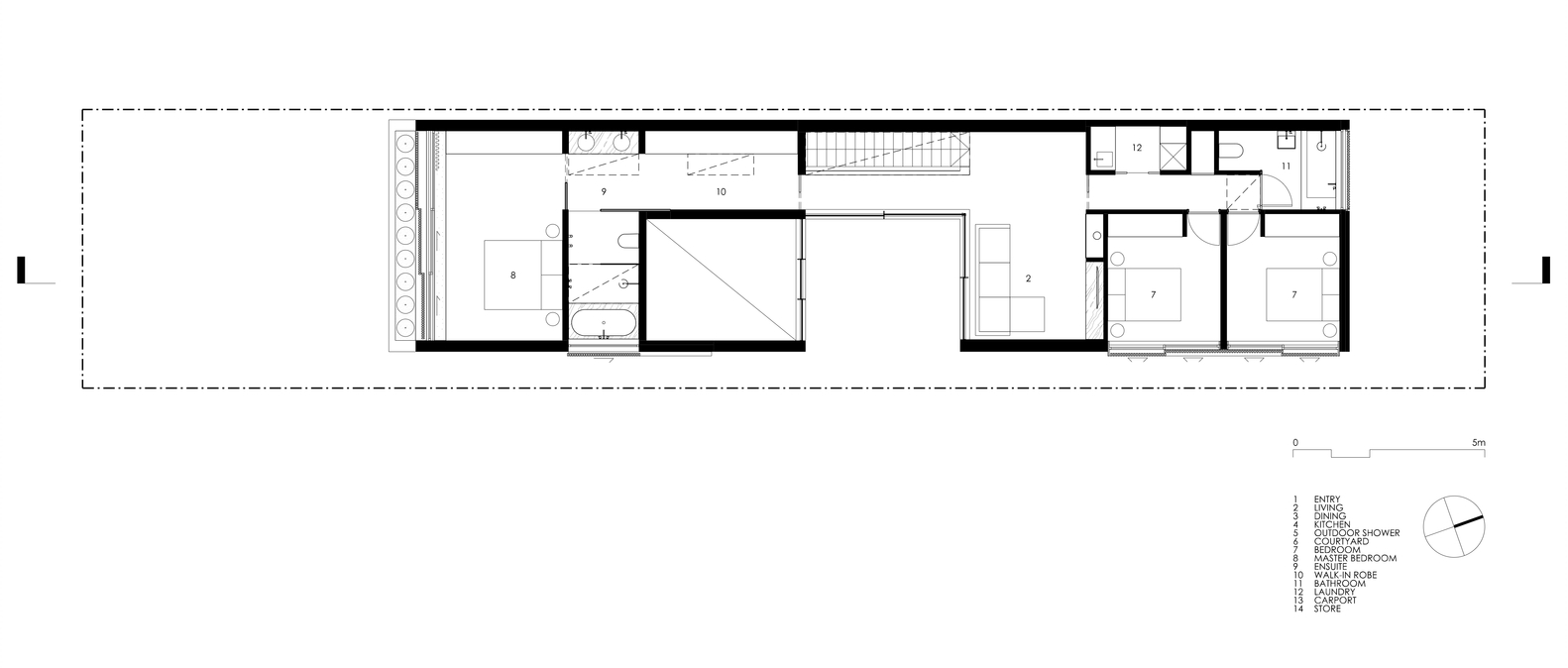
Cloud House เป็นผลงานการออกแบบโดย Akin Atelier...

20 October 2021 4 Mins Read
1.1K Views

รู้จัก "ในบ้าน"

รวมไอเดียตกแต่งบ้าน รีวิวบ้าน คาเฟ่ ที่พัก ไปจนถึงทุกเรื่องของการใช้ชีวิต ขอบคุณทุกคนที่ติดตามกันมาตั้งแต่ปี 2012 

ติดต่อในบ้าน

ติดต่อคอนเทนต์:  Inbox NaiBann
ติดต่อโฆษณา: [email protected]

© 2023 All Rights Reserved.