Minaka House ผลงานการออกแบบโดยสถาปนิกจาก Hinzstudio เป็นบ้านที่ตั้งอยู่บนพื้นที่ขนาดเล็ก จึงทำให้อาคารถูกออกแบบในลักษณะทรงสูงแบบทาวน์เฮ้าส์ เพื่อให้มีพื้นที่ใช้สอยเพียงพอต่อจำนวนสมาชิกที่มีจำนวน 6 คน
ตัวบ้านเป็นอาคารสูงขนาด 4 ชั้น ตั้งอยู่ภายในพื้นที่เมืองใหญ่ จึงมีพื้นที่หน้ากว้างไม่มากนัก ด้านการออกแบบตัวอาคาร สถาปนิกออกแบบด้วยพื้นฐานอาคารแบบโมเดิร์น โดยในด้านการตกแต่งจะเป็นสไตล์ที่สวยดิบของอินดัสเทรียลลอฟท์ ซึ่งสะท้อนผ่านผนังอิฐโชว์แนว

เมื่อผ่านพื้นที่ลานจอดรถหน้าบ้านเข้าไป เราก็จะมาอยู่บริเวณประตูทางเข้าของบ้าน ซึ่งถูกออกแบบด้วยลักษณะผนังกระจกใสบานใหญ่ เพื่อให้ภายในบ้านมีความโปร่งสบาย

ภายในตัวอาคารสถาปนิกออกแบบผนังแบบปูนเปลือย พร้อมกับองค์ประกอบการตกแต่งอย่างเหล็กและไม้ ที่สะท้อนความงามแบบอินดัสเทรียล

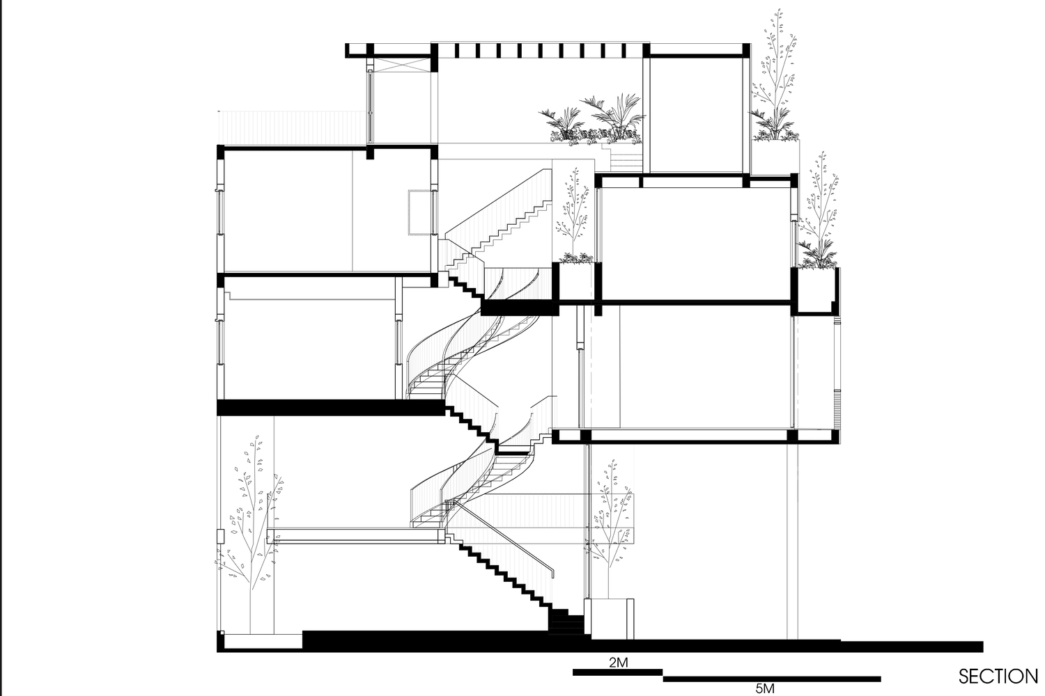
อีกหนึ่งการออกแบบที่น่าสนใจก็คือบันไดมุมนี้ที่เป็นลักษณะบันไดวนที่จะเชื่อมต่อกับแต่ละชั้นของบ้านเอาไว้

สำหรับมุมนี้จะเป็นพื้นที่ของห้องครัวและห้องรับประทานอาหารที่อยู่ภายในพื้นที่กว้าง ๆ โดยเฟอร์นิเจอร์งานไม้ภายในห้องก็ช่วยเพิ่มเสน่ห์ได้ไม่น้อยเลย

แบบแปลนภายในบ้าน

ที่มา: ArchDaily
ออกแบบ: Hinzstudio
ถ่ายภาพ: Đức Ngô

.

.

.

.
