พาไปชมผลงานการรีโนเวทอพาร์ตเมนต์ของคุณ Hamza Ait Kaddour พลิกโฉมจากห้องเก่าดีไซน์เรียบ ๆ เชย ๆ ให้กลายเป็นห้องใหม่สุดทันสมัย ดูอบอุ่นเป็นกันเอง และน่าอยู่กว่าเดิมหลายเท่าเลยทีเดียว
อพาร์ตเมนต์ห้องนี้ตั้งอยู่ในเมืองไถจง ประเทศไต้หวัน โดยห้องเดิมนั้นมีลักษณะเป็นห้องสไตล์ร่วมสมัยที่ดูเรียบ ๆ โล่ง ๆ ไม่มีสีสันและชีวิตชีวาใด ๆ และก็เป็นอพาร์ตเมนต์เก่าที่มีอายุมากกว่า 30 ปี อีกด้วย
โดยในการรีโนเวทครั้งนี้ คุณ Hamza Ait Kaddour ได้เลือกใช้โทนสีขาวและงานไม้เป็นส่วนประกอบหลักในการสร้างบรรยากาศที่อบอุ่นและเรียบง่าย พร้อมด้วยเฟอร์นิเจอร์ลอยตัวและบิวท์อินต่าง ๆ ที่มีกลิ่นอายโมเดิร์น
จากเดิมที่ผนังว่างเปล่า สถาปนิกได้เพิ่มฟังก์ชันด้วยการติดตั้งด้วยตู้เก็บของบิวท์อินและชั้นวางไม้

จากเดิมที่เป็นพื้นกระเบื้องทรงสี่เหลี่ยมผืนผ้าสีขาวเรียบ ๆ ก็ถูกเปลี่ยนเป็นพื้นไม้ที่ผสานไปกับกระเบื้องลายกราฟิก ให้ความรู้สึกที่ที่อบอุ่นแต่ไม่น่าเบื่อจำเจ

สำหรับหน้าต่างบริเวณห้องนั่งเล่น ถูกเปลี่ยนใหม่ให้กลายเป็นม้านั่งแบบบิวท์อินพร้อมตู้เก็บของในตัว พร้อมทั้งวางโซฟาสีเท ติดตั้งชั้นวางทีวีไม้ และชั้นวางติดผนังสีดำ

ปลายโซฟาสีเทานั้นถูกออกแบบให้เป็นมุมทำงานเล็ก ๆ โดยผู้ออกแบบได้เลือกใช้สีทาผนังโทนสีฟ้าบริเวณนี้เพื่อสร้างจุดดึงสายตาของห้อง

จากเวิ้งโล่ง ๆ ในห้อง ก็ถูกปรับเปลี่ยนให้เป็นมุมเก็บของที่ใช้ประโยชน์ได้มากมาย

โถงในอพาร์ตเมนต์นี้มีขนาดค่อนข้างกว้าง เชื่อมต่อห้องนั่งเล่นกับห้องอื่น ๆ ซึ่งผู้ออกแบบได้จัดวางระบบไฟใหม่และออกแบบพื้นที่รับประทานอาหารที่รองรับได้ถึงสี่คน

ในส่วนของห้องครัวซึ่งตั้งอยู่หลังโถงทางเดิน จากเดิมที่มีการตกแต่งด้วยเคาน์เตอร์โทนสีเขียวและผนังกันเปื้อนสีฟ้า ก็ถูกยกเครื่องใหม่เช่นกัน

แต่ก่อนนั้น ห้องนอนใหญ่เป็นห้องโล่งที่มีไว้สำหรับวางเฟอร์นิเจอร์ลอยตัวเท่านั้น ซึ่งผู้ออกแบบได้ปรับเปลี่ยนภาพลักษณ์ให้ดูทันสมัยยิ่งขึ้นด้วยงานบิวท์อินต่าง ๆ และจุดเด่นก็คือมุมทำงานส่วนตัวริมหน้าต่างนั่นเอง

มาชมห้องน้ำใหญ่กันบ้างครับ จะเห็นได้ว่าห้องเดิมนั้นมีลักษณะห้องที่เก่าและมีดีไซน์ที่ค่อนข้างจะเชย สถาปนิกได้เปลี่ยนใหม่ให้ดูเรียบหรูและน่าใช้งานยิ่งกว่าเดิม พร้อมทั้งติดตั้งกระจกแบ่งพื้นที่แห้งเปียกได้ด้วย

ห้องน้ำแขกก็ถูกเปลี่ยนให้สวยงามทันสมัยเช่นกัน

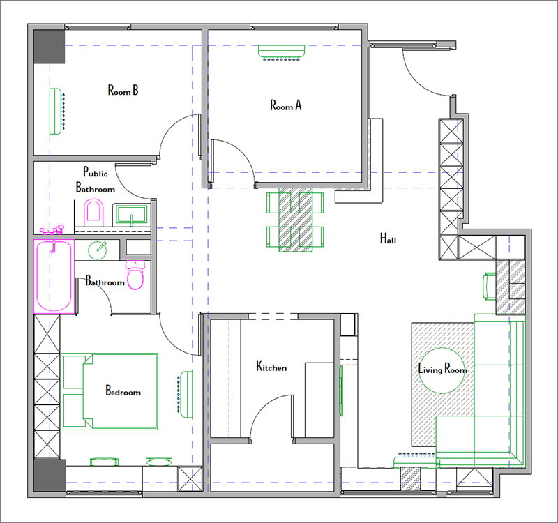
แปลนพื้นที่

ใครที่มีห้องเก่าและอยากรีโนเวท ลองนำเอาไอเดียนี้ไปประยุกต์ใช้สำหรับงานออกแบบของคุณกันดูนะครับ อาจจะเป็นอะไรที่คุณกำลังมองหาอยู่ก็ได้นะ ^_^
ที่มา : contemporist
ถ่ายภาพ : Brad Wu
ออกแบบ : 3Designs 三蒂空間設計|Hamza Ait Kaddour
.