กำลังอ่าน:

Lucia Smart Cabin เรือนกระจกริมน้ำ ที่พักตากอากาศสัมผัสกับธรรมชาติได้แบบ 360 องศา

Lucia Smart Cabin เรือนกระจกริมน้ำ ที่พักตากอากาศสัมผัสกับธรรมชาติได้แบบ 360 องศา

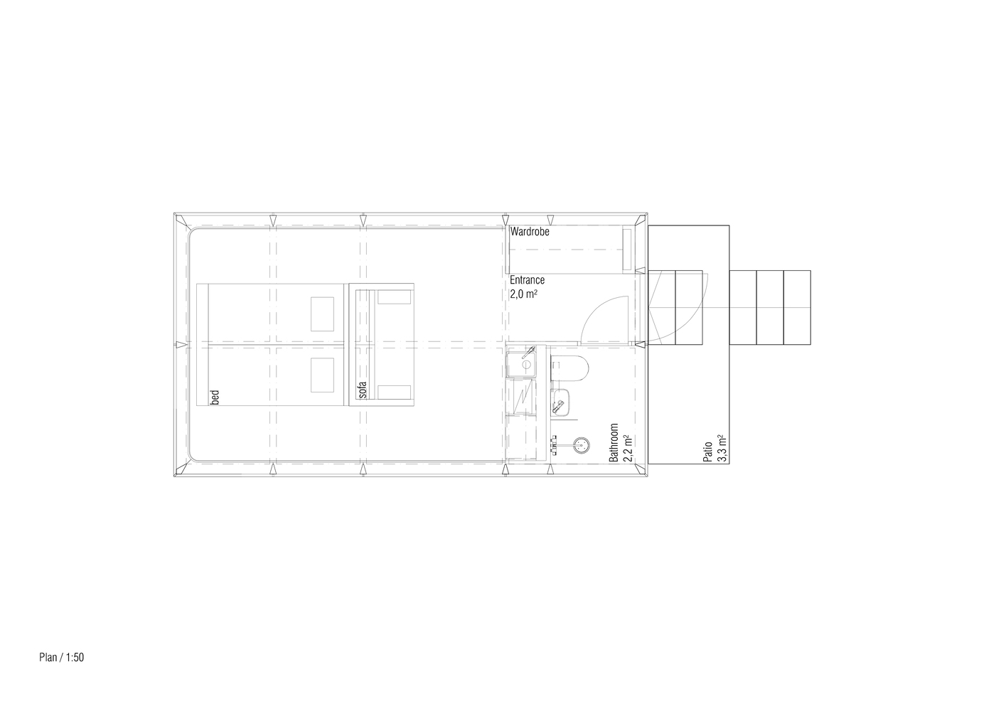
Lucia Smart Cabin เป็นผลงานการออกแบบโดย Pirinen Salo Oy อาคารเล็ก ๆ...

26 October 2021 6 Mins Read
853 Views

รู้จัก "ในบ้าน"

รวมไอเดียตกแต่งบ้าน รีวิวบ้าน คาเฟ่ ที่พัก ไปจนถึงทุกเรื่องของการใช้ชีวิต ขอบคุณทุกคนที่ติดตามกันมาตั้งแต่ปี 2012 

ติดต่อในบ้าน

ติดต่อคอนเทนต์:  Inbox NaiBann
ติดต่อโฆษณา: [email protected]

© 2023 All Rights Reserved.