บ้านสไตล์โมเดิร์น เป็นบ้านที่มีดีไซน์เข้ากับยุคสมัย เรียบง่ายแต่สวยงาม จึงทำให้บ้านแนวนี้ได้รับความนิยมสูง วันนี้ ในบ้าน จึงจะพาเพื่อนๆ ไปชมอีกหนึ่งไอเดียของ แบบบ้านสไตล์โมเดิร์น ซึ่งเป็นผลงานแบบบ้านสวยๆ จาก Thararat Khiawwan ไปชมกันเลยครับ
แบบบ้านหลังนี้เป็นแบบบ้านชั้นเดียว ฐานของบ้านถูกยกขึ้นต่ำเพื่อป้องกันความชื้น ตัวบ้านถูกออกแบบในรูปทรงแบบตัวแอล ด้านการตกแต่งนั้นบ้านหลังนี้ให้กลิ่นอายแบบลอฟท์ด้วยผนังภายนอกที่ตกแต่งด้วยปูนเปลือย พร้อมกับการเลือกใช้วัสดุภายนอกจากไม้ที่ให้บรรยากาศอบอุ่น

ตัวหลังคาเป็นทรงหน้าจั่วแบบไม่มีชายคา ซึ่งเป็นดีไซน์ที่กำลังได้รับความนิยม นอกจากนี้รอบตัวบ้านยังออกแบบให้มีหน้าต่างกระจกใสไว้โดยรอบ ทำให้บ้านโปร่งสบายได้ตลอดวัน

การออกแบบทางเข้าบ้านถูกออกแบบไว้สองทางแบบติดกันอยู่บริเวณส่วนที่เป็นมุม โดยทางหนึ่งนำเราไปสู่ห้องนั่งเล่นโดยตรง อีกแห่งนำเราไปสู่โถงหลักของบ้าน

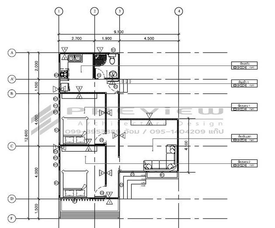
แบบแปลนภายใน

บ้านทรงโมเดิร์นกลิ่นอายลอฟท์หลังนี้ประกอบไปด้วย 2 ห้องนอน 1 ห้องน้ำ 1 ห้องรับแขก 1 ห้องครัว เพื่อนๆ สามารถขอรายละเอียดเพิ่มเติมได้จากช่องทางติดต่อด้านล่างนี้ได้เลยครับ
ที่มา : Thararat Khiawwan
เบอร์โทรศัพท์ : 0993953889
LINE ID : pp.kc

.

.

.