การมีที่ดินหน้าแคบอาจจะมีข้อจำกัดหากว่าเราต้องการบ้านที่มีลักษณะหน้ากว้าง แต่เราก็สามารถสร้างบ้านหน้าแคบที่ชดเชยด้วยความสูงได้ เช่น แบบบ้านสไตล์โมเดิร์น หลังนี้ที่ ในบ้าน กำลังจะพาเพื่อนๆ ไปชม เป็นผลงานการออกแบบโดย ช่างสถาพร ตามมาเก็บไอเดียกันเลยจ้า
สำหรับแบบบ้านหลังนี้เป็นแบบบ้านขนาดสองชั้น ลักษณะบ้านทรงโมเดิร์นหน้าแคบ เหมาะกับที่ดินที่มีหน้าแคบแต่ยาว โดยด้านดีไซน์นั้นเป็นดีไซน์แบบทรงกล่องที่เรียบง่าย ตกแต่งด้วยสีขาวยืนพื้น เพิ่มลูกเล่นให้บ้านด้วยผนังที่ออกแบบเป็นลายไม้สีน้ำตาล

นอกจากนี้การออกแบบที่โดดเด่นอีกอย่างหนึ่งของบ้านหลังนี้ คือ บริเวณชั้นสองจะมีผนังอีกชั้นหนึ่ง โดยเป็นผนังช่องลม ซึ่งจะช่วยลดแสงแดดที่สาดส่องในช่วงกลางวันได้เป็นอย่างดี

ผนังรอบตัวบ้านถูกติดตั้งด้วยหน้าต่างหลายบานไว้โดยรอบ นั่นจึงทำให้บ้านมีความโปร่งสบาย สามารถรับลม และอากาศจากภายนอกได้ดี

.

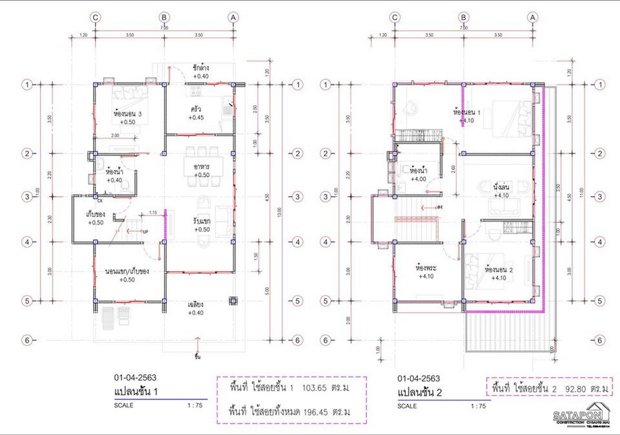
แบบแปลนภายในบ้าน

แบบบ้านสองชั้นทรงโมเดิร์นหลังนี้ประกอบไปด้วย 4 ห้องนอน 2 ห้องน้ำ 1 รับแขกกว้าง+โถง 1 ห้องนั่งเล่น 1 ห้องครัว 1 ห้องทานอาหาร 1 ห้องพระ พร้อมเฉลียงหน้าบ้านกว้างและเก็บของ พื้นที่ใช้สอย 187 ตารางเมตร งบก่อสร้าง 2.4 ล้านบาท
ปล. งบประมาณในการสร้างบ้านแต่ละหลังที่แตกต่างกันนั้น ขึ้นอยู่กับหลายปัจจัย ไม่ว่าจะเป็นพื้นที่ก่อสร้าง คุณภาพหรือเกรดของวัสดุ การว่าจ้างช่างฝีมือหรือผู้รับเหมา ฯลฯ ดังนั้น ข้อมูลของบ้านหลังนี้จึงมีไว้เพื่อเป็นตัวอย่างให้ศึกษาเท่านั้น ไม่สามารถนำไปเป็นมาตรฐานในการสร้างบ้านอื่นๆ ที่มีสภาพปัจจัยที่แตกต่างกันได้
ที่มา : ช่างสถาพร รับเหมาสร้างบ้าน รับเหมาก่อสร้างเชียงใหม่ รับปรับปรุงต่อเติมบ้าน
เบอร์โทรศัพท์ : 088-4163114
ID LINE : sataponcon .