สำหรับแบบบ้านในบทความนี้ เราขอพาเพื่อนๆ ชาวเว็บไปชม แบบบ้าน TR1-29 แบบบ้านโมเดิร์นทรงหน้ากว้าง ผลงานการออกแบบโดยทีมงาน Homeplan360 ครับ ตามมาชมกันเลยจ้า
ลักษณะตัวบ้านชั้นเดียว ดีไซน์บ้านเน้นความทันสมัยด้วยรูปทรงที่มีเอกลักษณ์ หลังคาทรงเพิงแหงน ผนังภายนอกตกแต่งด้วยโทนสีเทา เสริมด้วยผนังไม้ฝา ฝ้าไม้ และเชิงชายไม้ ให้บรรยากาศโดยรวมดูอบอุ่นนุ่มนวลขึ้น

รอบบ้านติดตั้งกระจกหน้าต่างไว้จำนวนมาก ช่วยให้พื้นที่ภายในได้รับแสงธรรมชาติได้อย่างเต็มที่

ส่วนหน้าและด้านข้างของอาคารมีเฉลียงไม้แนวยาว เป็นจุดที่ช่วยเพิ่มความสวยงามโดดเด่นให้กับตัวบ้านได้เป็นอย่างดี

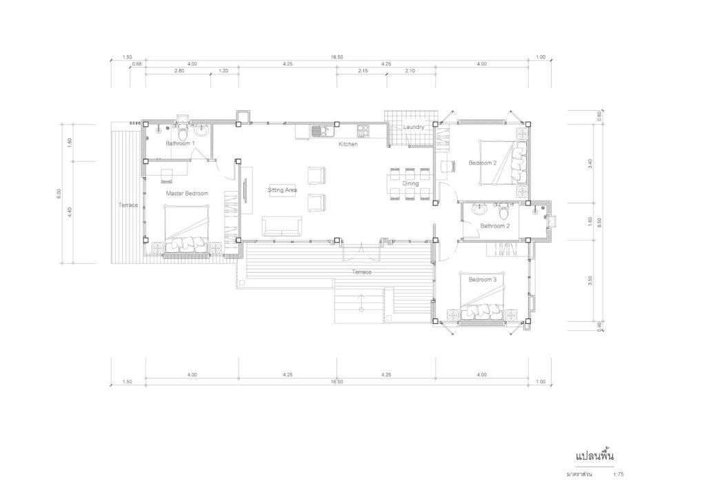
แปลนพื้นที่

แปลนหลังคา

แบบบ้านหลังนี้ประกอบไปด้วย 3 ห้องนอน 2 ห้องน้ำ พื้นที่ใช้สอยรวมทั้งหมด 139 ตารางเมตร แยกเป็น พื้นที่ภายใน 103 ตารางเมตร พื้นที่ซักล้าง และระเบียง 36 ตารางเมตร ขนาดตัวอาคารกว้าง 9.20 เมตร ลึก 19.20 เมตร งบก่อสร้างประมาณ 1.2-1.4 ล้านบาท
ปล. งบประมาณในการสร้างบ้านแต่ละหลังที่แตกต่างกันนั้น ขึ้นอยู่กับหลายปัจจัย ไม่ว่าจะเป็นพื้นที่ก่อสร้าง คุณภาพหรือเกรดของวัสดุ การว่าจ้างช่างฝีมือหรือผู้รับเหมา ฯลฯ ดังนั้น ข้อมูลของบ้านหลังนี้จึงมีไว้เพื่อเป็นตัวอย่างให้ศึกษาเท่านั้น ไม่สามารถนำไปเป็นมาตรฐานในการสร้างบ้านอื่นๆ ที่มีสภาพปัจจัยที่แตกต่างกันได้
ที่มา : Homeplan360
E-Mail : [email protected]
โทรศัพท์ : 0897298599
Line id : 0897298599 .