White Skube House ผลงานการออกแบบโดยทีมงานสถาปนิก Srijit Srinivas – ARCHITECTS บ้านสไตล์โมเดิร์นที่เน้นการออกแบบโปร่งสบาย สามารถรับความเย็นจากธรรมชาติได้อย่างสะดวก เป็นบ้านที่ก่อสร้างขึ้นในประเทศอินเดีย
แบบหลังนี้เป็นบ้านขนาดสองชั้น ตัวบ้านออกแบบด้วยดีไซน์แบบรูปทรงเรขาคณิตในลักษณะสี่เหลี่ยมทรงกล่อง โดยรายละเอียดการออกแบบ จะเห็นได้ว่าตับ้านมีผนังช่องลมขนาดใหญ่ โดยตัวผนังจะช่วยปกป้องบ้านจากแสงแดด ในขณะที่ช่องลมจะปล่อยผ่านลมเย็น ๆ เข้าสู่ภายในตัวบ้าน

เมื่อเข้ามาภายในบ้าน เราก็จะพบกับห้องโถงหลักของบ้านที่ถูกตกแต่งเป้นพื้นที่สำหรับการพักผ่อนและความบันเทิง ผนังภายในตกแต่งในแบบปูนเปลือยที่สวยดิบ ให้กลิ่นอายแบบบ้านลอฟท์

บริเวณนี้เป็นพื้นที่สำหรับรับประทานอาหาร โดยจะเน้นการออกแบบที่โปร่งโล่ง ด้านนอกมีสวนหย่อยเล็ก ๆ ที่ช่วยเพิ่มความสดชื่นใหกับบ้าน

ภายในห้องครัวเป้นห้องครัวแบบโมเดิร์น ภายในตติดตั้งด้วยเคาน์เตอร์ครัวแบบติดผนังรูปตัวยู พร้อมกับมีสิ่งอำนวยความสะดวกที่ครบทุกฟังก์ชัน

บันไดบริเวณนี้จะนำเราขึ้นมายังบริเวณชั้นสองของบ้าน โดยทั้งตัวบันไดและเพดาน ตกแต่งในลักษณะของปูนเปลือยแบบสวยดิบ ตัดด้วยต้นไม้สีเขียวที่ช่วยเพิ่มความชุ่มชื่น

ภายในห้องนอนถูกออกแบบและตกแต่งอย่างเรียบง่ายสุด ๆ จึงให้บรรยากาศในแบบมินิมอล ทำให้เหมาะกับการพักผ่อนเป็นอย่างดี

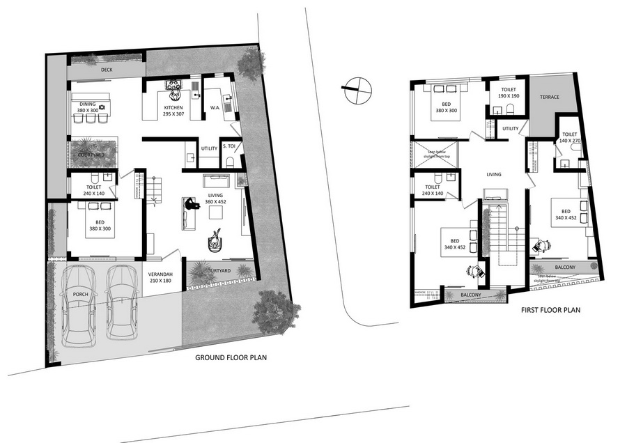
แบบแปลนภายในบ้าน
ที่มา : archdaily
ออกแบบ : Srijit Srinivas – ARCHITECTS
ถ่ายภาพ : Justin Sebastian Photography

.

.

.
.
