สวัสดีครับเพื่อน ๆ ชาวเว็บ ในบ้าน ทุกท่าน ถ้าหากเพื่อน ๆ กำลังมองหาไอเดียบ้านสวย ๆ เพื่อเป็นข้อมูลในการออกแบบสร้างบ้านของเพื่อน ๆ กันอยู่ล่ะก็ วันนี้เราก็มี แบบบ้านหน้ากว้างสไตล์โมเดิร์น ผลงานการออกแบบจาก เพาะปลูก ออกแบบก่อสร้างบ้านและตกแต่ง มาฝากเพื่อน ๆ ให้เก็บข้อมูลกันครับ
บ้านหลังนี้เป้นบ้านขนาดชั้นเดียว ตัวบ้านมีดีไซน์แบบทรงโมเดิร์นหน้ากว้าง จึงให้ดีไซน์ที่เรียบง่าย โดดเด่นด้วยหลังคาทรงเพิงหมาแหงนแบบเล่นระดับสวยงาม ผนังภายนอกตกแต่งในโทนสีน้ำตาลอบอุ่น ให้บรรยากาศที่น่าอยู่สุด ๆ เป็นบ้านที่เหมาะกับครอบครัวขนาดกลาโดยเฉพาะ

จากมุมหน้าบ้าน เราจะเห้นได้ว่าบ้านหลังนี้ออกแบบให้มีพื้นที่ใช้สอยนอกตัวบ้านที่ค่อนข้างมาก ทั้งบริเวณเฉลียงหน้าบ้าน ระเบียงทั้งสองแห่ง รวมไปถึงอาคารที่จอดรถอีกด้วย

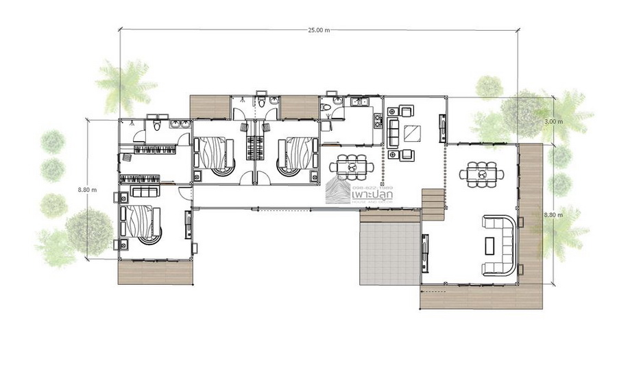
แบบแปลนพื้นที่

แบบบ้านหน้ากว้างสไตล์โมเดิร์นหลังนี้ประกอบไปด้วย 3 ห้องนอน 3 ห้องน้ำ 1 ห้องครัว+แพลนทรี 1 ห้องรับแขกใหญ่ 1 ห้องนั่งเล่น 1 ห้องทานอาหาร พร้อมพื้นที่จอดรถใต้อาคาร รวมที่จอดรถ 290 ตารางเมตร เพื่อน ๆ ที่สนใจรายละเอียดอื่น ๆ เพิ่มเติมสามารถติดต่อผ่านช่องทางด้านล่างนี้ได้เลยครับ
ที่มา : เพาะปลูก ออกแบบก่อสร้างบ้านและตกแต่ง

.

.