ด้วยไลฟ์สไตล์ของคนยุคใหม่ที่มีความเรียบง่าย ต้องการความรวดเร็วและสะดวกสบาย “บ้านสไตล์โมเดิร์น” ถือเป็นอีกหนึ่งทางเลือกที่น่าสนใจ เพราะนอกจากดีไซน์ภายนอกที่สวยงามทันสมัย ก่อสร้างได้ง่ายแล้ว ยังมีการลดทอนรายละเอียดที่เกินจำเป็นออกไป ทำให้มีพื้นที่ใช้สอยภายในยิ่งขึ้น
วันนี้ ในบ้าน จึงมาพาพร้อมกับแบบบ้านโมเดิร์นดีไซน์หน้ากว้าง TR1-48 ผลงานจาก Homeplan360 ที่มาพร้อมกับพื้นที่ใช้สอยกว้างขวาง รองรับการอยู่อาศัยของครอบครัวขนาดเล็ก รายละเอียดจะเป็นอย่างไรนั้น ไปติดตามกันเลยค่ะ

บ้านหลังนี้ออกแบบในรูปทรงเรขาคณิต หลังคาทรงปั้นหยามุงด้วยกระเบื้องสีเข้ม ตัดกับผนังบ้านสีขาวที่แทรกรายละเอียดด้วยไม้ ให้ภาพลักษณ์ที่ดูอบอุ่น สวยงาม บรรยากาศเหมาะสำหรับการพักผ่อน
โครงสร้างบ้านยกพื้นต่ำ ทำให้ระบบหมุนเวียนอากาศภายในบ้านทำงานได้อย่างมีประสิทธิภาพบริเวณด้านหน้าบ้านมีระเบียงสองด้าน สามารถนั่งเล่น รับลม ชมวิวธรรมชาติภายนอกบ้านได้อย่างเต็มที่

ผนังดานหนึ่งของบ้าน เป็นกระจกใส เปิดรับแสงธรรมชาติภายนอก ให้ความปลอดโปร่งโล่งสบาย เชื่อมต่อพื้นที่ภายในและภายนอกให้เสมือนเป็นพื้นที่เดียวกัน

บริเวณรอบบ้านมีสนามหญ้ากว้าง สำหรับการเดินเล่น ออกกำลังกาย หรือทำกิจกรรมเอาท์ดอร์ร่วมกับสมาชิกในรอบครัว

.

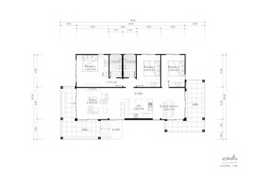
โดยรวมแล้วบ้านหลังนี้มีขนาด 3 ห้องนอน 2 ห้องน้ำ พื้นที่ใช้สอยรวมทั้งหมด 158.00 ตารางเมตร งบประมาณในการก่อสร้างเริ่มต้น 1.5-1.7 ล้านบาท หากเพื่อนๆ คนไหนสนใจ สามารถสอบถามรายละเอียดเพิ่มเติมได้ตามช่องทางด้านล่างเลยค่ะ
ปล. งบประมาณในการสร้างบ้านแต่ละหลังที่แตกต่างกันนั้น ขึ้นอยู่กับหลายปัจจัย ไม่ว่าจะเป็นพื้นที่ก่อสร้าง คุณภาพหรือเกรดของวัสดุ การว่าจ้างช่างฝีมือหรือผู้รับเหมา ฯลฯ ดังนั้น ข้อมูลของบ้านหลังนี้จึงมีไว้เพื่อเป็นตัวอย่างให้ศึกษาเท่านั้น ไม่สามารถนำไปเป็นมาตรฐานในการสร้างบ้านอื่นๆ ที่มีสภาพปัจจัยที่แตกต่างกันได้
ที่มา : homeplan360
แบบแปลนบ้าน

แบบแปลนหลังคา

.
.