แบบบ้านสองชั้นทรงตัวไอ ผลงานการออกแบบจาก โมเดิร์น โฮม รูปทรงบ้านเรียบง่าย ทันสมัย มีเอกลักษณ์ ออกแบบพื้นที่ใช้สอยในแนวลึกได้อย่างลงตัวและครบครันสำหรับที่ดินหน้าแคบ ตามมาชมรายละเอียดกันเลยครับ
ลักษณะตัวบ้านสองชั้น รูปทรงตัวไอ หน้ากว้างหลังลึก องศาหลังคาลาดเอียงสวยงาม ภายนอกตกแต่งด้วยโทนสีขาวและเทา เพิ่มสีสันด้วยระแนงเหล็กสีส้มและผนังไม้สีครีมบริเวณฟาซาด มาพร้อมกับโรงจอดรถหน้าบ้านรองรับรถยนต์ได้ 1 คัน

หน้าต่างและประตูเลือกใช้กระจกโปร่งแสงแบบเลื่อนได้ขนาดใหญ่ นอกจากจะเป็นเอกลักษณ์ของบ้านสไตล์โมเดิร์นแล้ว ยังช่วยให้พื้นที่ในบ้านได้รับแสงธรรมชาติจากภายนอกอีกด้วย

บ้านหลังนี้ออกแบบระเบียงชั้นบนไว้ทั้งด้านหน้าและด้านหลัง เป็นฟังก์ชันที่เพิ่มความหลากหลายในการพักผ่อน

.

.

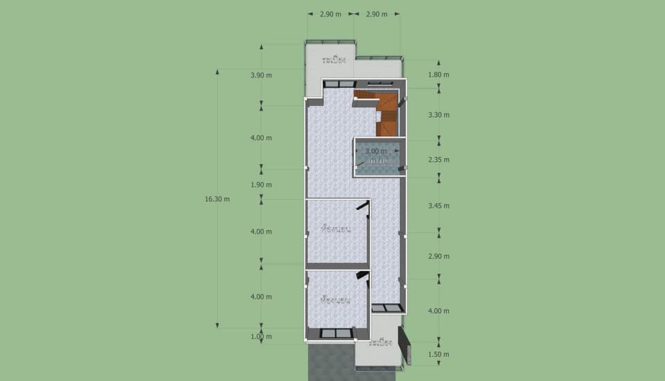
แปลนพื้นที่ชั้น 1

แปลนพื้นที่ชั้น 2

แบบบ้านหลังนี้ประกอบไปด้วย 2 ห้องนอน 2 ห้องน้ำ 1 ห้องรับแขก 1 ห้องกระจก 1 ห้องครัว พร้อมระเบียงชั้นสองทั้งหน้าและหลังบ้าน พื้นที่ใช้สอยรวมประมาณ 190 ตารางเมตร
ปล. งบประมาณในการสร้างบ้านแต่ละหลังที่แตกต่างกันนั้น ขึ้นอยู่กับหลายปัจจัย ไม่ว่าจะเป็นพื้นที่ก่อสร้าง คุณภาพหรือเกรดของวัสดุ การว่าจ้างช่างฝีมือหรือผู้รับเหมา ฯลฯ ดังนั้น ข้อมูลของบ้านหลังนี้จึงมีไว้เพื่อเป็นตัวอย่างให้ศึกษาเท่านั้น ไม่สามารถนำไปเป็นมาตรฐานในการสร้างบ้านอื่นๆ ที่มีสภาพปัจจัยที่แตกต่างกันได้
ที่มา : โมเดิร์น โฮม
Facebook ID : โมเดิร์น โฮม
โทรศัพท์ : 0857572403 .