แบบบ้านปั้นหยาชั้นเดียวทรงตัวแอล (L-Shaped House) ผลงานการออกแบบโดยทีมงาน Sam House Plan ดีไซน์โดดเด่น ทันสมัย มีเอกลักษณ์ พร้อมด้วยฟังก์ชันลงตัวครบครัน พิถีพิถันทุกรายละเอียดการออกแบบ ตามมาชมรายละเอียดกันเลยครับ
ลักษณะตัวบ้านชั้นเดียว หลังคาทรงปั้นหยา มุงด้วยกระเบื้องโทนสีเทา ผนังภายนอกตกแต่งด้วยโทนสีขาว เสริมด้วยผนังไม้โทนสีเทา รูปทรงบ้านตัวแอลที่มีการออกแบบสระน้ำและเฉลียงไว้บริเวณตรงกลาง นอกจากนี้ ทางเข้าบ้านยังมีโรงจอดรถใต้ชายคาอยู่ด้วย

ผู้ออกแบบได้จัดวางบริบทรอบ ๆ ให้เป็นสนามหญ้าพร้อมทางเดินที่ปูแผ่นคอนกรีตบริเวณถนนด้านหน้า

บ้านหลังนี้เลือกใช้ประตูและหน้าต่างแบบกระจกโปร่งแสง จึงทำให้แสงธรรมชาติสามารถส่องเข้าภายในบ้านอย่างทั่วถึง และยังทำให้พื้นที่ภายนอกและภายในเชื่อมโยงกันอย่างลงตัวอีกด้วย

เฉลียงทางเข้าและสระน้ำหน้าบ้าน

.

การตกแต่งฝ้าและเพดานเลือกใช้โทนสีขาว พื้นเลือกใช้ไม้ เฟอร์นิเจอร์เลือกใช้โทนสีเรียบง่าย เน้นโทนสีดำ และน้ำตาล ให้บรรยากาศที่อบอุ่น เรียบง่าย และความโปร่งสว่าง

.

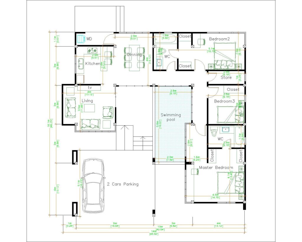
แปลนพื้นที่

รูปด้าน

.

.

.

.

แบบบ้านหลังนี้ประกอบไปด้วย 3 ห้องนอน 2 ห้องน้ำ 1 ห้องนั่งเล่น 1 ห้องครัว/รับประทานอาหาร 1 ห้องซักล้าง บนพื้นที่ใช้สอยทั้งหมด 196 ตารางเมตร
ปล. งบประมาณในการสร้างบ้านแต่ละหลังที่แตกต่างกันนั้น ขึ้นอยู่กับหลายปัจจัย ไม่ว่าจะเป็นพื้นที่ก่อสร้าง คุณภาพหรือเกรดของวัสดุ การว่าจ้างช่างฝีมือหรือผู้รับเหมา ฯลฯ ดังนั้น ข้อมูลของบ้านหลังนี้จึงมีไว้เพื่อเป็นตัวอย่างให้ศึกษาเท่านั้น ไม่สามารถนำไปเป็นมาตรฐานในการสร้างบ้านอื่นๆ ที่มีสภาพปัจจัยที่แตกต่างกันได้
ที่มา : samhouseplans
Facebook Page: Sam Architect

.

.

.

.

.

.

.

.

.

.
.