บ้านสองชั้นสไตล์โมเดิร์นโทนสีส้มเทา บ้านสวนบรรยากาศดีของคุณ Naleenat Meesook เป็นบ้านที่มีดีไซน์ทันสมัย สวยงาม มีเอกลักษณ์ของเส้นสายเรขาคณิตอย่างชัดเจน รายล้อมไปด้วยบรรยากาศของท้องฟ้าสีสดใสและใบหญ้าสีเขียว
คุณ Naleenat ได้เล่าให้ฟังว่า บ้านหลังนี้สร้างขึ้นที่จังหวัดราชบุรี เริ่มสร้างเมื่อเดือนพฤศจิกายน 2562 แล้วเสร็จเมื่อพฤษภาคม 2563 ก่อสร้างโดยผู้รับเหมาเจ้าหนึ่งจากชลบุรี (ผู้ออกแบบบ้านหลังนี้ไม่ได้เป็นคนสร้าง)
ซึ่งเมื่อสร้างบ้านเสร็จแล้ว ก็ได้พบกับปัญหาน้ำรั่วซึมจากระเบียงด้านบน รวมไปถึงพื้นระเบียงลอก เนื่องจากสร้างบ้านเสร็จหน้าฝนพอดี โดยผู้รับเหมาก็ได้ส่งทีมงานทำการแก้ไขให้จนเรียบร้อยดีทุกอย่าง
ช่วงกำลังก่อสร้าง

.

บ้านเสร็จแล้ว แต่มีปัญหาระเบียงร่อน น้ำรั่วซึม ช่างมาแก้งาน

.

แก้งานสีร่อนที่ระเบียงชั้นล่าง ลอกสีออก แล้วทาใหม่

.

.

แก้งานน้ำรั่วซึมที่ระเบียงบนลงด้านล่าง

น้ำรั่วซึมจากด้านบน

.

เทสระบบไฟ ก่อนส่งมอบ

เสร็จเรียบร้อย พร้อมอยู่อาศัย
มาชมความสวยงามของตัวบ้านหลังนี้กันเลยครับ ลักษณะบ้านสองชั้น หลังคาทรงเพิงหมาแหงน ผนังภายนอกตกแต่งด้วยโทนสีเทาของปูนเปลือย ตัดกับเส้นสายสีส้มอย่างมีเอกลักษณ์ ประตุและหน้าต่างเลือกใช้กระจกโปร่งแสงทำให้ภาพลักษณ์บ้านดูทันสมัย เพิ่มรายละเอียดของงานไม้บริเวณผนังใต้ฝ้าเพดาน

บรรยากาศรอบ ๆ บ้าน รายล้อมไปด้วยธรรมชาติ มีทั้งสนามหญ้ากว้างขวาง ต้นไม้น้อยใหญ่ วิวภูเขา ท้องฟ้า และมีแม่น้ำพร้อมสะพานข้ามฝั่งด้วย

.

.

.

.

เข้ามาชมบรรยากาศในบ้านกันบ้างครับ
ในส่วนของการตกแต่งภายใน จะเห็นได้ว่ามีการออกแบบที่หลากหลายไม่ตายตัว มีเอกลักษณ์เฉพาะตัวทุกห้อง โดยจะเน้นไปในสไตล์อินดัสเทรียลลอฟท์ที่มีสีสันหลากหลายผสมผสานกันอยู่

ห้องโถง ผนังลอฟท์สีแดง ด้านในเป็นห้องนอน ผนังลอฟท์สีส้ม

ห้องครัว ผนังลอฟท์สีเทาเข้ม

ห้องนอนบน ผนังลอฟท์สีเหลือง

.

ห้องน้ำบน

ห้องนอนล่าง ผนังลอฟท์สีเขียว

.

ห้องน้ำล่าง

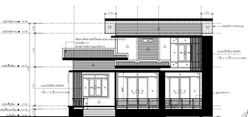
รูปด้าน

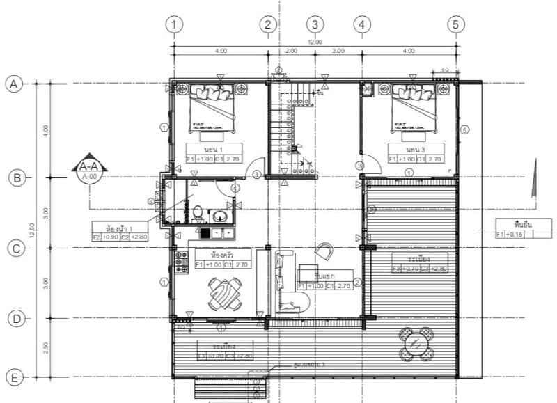
แปลนพื้นที่ชั้นล่าง
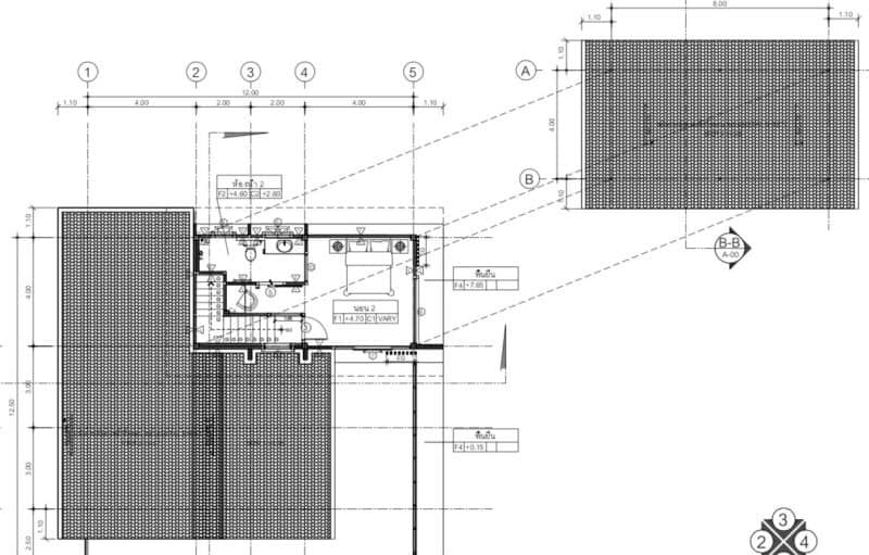
แปลนพื้นที่ชั้นบน

บ้านสไตล์โมเดิร์นหลังนี้ประกอบไปด้วย 3 ห้องนอน 2 ห้องน้ำ 1 ห้องครัว 2 ระเบียง บนพื้นที่ใช้สอย 200 ตร.ม. งบประมาณก่อสร้าง 2.2 ล้านบาทครับ
ปล. งบประมาณในการสร้างบ้านแต่ละหลังที่แตกต่างกันนั้น ขึ้นอยู่กับหลายปัจจัย ไม่ว่าจะเป็นพื้นที่ก่อสร้าง คุณภาพหรือเกรดของวัสดุ การว่าจ้างช่างฝีมือหรือผู้รับเหมา ฯลฯ ดังนั้น ข้อมูลของบ้านหลังนี้จึงมีไว้เพื่อเป็นตัวอย่างให้ศึกษาเท่านั้น ไม่สามารถนำไปเป็นมาตรฐานในการสร้างบ้านอื่นๆ ที่มีสภาพปัจจัยที่แตกต่างกันได้
ปล. สำหรับบ้านหลังนี้ คุณ Naleerat มีความประสงค์ที่ไม่ต้องการเปิดเผยผู้ออกแบบและทีมงานรับเหมาครับ ต้องขออภัยมา ณ ที่นี้ด้วย
ที่มา : แบบบ้านสไตล์โมเดิร์น ราคาถูก
เจ้าของบ้าน : Naleenat Meesook .
