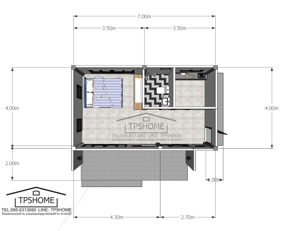
สำหรับใครที่กำลังมองหาบ้านราคาประหยัด และพื้นที่ใช้สอยไม่ใหญ่เกินไป วันนี้ ในบ้าน มีบ้านสุดกะทัดรัดจาก TP5HOME มาให้ชมค่ะ โดยบ้านหลังนี้มีพื้นที่ใช้สอยเพียง 28 ตร.ม.เท่านั้น เรียกว่าตอบโจทย์คนโสด ไปจนถึงคนที่กำลังเริ่มสร้างครอบครัวอีกด้วย
ในส่วนของการดีไซน์ภายนอกจะเป็น สไตล์โมเดิร์นลอฟท์ อันยอดนิยม นอกจากนั้นแล้วยังมีหลังคาเพิงหมาแหงนที่เข้ากับรูปทรงบ้านที่มีลักษณะคล้ายกล่องเป็นอย่างดี จึงทำให้ตัวบ้านมีความทันสมัยมากขึ้น

บริเวณด้านหน้ามีการเพิ่มผนังปูนเปลือยเข้าไป ทำให้มีความดิบเท่ ตัดกับบานกรอบหน้าต่าง และประตูสีดำอีกที ส่วนฐานบ้านมีการยกสูงขึ้น เพื่อให้พื้นภายในบ้านไม่สะสมความร้อนมากจนเกินไป

ด้านข้างบ้านมีประตูทางเข้าอีกทาง ซึ่งตรงนี้จะเชื่อมกับพื้นที่โล่งติดครัว ทำให้สะดวกสบายในการเข้าออก หรือจะไว้ทำเป็นลานซักล้างก็ยังได้ค่ะ เห็นได้เลยว่าบ้านหลังนี้มีฟังก์ชันที่ครบครัน แม้ว่าจะมีขนาดค่อนข้างกะทัดรัดนั่นเอง

บ้านหลังนี้ประกอบด้วย 1 ห้องนอน 1 ห้องน้ำ และห้องครัว รวมพื้นที่ใช้สอยทั้งหมด 28 ตร.ม. งบประมาณในการก่อสร้างอยู่ที่ 280,000 บาท หากใครสนใจสามารถสอบถามข้อมูลเพิ่มเติมได้ตามที่มาด้านล่างเลยค่ะ
ปล. งบประมาณในการสร้างบ้านแต่ละหลังที่แตกต่างกันนั้น ขึ้นอยู่กับหลายปัจจัย ไม่ว่าจะเป็นพื้นที่ก่อสร้าง คุณภาพหรือเกรดของวัสดุ การว่าจ้างช่างฝีมือหรือผู้รับเหมา ฯลฯ ดังนั้น ข้อมูลของบ้านหลังนี้จึงมีไว้เพื่อเป็นตัวอย่างให้ศึกษาเท่านั้น ไม่สามารถนำไปเป็นมาตรฐานในการสร้างบ้านอื่นๆ ที่มีสภาพปัจจัยที่แตกต่างกันได้
ที่มา : TP5HOME
โทรศัพท์ : 095-631-3090
Line id : TP5HOME
Youtube Channel : TP5HOME HousePlan

.

.

.
.