กลับมาพบกันอีกครั้งสำหรับไอเดียใหม่ๆ ในการสร้างบ้านในฝัน วันนี้ ในบ้าน จะพาชม แบบบ้านโมเดิร์นชั้นเดียว ผลงานจาก homeplan360 ดีไซน์เรียบง่าย ทันสมัย พร้อมพื้นที่ใช้สอยครบครัน รายละเอียดจะเป็นอย่างไรนั้น ไปติดตามกันเลยค่ะ
บ้านหลังนี้ถูกดีไซน์ในรูปทรงเรขาคณิต หลังคาทรงหมาแหงนซ้อนกันสองชั้น มีเสาเหล็กรองรับน้ำหนักใต้ชายคา ฝ้าใต้หลังคาทำจากไม้ ผนังภายนอกทาด้วยสีขาว แทรกรายละเอียดด้วยไม้ระแนง เป็นเส้นสายดึงดูดสายตา ทำให้บ้านหลังนี้สวยงาม โดดเด่นยิ่งขึ้น

บริเวณหน้าบ้านมีสนามหญ้ากว้าง เพิ่มความร่มรื่นสวยงาม ตัวบ้านออกแบบให้ยกพื้นต่ำ มีบันไดเล็กๆ นำสู่ระเบียงหน้าบ้าน ให้นั่งเล่น สูดอากาศ หรือชมวิวธรรมชาติในตอนเช้า

บ้านโมเดิร์นหลังนี้เน้นดีไซน์ที่โปร่งโล่งอยู่สบาย ผนังด้านหน้าเป็นกระจกใส เปิดรับแสงธรรมชาติจากภายนอกเข้าสู่ภายในอย่างเต็มที่ รอบบ้านมีหน้าต่างเล็กๆ ทำหน้าที่เป็นช่องลม ทำให้ระบบหมุนเวียนอากาศภายในบ้าน ทำงานได้อย่างมีประสิทธิภาพ

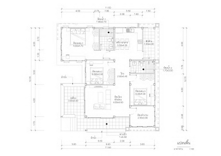
แบบแปลนด้านใน

แบบแปลนหลังคา

โดยรวมแล้วบ้านหลังนี้มีขนาด 3 ห้องนอน 2 ห้องน้ำ พร้อมห้องรับแขก ห้องครัว ส่วนรับประทานอาหารและระเบียงด้านหน้าสำหรับทำกิจกรรมอเนกประสงค์ พื้นที่ภายใน 110 ตารางเมตร งบก่อสร้างประมาณ 1.4-1.6 ล้านบาท หากเพื่อนๆ คนไหนสนใจ สามารถสอบถามรายละเอียดได้ตามช่องทางด้านล่างเลยค่ะ
ปล. งบประมาณในการสร้างบ้านแต่ละหลังที่แตกต่างกันนั้น ขึ้นอยู่กับหลายปัจจัย ไม่ว่าจะเป็นพื้นที่ก่อสร้าง คุณภาพหรือเกรดของวัสดุ การว่าจ้างช่างฝีมือหรือผู้รับเหมา ฯลฯ ดังนั้น ข้อมูลของบ้านหลังนี้จึงมีไว้เพื่อเป็นตัวอย่างให้ศึกษาเท่านั้น ไม่สามารถนำไปเป็นมาตรฐานในการสร้างบ้านอื่นๆ ที่มีสภาพปัจจัยที่แตกต่างกันได้
ที่มา : homeplan360Facebook : HOME PLAN 360 free house plan
เบอร์โทรศัพท์ : 089-7298599
Line ID : 089-7298599
Email : [email protected]

.

.
