บ้านสไตล์โมเดิร์นลอฟท์ หรืออินดัสเทรียลลอฟท์ เป็นบ้านที่มีความโดดเด่นด้านการตกแต่งที่จะเน้นความสวยดิบของเนื้อวัสดุอย่างปูนเปลือย เหล็กและไม้เป็นต้น วันนี้ ในบ้าน จึงจะพาเพื่อน ๆ ไปชมอีกหนึ่งผลงานของ แบบบ้านสไตล์โมเดิร์นลอฟท์ ผลงานจาก TP 5 Home ไปชมกันเลยครับ
แบบบ้านหลังนี้เป็นบ้านขนาดเล็ก สำหรับการพักอาศัย 1-2 คน โดยตัวบ้านมีพื้นฐานการออกแบบในลักษณะแบบโมเดิร์น มีหลังคาทรงเพิงหมาแหงนพร้อมหลังคากันสาด ผนังภายนอกเลือกใช้การตกแต่งจากปูนเปลือยแบบสวยดิบ พร้อมโครงเหล็กที่เข้ากัน

อีกความโดดเด่นของบ้านหลังนี้ คือ การออกแบบบริเวณพื้นที่ด้านข้างที่เป็นเฉลียงกว้างเปิดโล่ง จึงสามารถใช้ทำกิจกรรมได้อย่างหลากหลายตามความต้องการ

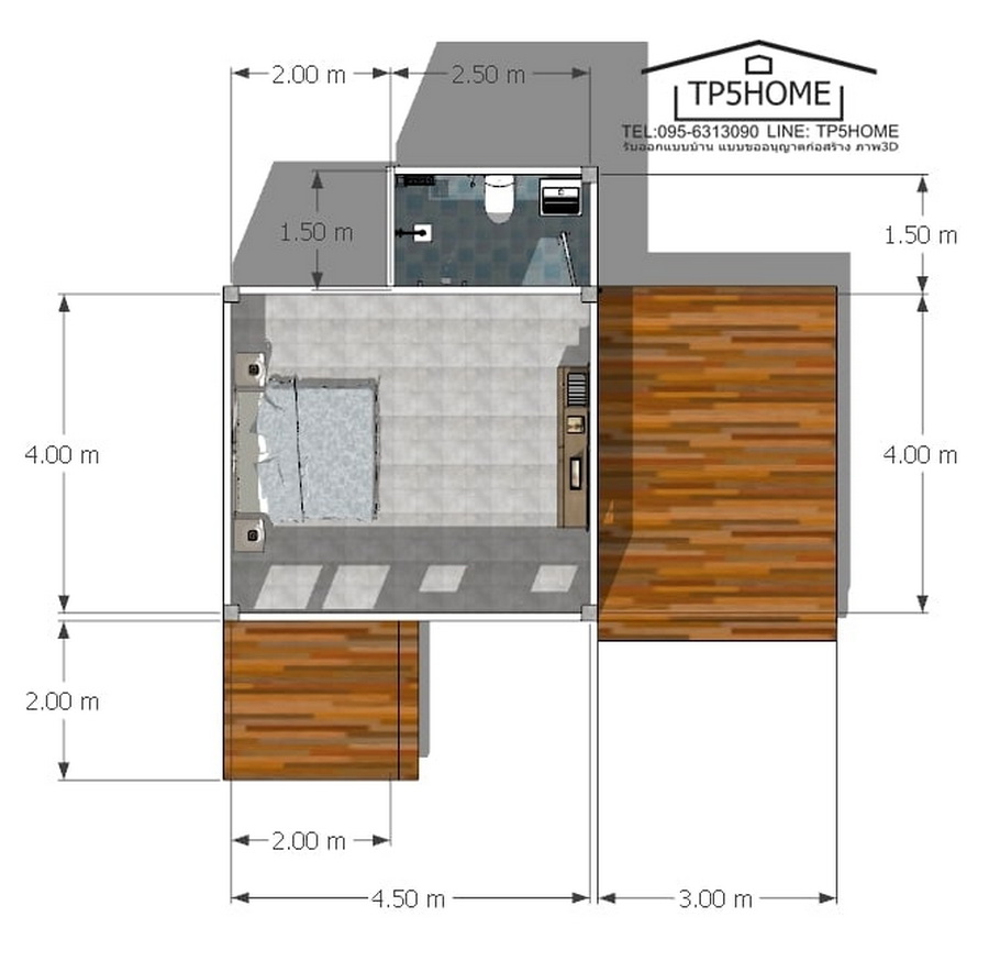
แบบแปลนภายในบ้าน

แบบบ้านสไตล์โมเดิร์นลอฟท์หลังนี้ประกอบไปด้วย 1 ห้องนอน 1 ห้องน้ำ ระเบียงหน้าบ้านและหลังบ้าน พื้นที่ใช้สอยตัวบ้านรวม 38 ตารางเมตร งบก่อสร้างคร่าว ๆ 2.2-2.6 แสนบาท
ที่มา : TP5Home รับออกแบบบ้าน แบบขออนุญาตก่อสร้าง ภาพ3D
.

