กำลังอ่าน:

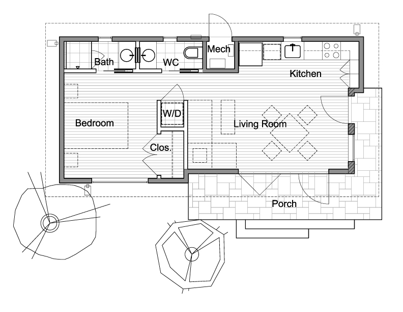
แบบบ้านโมเดิร์นท้ายสวน ดีไซน์กะทัดรัด ฟังก์ชันเอนกประสงค์ 1 ห้องนอน 1 ห้องน้ำ พื้นที่ 46 ตร.ม.

แบบบ้านโมเดิร์นท้ายสวน ดีไซน์กะทัดรัด ฟังก์ชันเอนกประสงค์ 1 ห้องนอน 1 ห้องน้ำ พื้นที่ 46 ตร.ม.

แบบบ้านโมเดิร์นท้ายสวน ผลงานการออกแบบโดย Studio Robbins Cortina...

17 December 2020 3 Mins Read
2K Views

รู้จัก "ในบ้าน"

รวมไอเดียตกแต่งบ้าน รีวิวบ้าน คาเฟ่ ที่พัก ไปจนถึงทุกเรื่องของการใช้ชีวิต ขอบคุณทุกคนที่ติดตามกันมาตั้งแต่ปี 2012 

ติดต่อในบ้าน

ติดต่อคอนเทนต์:  Inbox NaiBann
ติดต่อโฆษณา: [email protected]

© 2023 All Rights Reserved.