แบบบ้านโมเดิร์นทรงตัวแอล ผลงานการออกแบบโดยทีมงาน Is More ArchitecturalDsign แบบบ้านขนาดกะทัดรัด จัดสรรพื้นที่อย่างเป็นสัดส่วน ตกแต่งอย่างเรียบง่ายแต่สวยเท่และมีเอกลักษณ์ เหมาะสำหรับเป็นรีสอร์ตหรือบ้านสวนครับ

ลักษณะตัวบ้านชั้นเดียว รูปทรงอาคารตัวแอล หลังคาทรงเพิงหมาแหงน ผนังบริเวณใต้ฝ้าและเชิงชายหลังคาตกแต่งด้วยไม้ พื้นผิวภายนอกเลือกใช้โทนสีขาวและสีเทาที่ให้ความรู้สึกเรียบง่ายแต่ทันสมัย

โดยผนังบริเวณโทนสีเทานั้นมีเส้นสีขาวเป็นลวดลายกราฟิกเรขาคณิต สร้างเอกลักษณ์ให้บ้านหลังนี้ดูเท่และแตกต่างกว่าแบบบ้านอื่น ๆ

ส่วนหน้าอาคารตรงกลางมีระเบียงไม้สำหรับใช้งานเอนกประสงค์ ไม่ว่าจะเป็นนั่งเล่น รับแขก รับประทานอาหารภายนอก ฯลฯ ขึ้นอยู่กับความต้องการของเจ้าของบ้านเลยครับ

ประตูและหน้าต่างเลือกใช้กระจกรูปทรงสี่เหลี่ยมขนาดใหญ่ ทำให้พื้นที่ภายในได้รับแสงธรรมชาติอย่างทั่วถึง เป็นรูปแบบช่องรับแสงที่นิยมกันโดยทั่วไปสำหรับบ้านสไตล์โมเดิร์น

ผู้ออกแบบได้จัดวางบริบทรอบอาคารให้เป็นสนามหญ้า ช่วยเพิ่มความสดชื่นและความเป็นธรรมชาติให้กับบ้านโมเดิร์นหลังนี้ได้เป็นอย่างดี

.

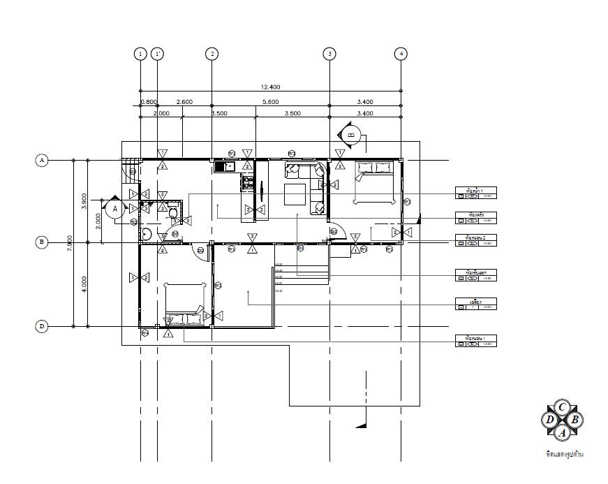
แปลนพื้นที่

แบบบ้านสไตล์โมเดิร์นฉบับนี้ประกอบไปด้วย 2 ห้องนอน 1 ห้องน้ำ 1 ห้องครัว 1 ห้องรับแขก 1 ระเบียง พื้นที่ใช้สอยรวม 85 ตารางเมตร หากเพื่อน ๆ ชาวเว็บต้องการข้อมูลเพิ่มเติมเกี่ยวกับแบบแปลนนี้ สามารถสอบถามผู้ออกแบบผ่านช่องทางติดต่อท้ายบทความได้เลยนะครับ
ปล. งบประมาณในการสร้างบ้านแต่ละหลังที่แตกต่างกันนั้น ขึ้นอยู่กับหลายปัจจัย ไม่ว่าจะเป็นพื้นที่ก่อสร้าง คุณภาพหรือเกรดของวัสดุ การว่าจ้างช่างฝีมือหรือผู้รับเหมา ฯลฯ ดังนั้น ข้อมูลของบ้านหลังนี้จึงมีไว้เพื่อเป็นตัวอย่างให้ศึกษาเท่านั้น ไม่สามารถนำไปเป็นมาตรฐานในการสร้างบ้านอื่นๆ ที่มีสภาพปัจจัยที่แตกต่างกันได้
ที่มา : Is More ArchitecturalDsign
Is More ArchitecturalDsign
ออกแบบ ก่อสร้าง สร้างอาคารทุกชนิด
Facebook : Is More ArchitecturalDsign
Tel : 099-3953889, 095-1404209
Line ID : PP.KC .