บ้านทาวน์เฮ้าส์ เป็นอีกหนึ่งตัวเลือกในการออกแบบสร้างบ้านของคนยุคนี้ เพราะจะใช้ขนาดที่ดินที่ไม่กว้างมากนัก อาศัยการสร้างในลักษณะตึกตั้งแต่สองชั้น เพื่อให้มีพื้นที่ใช้งานมากขึ้น วันนี้ ในบ้าน ก็มีไอเดียทาวน์เฮ้าส์สไตล์โมเดิร์นลอฟท์ผลงานการออกแบบจากทีมสถาปนิก H.a มาฝากเพื่อน ๆ ครับ
Bin & Bon House เป็นทาวน์เฮ้าส์ขนาดสามชั้น ตัวบ้านมีลักษณะหน้าแคบ ภายนอกตกแต่งด้วยปูนเปลือยอย่างเด่นชัด ทำให้บ้านหลังนี้มีดีไซน์ที่ทันสมัย เหมาะกับไลฟ์สไตล์ของคนเมืองยุคใหม่โดยเฉพาะ ซึ่งนอกจากตัวอาคารแล้ว พื้นที่ส่วนต่าง ๆ ของบ้านยังออกแบบให้ใช้งานได้อย่างคุ้มค่าอีกด้วย

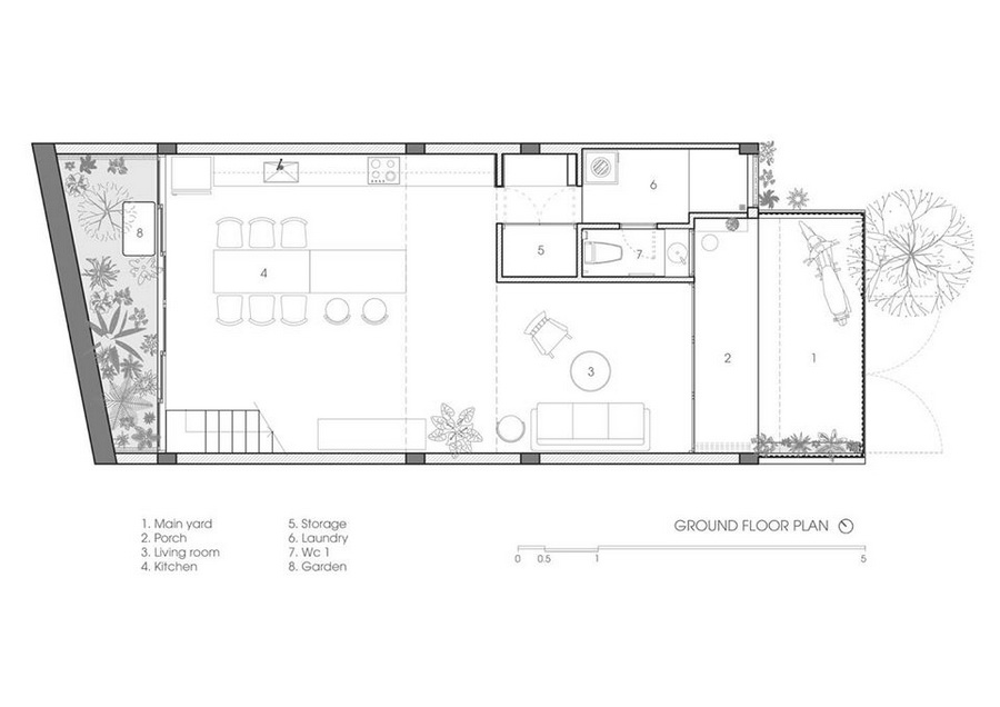
พื้นที่บริเวณหน้าบ้านมีลานโล่งขนาดเล็ก ที่สามารถใช้เป้นมุมพักผ่อนได้ ทั้งยังสามารถใช้จอดมอเตอร์ไซค์หรือจักรยานก็ได้ ส่วนที่ติดกับบ้านยังออกแบบให้มีตู้เก็บรองเท้า เพื่อให้สะดวกและง่ายต่อการเก็บและใช้งานอีกด้วย

เมื่อเข้ามาภายในบ้าน เราก็จะพบกับห้องโถงนั่งเล่นของบ้านที่ถูกตกแต่งในสไตล์โมเดิร์นผสานความมินิมอล ผนังด้านหลังถูกทาด้วยสีขาว ให้ขณะที่ผนังอีกด้านถูกติดด้วยกระเบื้องลายหินอ่อน เพดานเป็นแบบอินดัสทรีแบบสวยดิบ

ขยับมาอีกนิดจะเป็นโถงหลังบ้านที่เป็นห้องครัวและพื้นที่รับประทานอาหาร ด้านหลังสุดจะเป็นสวนหย่อมขนาดเล็ก โดยพื้นที่รับประทานอาหารจะใช้เป็นเคาน์เตอร์ครัวแบบเกาะกลางต่อกับชุดโต๊ะไม้รับประทานอาหาร

ทางด้านส่วนครัวจะเป็นครวแบบโมเดิร์นที่ติดตั้งด้วยเคาน์เตอร์ครัวแบบติดผนังขนาดยาวพร้อมกับตู้ชั้นเก็บของแบบไม้ดีไซน์สวยงาม

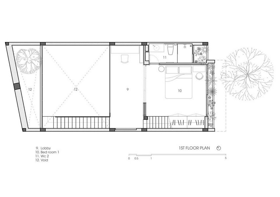
จากมุมนี้เราจะมองเห็นชั้นสองและชั้นสามของบ้าน ซึ่งเป็นพื้นที่สำหรับห้องนอน ซึ่งมีโครงสร้างเป้นงานไม้สีอ่อน ให้บรรยากาศที่ผ่อนคลาย ทั้งยังให้พื้นที่ระเบียงแต่ละชั้นได้อย่างคุ้มค่า

ภายในห้องนอนออกแบบผนังด้วยงานไม้ จึงให้บรรยากาศที่เป้นธรรมชาติ พร้อมกับการเลือกใช้เฟอร์นิเจอร์แบบน้อยชิ้นเพื่อให้ห้องดูโปร่งสบาย นับว่าเป็นบ้านขนาดเล็กที่ออกแบบใช้สอยพื้นที่ได้อย่างคุ้มค่าสุด ๆ

ที่มา : Quang Dam
ออกแบบ : H.a

.

.

.

.

.

.

.
.