พาไปชม Blank Residence ทาวน์เฮ้าส์หลังมุมสไตล์มินิมอล เน้นความโปร่งโล่ง สว่าง แทรกไปด้วยความอบอุ่นทุกอณูพื้นที่ ผลงานการออกแบบโดยทีมงาน HAO Design ตั้งอยู่ที่เมืองผิงตงทางแถบตอนใต้ของไต้หวันครับ
ทาวน์เฮ้าส์ทรงหน้าแคบหลังมุมหลังนี้ เป็นอาคารที่ถูกรีโนเวทขึ้นใหม่โดยมีพื้นฐานแนวคิดการออกแบบก็คือความสมดุลระหว่างพื้นที่ใช้ชีวิตและแสงธรรมชาติ จนได้มาเป็นบ้านที่สว่าง สดชื่น และกว้างโปร่งกว่าตาเห็นแม้จะเป็นเพียงอาคารทรงหน้าแคบก็ตาม

เฉลียงทางเข้าตกแต่งพื้นผิวด้วยกระเบื้องโมเสคโทนสีหยก

เมื่อเดินเข้ามาจะพบกับโถงทางเข้า ตกแต่งด้วยโซฟาสำหรับนั่งพัก พร้อมชั้นวางลอยติดผนัง

การตกแต่งภายใน ผู้ออกแบบเลือกใช้สไตล์มินิมอลที่เน้นใช้โทนสีขาวสำหรับพื้นหลังทั้งในส่วนของฝ้าเพดานและผนังบ้าน ผสมผสานไปกับงานไม้ตามจุดต่าง ๆ ไม่ว่าจะเป็นพื้น บันได กรอบหน้าต่าง รวมไปถึงเฟอร์นิเจอร์ต่าง ๆ ด้วย

แต่เดิม ชั้นแรกของทาวน์เฮ้าส์แห่งนี้มีห้องชั้นลอยที่ผนังปิดทึบ ทำให้่อากาศถ่ายเทได้ไม่ดี ผู้ออกแบบจึงได้รื้อผนังกำแพงออกให้กลายเป็นชั้นลอย โดยมีครัวและพื้นที่ทานอาหารอยู่ด้านล่าง ทำให้บรรยากาศโดยรวมของชั้นแรกนั้นดูสว่างและโปร่งขึ้นมากเลยทีเดียว

ก่อนหน้านี้บันไดถูกติดตั้งไว้บริเวณส่วนหน้าของบ้าน ก่อนจะถูกย้ายนำไปติดตั้งไว้ทางด้านหลังของห้องครัว

บริเวณใต้ชั้นลอยนั้นถูกออกแบบให้เป็นห้องครัวสไตล์มินิมอลที่มีเคาน์เตอร์ไม้ท็อปสีขาวพร้อมชั้นวางและปล่องดูดควัน เพิ่มสีเขียวด้วยกระถางต้นไม้ขนาดเล็ก

พื้นที่ทานอาหารติดตั้งหน้าต่างกรอบไม้บานใหญ่ที่มีแนวชั้นยื่นออกมาเป็นที่นั่งสำหรับโต๊ะทานอาหาร เป็นส่วนประกอบที่ช่วยให้พื้นที่ภายในโปร่งและสว่างในตอนกลางวัน สร้างสรรค์พื้นที่ใช้ชีวิตด้วยแสงธรรมชาติจากภายนอก

เวลารับประทานอาหารบริเวณนี้ จะสามารถมองเห็นวิวภายนอกได้ และได้รับแสงธรรมชาติผ่านหน้าต่างบานใหญ่ได้อย่างเต็มที่

.

บรรยากาศการใช้ชีวิตโดยรวม มีการเชื่อมต่อบริบทของแต่ละพื้นที่ได้อย่างกลมกลืน สร้างปฏิสัมพันธ์ระหว่างสมาชิกในครอบครัวได้เป็นอย่างดี

ภาพนี้คือบันไดทางขึ้นสู่ชั้นลอย จะเห็นได้ว่ามีการติดตั้งวัสดุโปร่งแสงสำหรับฝ้าเพดาน ทำให้บริเวณนี้ได้รับแสงธรรมชาติจากภายนอกด้วยเช่นกัน เวลาที่เดินผ่านก็จะรู้สึกไม่อึดอัดมากนัก

.

ห้องบนชั้นลอยถูกเปลี่ยนให้เป็นห้องทำงาน/อ่านหนังสือแบบเปิดโล่ง

.

.

บันไดขึ้นสู่ชั้นสอง

ชั้นสองของบ้านประกอบไปด้วยห้องนอนและห้องน้ำ ซึ่งถูกออกแบบให้เชื่อมต่อถึงกันผ่านผนังกระจก ให้ความรู้สึกที่โปร่งกว้างยิ่งขึ้น อีกทั้งยังทำให้ห้องนอนได้รับความอบอุ่นจากผนังไม้ในห้องน้ำอีกด้วย

ห้องนอน

ห้องน้ำ

.

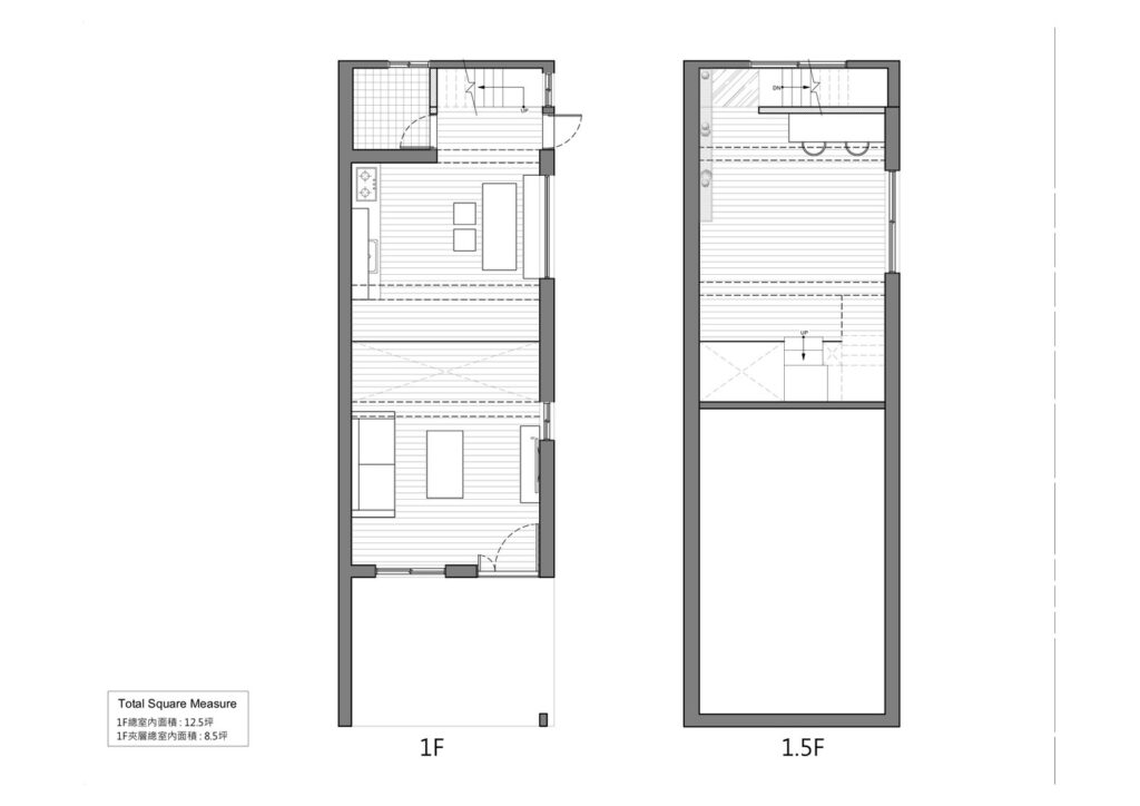
แปลนพื้นที่ชั้นหนึ่งและชั้นลอย

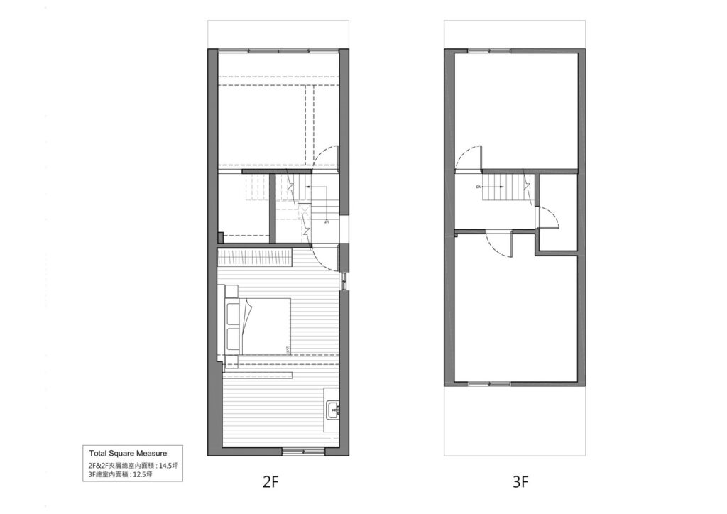
แปลนพื้นที่ชั้นสองและชั้นสาม

.

จะเห็นได้ว่าทุกมุมของบ้านนั้นจะมีแสงธรรมชาติเข้ามาเป็นส่วนหนึ่งของพื้นที่เสมอ ทำให้บรรยากาศการใช้ชีวิตนั้นเต็มไปด้วยความรู้สึกอิสระ ปราศจากซึ่งความอึดอัด พร้อมความอบอุ่นจากธรรมชาติของงานไม้ เรียกได้ว่าเป็นบ้านทรงหน้าแคบที่ไม่แคบเลยแม้แต่น้อยครับ ^_^
ที่มา : Archdaily, design-milk
ออกแบบ : HAO Design
ถ่ายภาพ : Hey! Cheese .