บ้านโมเดิร์นลอฟท์หลังเล็ก ผลงานการออกแบบโดย Nadia Marshall สถาปนิกชาวออสเตรเลีย ออกแบบเพื่อเป็นบ้านพักตากอากาศขนาดเล็ก ห้อมล้อมด้วยธรรมชาติอันเงียบสงบ เหมาะสำหรับเป็นไอเดียบ้านเพื่อการพักผ่อน หรือการทำงานที่ต้องใช้สมาธิสูง
บ้านหลังเล็กหลังนี้เป็นบ้านขนาดสองชั้น การออกแบบดีไซน์บ้านจะมีลักษณะแบบบ้านโมเดิร์นในรูปทรงสี่หลี่ยม ผนังภายนอกตกแต่งด้วยแผ่านไม้สีขาวที่ให้บรรยากาศที่กลมกลืนไปกับธรรมชาติโดยรอบ นอกจากนี้ยังออกแบบให้มีพื้นที่ใช้สอยด้านนอกตัวบ้านอีกด้วย

โดยด้านนอกตัวบ้านจะเป็นเฉลียงพื้นไม้ขนาดพอเหมาะ ซึ่งสามารถตกแต่งด้วยม้านั่งหรือชุดโต๊ะขนาดเล็กไว้นั่งเล่นได้อย่างเพลิน ๆ

ในขณะที่ห้องพักผ่อนหลักภายในบ้านจะถูกตกแต่งด้วยเฟอร์นิเจอร์แบบบิวท์อินด้วยชุดเบาะนั่งบริเวณนี้ พร้อมกับหน้าต่างกระจกใสบานใหญ่ที่ให้วิวทิวทัศน์ภายนอกได้อย่างสวยงาม

ถัดมาใกล้ ๆ กันจะเป็นเคาน์เตอร์บาร์ที่ใช้สำหรับนั่งรับประทานอาหาร หรือนั่งทำงานเล็ก ๆ น้อย ๆ ได้อย่างพอเหมาะในบรรยากาศที่โปร่งสบาย

บันไดที่เชื่อมไปยังชั้นสอง ถูกออกแบบใช้งานได้อย่างชาญฉลาด โดยจะเป็นบันไดที่มีตู้เก็บของ ตู้เสื้อผ้าภายในตัว จึงช่วยประหยัดพื้นที่บ้านได้เป็นอย่างดี

มุมนี้จะเป็นพื้นที่ของห้องครัวแบบบิวท์อิน ซึ่งถึงแม้จะมีพื้นที่ไม่มาก แต่ก็ถูกออกแบบจัดวางแต่ละองค์ประกอบได้อย่างเป็นสัดส่วน สามารถประกอบอาหารได้ไม่ยากเลย

สำหรับห้องนอนจะตั้งอยู่บนชั้นสองของบ้าน โดยเป็นพื้นที่ขนาดเล็กที่สามารถนอนหลับพักผ่อนได้อย่างสะดวกสบาย บนหัวเตียงมีช่องถ่ายเทอากาศที่สะดวกติดอยู่ด้วย

สำหรับห้องน้ำก็จะเป็นอีกห้องที่มีพื้นที่ขนาดเล็ก แต่ภายในออกแบบการจัดวางองค์ประกอบต่าง ๆ ได้อย่างเป็นระเบียบ สามารถใช้สอยพื้นที่ได้อย่างคุ้มค่า

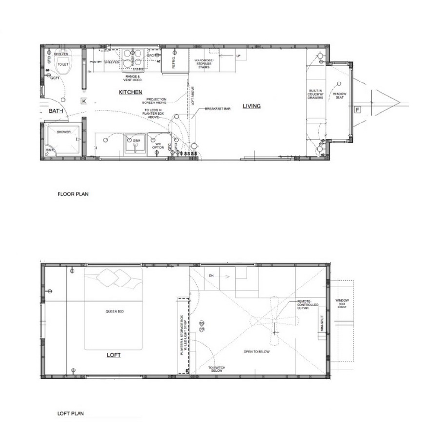
แบบแปลนภายในบ้าน

ที่มา : tinyhouseplans

.

.

.

.

.

.

.
.