มินิมอล เป็นแนวทางงการออกแบบและตกแต่งที่เน้นความเรียบง่ายและโปร่งสบายที่สุด เพื่อให้ได้บรรยากาศของบ้านที่สามารถใช้งานพื้นที่ได้อย่างคุ้มค่า วันนี้ ในบ้าน จะพาไปชมไอเดียบ้านแบบมินิมอลจากประเทศญี่ปุ่น ซึ่งเป็นผลงานการออกแบบโดย aoyagi design ไปชมกันเลยครับ
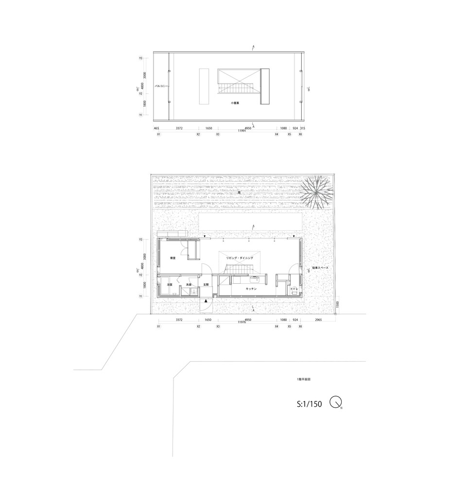
House in Iruma เป็นบ้านไม้ที่มีรูปทรงแบบเอเฟรม (A-Frame House) ซึ่งพบเห็นได้ทั่วไปตามแทบยุโรปตอนเหนือ ซึ่งหลังคาแบบนี้จะช่วยป้องกันหิมะทับถมในช่วงฤดูหนาว โดยบ้านหลังนี้เป็นบ้านที่มีโครงสร้างเป็นไม้ ภายนอกเลือกใช้โทนสีเทาที่ให้บรรยากาศที่สบายตา

ตัวหลังคาแบบเอเฟรมนี้ นอกจากจะสวยงามโดดเด่นแล้ว ภายในยังมีพื้นที่กว้างและโปร่งมากขึ้นด้วย เมื่อเรามาดูบริเวณด้านหลังบ้าน จะเห็นการออกแบบหน้าต่างบานใหญ่ที่ให้ความโปร่งสบายและมีพื้นที่รับวิวสวย ๆ จากภายในบ้าน

พื้นที่ชั้นล่างและชั้นบนของบ้าน ถูกเชื่อต่อด้วยบันไดไม้ที่มีโครงเหล็ก ให้กลิ่นอายแบบอินดัสเทรียลที่ผสานไปกับมินิมอลได้อย่างลงตัว

บริเวณด้านข้างของตัวบ้าน ออกแบบชั้นล่างเป็นหน้าต่างขนาดใหญ่ที่ให้ความโปร่งสบาย ในขณะที่ชั้นบนมีทางเดินยาวแบบลอฟท์ที่สวยงามด้วยงานไม้

ภายในพื้นที่ชั้นบนจะมีความโปร่งสบายและเพดานยกสูง รับแสงสว่างจากประตูบานเลื่อนกระจกใสบริเวณนี้ ซึ่งภายนอกเป็นระเบียงนั่งเล่นขนาดเล็ก

จากมุมนี้เราจะเห็นโถงชั้นสองได้อย่างชัดเจน พื้นที่แบบสามเหลี่ยมที่โดดเด่นสุด ๆ ผนังงานไม้ให้บรรยากาศที่อบอบอุ่นน่าอยู่สุด ๆ

เป็นอย่างไรกันบ้างครับเพื่อน ๆ กับไอเดียของการออกแบบ House in Iruma หลังนี้ หวังว่าจะมีข้อมูลและไอเดียที่ถูกใจและเป้นประโยชน์กับเพื่อน ๆ นะครับ ^_^
ที่มา : archdaily
ออกแบบ : aoyagi design
ถ่ายภาพ : Takumi Ota

.

.

.

.

.
.